
Predaj bytu 5+1 • 160 m² bez realitky, Bavorsko
, BavorskoMHD 1 minúta pešo • Výťah • ParkovaniePo rekonštrukcii existujúcej budovy vznikol v prízemí a podlaží luxusný byt rozprestierajúci sa na dvoch podlažiach, s vlastným vchodom, v atmosfére reťazového domu na konci radu.
Rezidencia zaujme veľkou terasou orientovanou na juh so súkromnou záhradou.
V prízemí sa nachádza otvorený obývací a jedálenský priestor, moderná kuchyňa so spízou, návštevnícka toaleta s pripojením pre práčku a sušičku. Praktická kancelária pre prácu z domu, ktorá je dnes mimoriadne dôležitá, sa nachádza taktiež v prízemí.
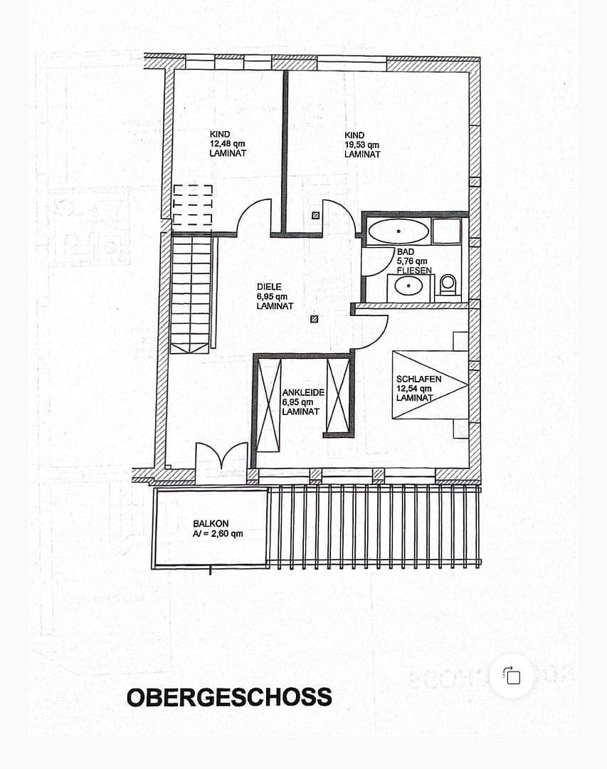
Na hornom podlaží sú dve detské izby, z ktorých jedna má šatník. Rodičovská spálňa s nádhernou vstavanou skriňou a integrovanou televíziou, rodinná kúpeľňa a krásny južný balkón.
Furth, s viac ako 3000 obyvateľmi, disponuje veľmi dobrou infraštruktúrou.
Má detskú škôlku s jasľami, lesnú škôlku, školskú družinu, základnú aj strednú školu a Maristen gymnázium.
V centre obce nájdete všetko, čo potrebujete na každodenné životné potreby, ako napríklad pekáreň, mäsiara, reštaurácie, dedinský obchod, banky, rôznych lekárov aj lekáreň.
• riadený systém vetrania a odvzdušnenia
• diaľkové kúrenie s drevenými peletami
• využitie dažďovej vody
• okná z natretého larcheového dreva, trojité zasklenie
• 2 veľké pivničné miestnosti, murované a uzamykateľné
• 1 parkovacie miesto vedľa vchodu, 1 carport pred domovými dverami
• vstavaná kuchyňa, vstavaná skriňa v spálni a vstavaná skriňa v návštevníckej toalete
• parkety boli preložené v roku 2014
• terasa bola v roku 2016 obložená krásnymi granitovými doskami
Tento byt je možné s minimálnou námahou pretransformovať na 2 menšie byty. Momentálne je byt veľmi dobre prenajatý za 1 575,00 eur (čistá nájomné). Nájomná zmluva platí od roku 2023.
Parametre nehnuteľnosti
| Vek | Nad 50 rokov |
|---|---|
| Stav | Veľmi dobrý |
| Číslo inzerátu | 987388 |
| Úžitková plocha | 160 m² |
| Dostupné od | 6. 2. 2026 |
|---|---|
| Dispozícia | 5+1 |
| PENB | C - Hospodárne |
| Cena za jednotku | 3 638 € / m2 |
Čo táto nehnuteľnosť ponúka?
| Balkón | |
| Výťah | |
| MHD 1 minúta pešo |
| Pivnica | |
| Parkovanie | |
| Terasa |
V okolí nehnuteľnosti nájdete
Stále hľadáte to pravé?
Nastavte si strážneho psa. Ponuky vybrané na mieru dostanete súhrnne 1× denne e-mailom. S Premium profilom máte po ruke rovno 5 strážcov a keď sa niečo objaví, informujú vás obratom.












