
Predaj bytu 2+1 • 73 m² bez realitky, Bádensko-Wurttembersko
, Bádensko-WurttemberskoMHD 1 minúta pešo • ParkovanieTento svetlý a priestranný 2-izbový byt sa nachádza vo vyššom prízemí viackuťového domu so šiestimi bytmi v Mariabrunn, mestskej časti Eriskirchu. Obytná plocha je približne 73 m².
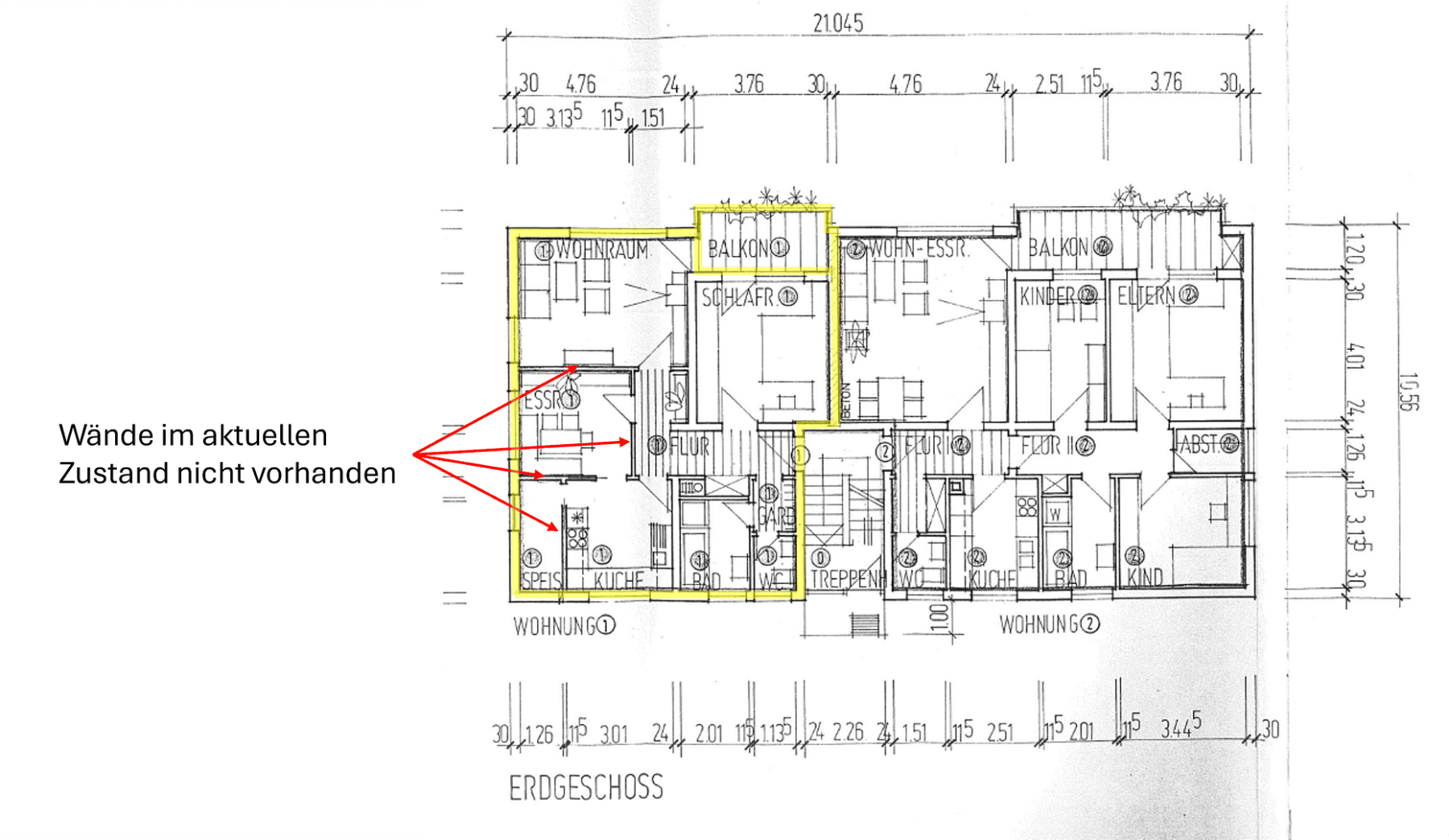
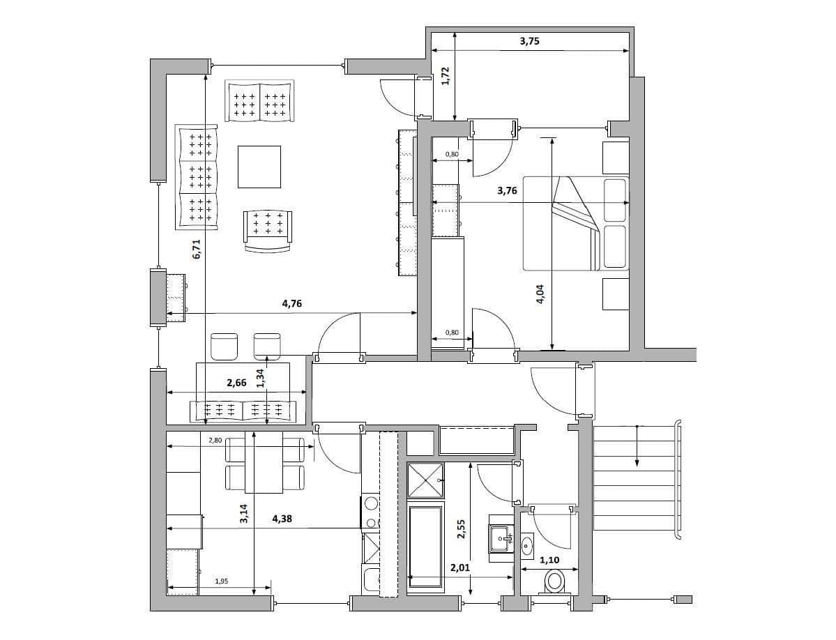
Byt bol pôvodne plánovaný ako 3-izbový (pozri pôdorys), no momentálne je využívaný ako 2-izbový. Je ideálny pre jednotlivcov, páry aj ako dovolenkový byt.
Kúpeľňa je funkčne vybavená sprchovacím kútom, vaňou a pripojením pre práčku. V suteréne vám je k dispozícii práčovňa a sušiareň, ktorá je momentálne využívaná pre umiestnenie práčky a/alebo sušičky.
Priestranná kuchyňa disponuje kvalitnou zabudovanou kuchynskou linkou s prírodnou kameňovou doskou a sklenným obkladom, ktorá zostáva v byte. Balkón je prístupný z obývacej izby aj zo spálne a je vybavený diaľkovo ovládaným markízom.
V obývacej izbe a spálňach je položené parkety z masívneho dreva, zatiaľ čo ostatné miestnosti sú obložené dlažbou. Byt bol komplexne zrekonštruovaný, a preto je pripravený na okamžité nasťahovanie už po našom odchode. V rámci rekonštrukcie boli steny odbornou firmou pokryté jemnou omietkou, parkety boli prebrúsené, všetky ostatné podlahové krytiny boli obnovené a okná boli vybavené elektrickými žaluziami. Balkón je navyše vybavený elektrickým a diaľkovo ovládaným markízom.
K bytu patrí veľká suterénna miestnosť s približne 15 m², ako aj parkovacie miesto pod prístreškom pre vaše vozidlo. Bytový komplex ponúka aj spoločnú záhradu. V poplatku za správu domu je zahrnutá služba domovníka, ktorý sa stará o čistenie spoločných priestorov a údržbu záhrady.
Vstupné dvere do domu a vykurovanie boli v roku 2024 obnovené.
Byt sa nachádza v mestskej časti Mariabrunn obce Eriskirch.
Mariabrunn je idylická mestská časť obce Eriskirch, situovaná priamo na severnom brehu Bodamského jazera. Región zaujme svojou prírodnou polohou a bezprostrednou blízkosťou k Eriskirchskému mokrisku – významnej chránenej prírodnej oblasti, ktorá pozýva na prechádzky a pozorovanie prírody. Tettnangerov les je vzdialený len niekoľko stoviek metrov od bytu, rovnako ako aj cesta pozdĺž rieky Schussen, po ktorej je možné ísť až do Langenargenu.
Infraštruktúra je výborne rozvinutá: V okruhu 2 km nájdete obchody, lekárov, lekárne, materské školy aj základnú školu. Autobusová zastávka sa nachádza priamo vedľa nehnuteľnosti a železničná stanica Eriskirch ponúka vlakové spojenia do Ulmu, Friedrichshafenu a Lindau. Spoločenská cesta B31 zabezpečuje rýchle spojenie do regiónu Bodamského jazera. Rozvinutá sieť cyklotrás, vrátane cyklotrasy okolo Bodamského jazera, významne prispieva k mobilite.
Parametre nehnuteľnosti
| Vek | Nad 50 rokov |
|---|---|
| Dispozícia | 2+1 |
| PENB | D - Menej hospodárne |
| Cena za jednotku | 3 685 € / m2 |
| Stav | Dobrý |
|---|---|
| Číslo inzerátu | 986946 |
| Úžitková plocha | 73 m² |
Čo táto nehnuteľnosť ponúka?
| Balkón | |
| Parkovanie |
| Pivnica | |
| MHD 1 minúta pešo |
V okolí nehnuteľnosti nájdete
Stále hľadáte to pravé?
Nastavte si strážneho psa. Ponuky vybrané na mieru dostanete súhrnne 1× denne e-mailom. S Premium profilom máte po ruke rovno 5 strážcov a keď sa niečo objaví, informujú vás obratom.
















