Prenájom domu 4+1 • 110 m² bez realitky, Severné Porýnie - Westfálsko
, Severné Porýnie - WestfálskoMHD 1 minúta pešo • ParkovanieTáto s láskou a komplexne zrekonštruovaná polovica dvojdomu spája nadčasový šarm historickej nehnuteľnosti so súčasným životným komfortom.
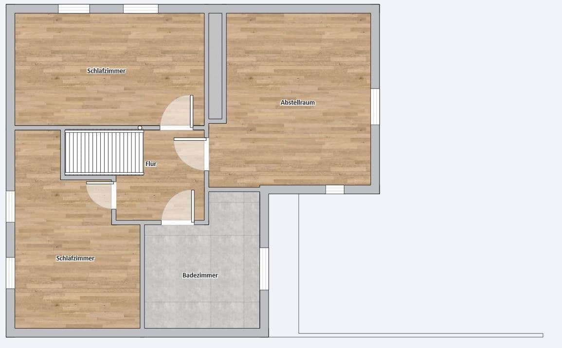
V prízemí vás privíta útulná obývacia izba a priestranný kuchynský s jedálenským kútom. Túto úroveň dopĺňa kúpeľňa a praktická komora. Zo zadného chodby máte priamy prístup do malého, súkromného záhradného dvora. Nehnuteľnosť je navyše čiastočne suterénovaná, čím ponúka dodatočný úložný priestor.
Prvé poschodie obsahuje dve svetlé spálne a kompletne novovytvorenú kúpeľňu. Kúpeľňa je príjemne svetlá, disponuje strešným oknom, dvojitým umývadlom a veľkou sprchou. Dodatočný úložný priestor na tomto poschodí je ideálny na uskladnenie napríklad záhradného nábytku alebo sezónnych vecí. Keďže tento priestor nie je upravený, nie je zahrnutý v uvádzanom obytnom priestore!
Ďalší priestranný úložný priestor sa nachádza na podkroví, ktoré je pohodlne dostupné cez vysúvateľný rebrík.
Táto kvalitne zrekonštruovaná polovica dvojdomu v historickom štýle sa nachádza v srdci Grevenu a je pešo dostupná do centra mesta, k školám aj k obchodným možnostiam. Školy, materské školy, ihriská a supermarkety sú taktiež v bezprostrednej blízkosti, čo robí túto lokalitu mimoriadne atraktívnou pre rodiny a pracujúcich.
Vďaka výbornej dopravnej dostupnosti sú okolité mestá a regióny rýchlo dosiahnuteľné. Univerzitné mesto Münster je vzdialené iba približne 25 minút autom. Verejná doprava aj dôležité dopravné tepny sa nachádzajú v krátkej vzdialenosti. Zároveň blízke zelené plochy a rekreačné zóny ponúkajú nespočetné možnosti pre voľnočasové aktivity a oddych.
Lokalita spája mestský život s vysokou kvalitou bývania a ponúka ideálne podmienky pre komfortné bývanie v srdci Grevenu.
Polovica dvojdomu bola komplexne zrekonštruovaná s dôrazom na vysoko kvalitné materiály a moderné vybavenie. Napríklad v celom dome bol položený elegantný vinylový podlahový kryt v dizajne dubu. Kompletná novostavba kúpeľne na prvom poschodí zaujme priestrannou sprchou, modernými dlažbami a svetlými, prívetivými povrchmi.
Parametre nehnuteľnosti
| Vek | Nad 50 rokov |
|---|---|
| Stav | Po rekonštrukcii |
| Číslo inzerátu | 986578 |
| Plocha pozemku | 135 m² |
| Cena za jednotku | 12 € / m2 |
| Dostupné od | 4. 2. 2026 |
|---|---|
| Dispozícia | 4+1 |
| Úžitková plocha | 110 m² |
| Celkové poschodia | 2 |
Čo táto nehnuteľnosť ponúka?
| Pivnica | |
| MHD 1 minúta pešo |
| Parkovanie | |
| Terasa |
V okolí nehnuteľnosti nájdete
Stále hľadáte to pravé?
Nastavte si strážneho psa. Ponuky vybrané na mieru dostanete súhrnne 1× denne e-mailom. S Premium profilom máte po ruke rovno 5 strážcov a keď sa niečo objaví, informujú vás obratom.

























