
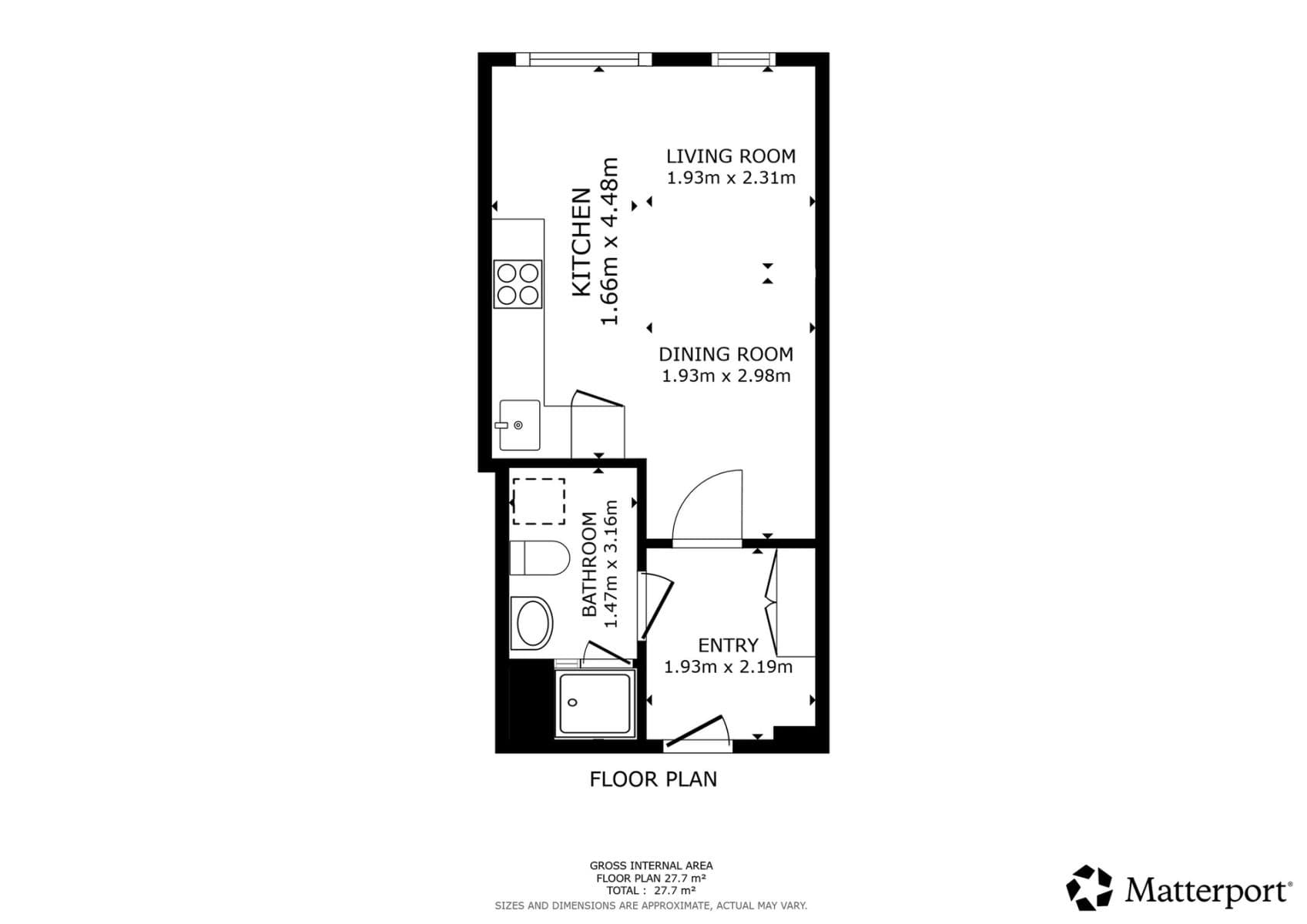
Prenájom bytu 1+kk • 28 m²Maroldova, Praha - Nusle
Maroldova, Praha - NusleMHD 1 minúta pešo • Čiastočne vybavenéNáklady na bývanie
5549 KčPoznámka k cene
vratná kauce ve výši dvou měsíčních nájmů + provize za zprostředkování ve výši jednoho nájmu + DPHHledáte světlý a moderní byt v Nuslích v novostavbě? Pak by vás mohla zaujmout tato nabídka v Rezidenci Maroldka.
Byt je částečně vybaven – k dispozici je kuchyňská linka se spotřebiči (lednice, trouba, myčka) a pračka. Zbytek interiéru si můžete zařídit plně podle vlastního vkusu a vytvořit si domov přesně podle svých představ. K bytu dále náleží sklepní kóje, která poskytuje praktický úložný prostor.
Velkým benefitem tohoto bytu je soukromá střešní terasa o výměře 16 m², ideální pro relax, posezení s přáteli nebo klidné chvíle na čerstvém vzduchu.
Rezidence Maroldka je moderní projekt v srdci Nuslí. Dům vyniká minimalistickou architekturou, čistou fasádou a velkoformátovými okny, která zajišťují dostatek denního světla. Obyvatelům je navíc k dispozici i společná pochozí střecha s vyhlídkovou terasou.
Lokalita nabízí ideální kombinaci klidu a městského komfortu. Nusle jsou oblíbenou částí Prahy 4 s kompletní občanskou vybaveností – najdete zde kavárny, restaurace, obchody i blízké parky Grébovka a Folimanka. Dopravní dostupnost je vynikající díky blízkým tramvajovým a autobusovým zastávkám, centrum města je snadno dosažitelné.
Poplatky vč. elektřiny činí 5 549 Kč měsíčně a jsou zúčtovatelné.
Provize za zprostředkování ve výši jednoho nájmu + DPH.
Vratná kauce ve výši dvou měsíčních nájmů.
Bojíte se, aby vám tato nabídka neunikla? Nyní už nemusíte. Nabízíme vám možnost si byt pronajmout plně online. Pokud ovšem dáváte přednost osobnímu setkání, neváhejte a domluvte si prohlídku.
Těšíme se na setkání s vámi.
Kontaktovat nás můžete v pracovní dny od 9:00 do 17:30.
Are you looking for a bright and modern apartment in Nusle in a new building? Then you might be interested in this offer in the Maroldka Residence.
The apartment is partially furnished – there is a kitchen with appliances (refrigerator, oven, dishwasher) and a washing machine. You can furnish the rest of the interior according to your own taste and create a home exactly as you imagine it. The apartment also includes a basement storage unit, which provides practical storage space.
A great benefit of this apartment is the private 16 m² roof terrace, ideal for relaxing, sitting with friends, or enjoying quiet moments in the fresh air.
The Maroldka Residence is a modern project in the heart of Nusle. The building stands out with its minimalist architecture, clean facade, and large windows that provide plenty of daylight. Residents also have access to a shared walkable roof with a viewing terrace.
The location offers an ideal combination of tranquility and urban comfort. Nusle is a popular part of Prague 4 with complete civic amenities—you will find cafes, restaurants, shops, and the nearby Grébovka and Folimanka parks. Transport accessibility is excellent thanks to nearby tram and bus stops, and the city center is easily accessible.
Utilities, including electricity, cost CZK 5,549 per month and are billable.
The brokerage commission is one month's rent + VAT.
The refundable security deposit is two months' rent.
Are you afraid of missing out on this offer? Now you don't have to. We offer you the option of renting the apartment fully online. However, if you prefer a personal meeting, don't hesitate to arrange a viewing.
We look forward to meeting you.
You can contact us on weekdays from 9:00 AM to 5:30 PM.
Parametre nehnuteľnosti
| Dostupné od | 1. 2. 2026 |
|---|---|
| Konštrukcia budovy | Zmiešaná |
| Vybavené | Čiastočne |
| Číslo inzerátu | 986231 |
| PENB | B - Veľmi úsporné |
| Úžitková plocha | 28 m² |
| Cena za jednotku | 571 CZK / m2 |
| Stav | Novostavba |
|---|---|
| Dispozícia | 1+kk |
| Poschodie | 5. poschodie |
| Vlastníctvo | Osobné |
| Odpad | Verejná kanalizácia |
| Voda | Z verejného zdroja |
Čo táto nehnuteľnosť ponúka?
| MHD 1 minúta pešo |
V okolí nehnuteľnosti nájdete
Náklady na bývanie
5549 KčPoznámka k cene
vratná kauce ve výši dvou měsíčních nájmů + provize za zprostředkování ve výši jednoho nájmu + DPHStále hľadáte to pravé?
Nastavte si strážneho psa. Ponuky vybrané na mieru dostanete súhrnne 1× denne e-mailom. S Premium profilom máte po ruke rovno 5 strážcov a keď sa niečo objaví, informujú vás obratom.

















