
Predaj domu • 235 m² bez realitkyLudwigshafen Gartenstadt Rheinland-Pfalz 67067
"Chceš spoznať dušu človeka,
potom sa pozri, ako býva, jeho okolie a prístrešie."
>Leonardo Da Vinci<
Understatement z vonkajšieho pohľadu prináša pokoj pre každý útočisko, pričom interiér tohto priestorového zázraku vzbudzuje ešte väčšiu pozornosť u obyvateľov a ich hostí. Veľkorysé priestory okolo 20 m² a viac ponúkajú priestor na rozvoj.
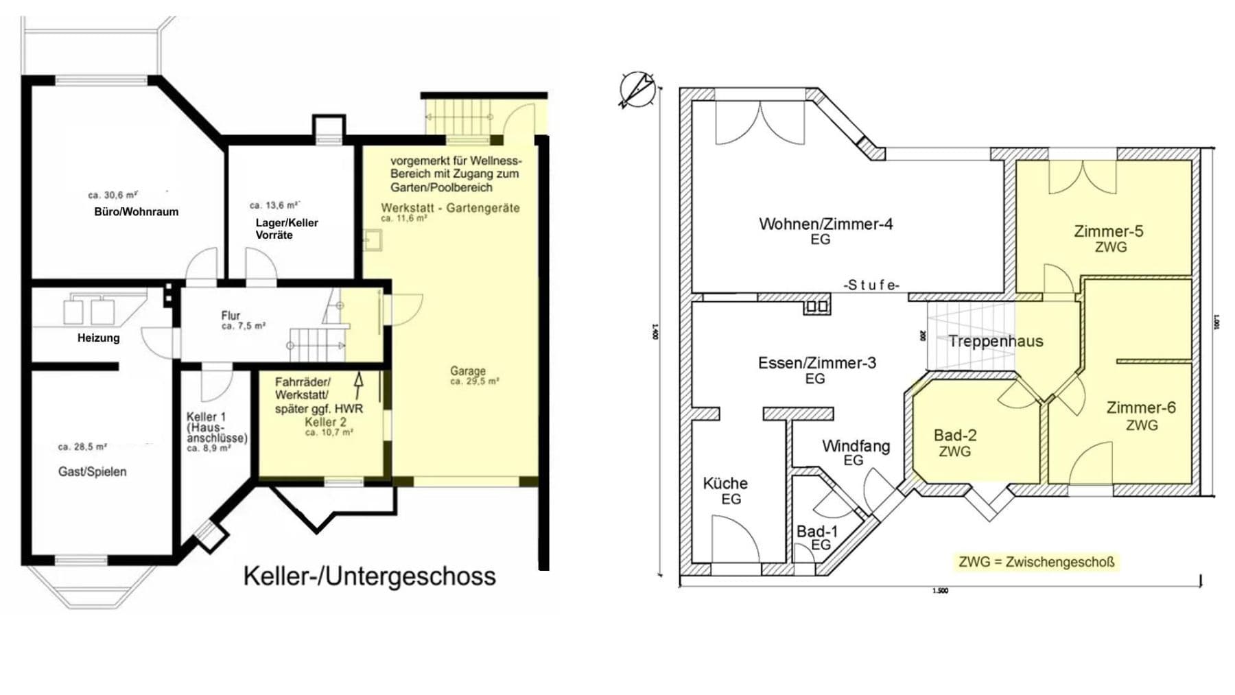
Prízemie tvorí centrálny bod domácnosti s kuchyňou otvorenou do jedálne a veľmi priestranným obývacím priestorom, ktorý má priamy vstup do záhrady s bazénom. Tu sa stretávajú všetci a trávia spoločný čas (quality time), pričom izby slúžia ako útočisko – vďaka svojej veľkosti sú zároveň detskou, pracovnou aj spálňou.
Individuálne navrhnutý architektonický dom s posunutými obytnými úrovňami (split-level) poskytuje geniálne rozdelenie priestoru a jasne oddeluje jednotlivé úrovne, čo prináša maximálne súkromie a zároveň atraktívnu otvorenosť a priestrannosť.
Každá úroveň má vlastnú veľkú kúpeľňu s denným svetlom, čo je mimoriadne prínosom pre rodinný život… alebo sa tu môže ubytovať aj „mladá“ (WG 55+) seniorska spolubývajúca komunita so 6 izbami (každé 2 izby si delia kúpeľňu). Celé prízemie s kuchyňou, jedálňou a obývacím priestorom presahujúcim 40 m², ako aj záhrada a bazén tvoria spoločné priestory. To samo o sebe dokazuje, že objekt je vhodný najmä pre rodiny s deťmi alebo viacgeneračné bývanie.
Rozmanité možnosti využitia robia tento objekt atraktívnym aj pre kapitálových investorov, ktorí chcú svoje peniaze zabezpečiť v hmotnom majetku. Ľudia s vysokými príjmami sú rozmaznaní, chcú si to udržať, platia najvyššie nájomné a požadujú primeraný obytný priestor so všetkými príslušnými vymoženosťami, pričom prevádzkové náklady sú nízke. Energeticky je dom veľmi dobre zladený.
Postavený masívnou konštrukciou a so šírkou budovy 15 m, poskytuje obytnú hodnotu, ktorú sa nedá opísať – takéto kvality je dnes veľmi zriedka možné nájsť.
Veľkosť a vybavenie sa výrazne odlišujú od bežných stavebných prevedení a zaručujú maximálny životný komfort, pretože k ďalšej úrovni je potrebné zdolať len niekoľko schodov. Tento typ stavby je nákladnejší na výstavbu, a preto zriedkavý, ale ponúka toľko pohodlia, ktoré možno zažiť len na vlastné oči.
Základová plocha budovy 15 m x 14 m umožňuje pôdorys s veľmi priestrannými izbami a integrovanou, veľkorysou garážou s úložným priestorom a priamym vstupom z garáže do domu. Nákupy sa tak vždy vykladajú na suchu. Úrovne oddelené len pár schodmi zabezpečujú súkromie pre všetkých obyvateľov domu, pričom prízemie umožňuje užívať si otvorenú a veľkorysú atmosféru. Čaro, ktoré sa nedá vyjadriť len na fotkách – pozrieť a pocítiť si to rozhodne stojí za dvojnásobnú návštevu, určite sa vám to bude páčiť.
Najväčším luxusom, ktorý si môžeme dopriať, je priestor a čas. Izby sú príjemne priestranné, so vysokými stropmi, a človek sa v nich rád zdržiava. Kto sa na dovolenke teší aj na návrat domov, urobil všetko správne. Teraz je rad na vás.
Gartenstadt patrí medzi najkrajšie mestské časti Ludwigshafenu a je výborne napojená na dopravné spojenia (autobus, vlak, rýchlostná cesta). Voľnočasové aktivity sú dostupné v hojnosti a inak vám nič nechýba. Poloha objektu v veľmi obľúbenej a žiadanej obytné oblasti so skvelým okolím je pridanou hodnotou.
Dôležité:
Lokalita so zníženou premávkou – žiadny autobus mihajúci priamo pred domom, žiadna ťažká doprava, priechodná premávka ani električka. Napriek tomu je všetko pešo dostupné – to sa nikde inde nevidí. Ide o oázu pokoja, ktorá je ideálna na vyváženie každodenného stresu.
Metropolregión Rhein-Neckar sa v priebehu posledných desaťročí veľmi rozvinul. Vynikajúca infraštruktúra, kvalitné pracovné príležitosti, kliniky, vysokej školy a univerzity… a predovšetkým víno so všetkými podmienkami na degustáciu okolo Neustadtu, Speyer, Bad Dürkheim, Heidelbergu, Weinheimu a pod. robia umiestnenie objektu ešte atraktívnejším pre milovníkov radosti zo života a gurmánov. Optimálna východisková poloha pre gurmánske pôžitky a lahôdky všetkých druhov – vinobrania sú ľahko dostupné a v regióne ich je naozaj mnoho.
K dispozícii sú 3 kúpeľne s denným svetlom a 8 izieb, čo robí objekt vhodným aj pre väčšie rodiny, a napriek tomu má každý svoj vlastný priestor. Vstavane zabudované šatníky pod šikmými stenami v podkroví ponúkajú doslova priestorový zázrak úložných možností (viď obrázky) – napríklad jeden šatník bol určený len na kabelky a samostatný priestor slúžil na obuv (s možnosťou ďalšej úpravy).
Priestranná a široká schodisko je neuveriteľne pohodlné na chodenie a uľahčuje prechod medzi poschodiami, keďže je potrebné zdolať len 6–7 schodov.
Aj v suteréne sú priestory upravené na obytné účely, s veľkými oknami. Podlahové kúrenie je na všetkých poschodiach (s výnimkou garáže, hoci to je možné dodatočne inštalovať).
Dodatočná inštalácia vlastnej štvrté kúpeľne v suteréne je možná, avšak bez denného svetla.
Vďaka podlahovému kúreniu je pri inštalácii tepelného čerpadla možné aj chladenie domu – čo nie je možné pri konvenčných kúreniach.
Vybavenie je prémiové, technicky na dnešnej modernej úrovni, čo je mimoriadne komfortné – krok k inteligentnému domu je už urobený/pripravený. Alarmový systém a video dohľad sú čiastočne inštalované a pripravené na ďalšie rozšírenie. Sieťové pripojenie a telefón sú dostupné v každej izbe, vrátane garáže a domčeka pri bazéne, a mnoho ďalších výhod.
Odsávačový systém výrazne uľahčuje udržiavanie čistoty v miestnostiach a prakticky nespôsobuje žiadne rušenie, keďže sa pohybuje iba jeden hadicový sací aparát. Odsávacie zásuvky sú ľahko dostupné z každého poschodia, vrátane garáže pre autá a mnoho ďalších.
Zásuvky sú v hojnom množstve každých 1,5–2 m, oddelene chránené od osvetľovacích okruhov. Hlavná rozvodná skrinka v suteréne má rozmer trojrodinného domu, keďže v dome nie sú rozvodné skrinky a všetky káble vedú do hlavnej distribúcie. Šarm tejto technickej realizácie spočíva aj v tom, že je dodatočne úplne jednoducho možné prepínať zásuvky alebo vytvárať iné osvetľovacie okruhy.
Pre podkrovie je k dispozícii vlastná podrozvodná skrinka s podobnou konštrukciou, rovnako aj v garáži. Rozšírenie a úpravy sú tak aj v budúcnosti úplne bezproblémové. Navyše, v garáži je dostupné 380V trojfázové napájanie.
Technicky neexistujú žiadne otvorené požiadavky. Vonkajšia časť objektu je podobne flexibilná – premeny či zmeny sú naozaj bez problémov realizovateľné.
Pred domom sú k dispozícii ďalšie parkovacie miesta a vzadu sa nachádza dostatočne veľká záhrada (15 x 12 m) s malým bazénom (cca 3,5 x 5 m). Veľká krytá terasa, slnečná terasa a zelené plochy určené na oddych a oslavy s hosťami vás pozývajú, aby ste si tu sadli a oddýchli.
Pre milovníkov slnka je k dispozícii ďalšia slnečná paluba, kde si môžete vychutnať aj večerné slnečné lúče, alebo si jednoducho pohodlne sadnúť pred dom s susedmi pri pohári „vody a vína“.
Bylinkový kút ponúka počas celého roka bylinky podľa sezóny – čerstvejšie to určite nejde.
Nič vám nechýba a ak áno, je to možné pohodlne dodatočne prispôsobiť. Také bolo aj plánovanie pri výstavbe. Najlepšie je, ak si to prídete pozrieť na mieste a pocítite veľkosť a komfort, aký tento dom ponúka.
Predaj prebieha priamo od súkromného vlastníka – bez poplatkov makléra.
Objekt je okamžite voľný a môže byť odovzdaný podľa dohody. Rýchly sťahovací termín je teda možný a veľké rekonštrukcie neplánujú – stačí len podľa potreby realizovať vaše predstavy o prestavbe. Zámerne neboli zobrazené všetky izby, aby bola prehliadka ešte atraktívnejšia.
Teraz je čas konať – energeticky kvalitné domy sú vzácne.
"V roku 2025 počíta Spolok nemeckých ľudových bánk a Raiffeisenbank s nárastom cien pre vlastné bývanie o 3,2 % a v roku 2026 o ďalších 3,1 %." Tak je to dnes (25.07.2025) uvedené v newsletteri Finanztipp.
Kto bude ďalej čakať, zaplatí za to.
Prečo vôbec kupovať nehnuteľnosti?
Pretože neexistuje lepší spôsob, ako sa ochrániť pred infláciou pri zostanúcej vysokej životnej úrovni. Navyše, život spočíva v tom, aby ste si niečo dopriať – ako bývate a žijete, tak aj ste. Neexistuje väčšia návratnosť investície ako investícia do seba samého. TO sme tu vychutnávali už viac než 31 rokov. Teraz môže niekto iný zažiť to, čo tu prináša uspokojenie duše.
A okrem politiky – keď veci nejdú podľa očakávaní – aspoň si doprajte krajšie bývanie.
Parametre nehnuteľnosti
| Vek | Nad 50 rokov |
|---|---|
| Stav | Po rekonštrukcii |
| PENB | B - Veľmi úsporné |
| Plocha pozemku | 427 m² |
| Cena za jednotku | 5 085 € / m2 |
| Dostupné od | 31. 1. 2026 |
|---|---|
| Číslo inzerátu | 986140 |
| Úžitková plocha | 235 m² |
| Celkové poschodia | 2 |
Čo táto nehnuteľnosť ponúka?
| Pivnica | |
| Parkovanie | |
| Terasa |
| Garáž | |
| MHD 2 minúty pešo |
V okolí nehnuteľnosti nájdete
Stále hľadáte to pravé?
Nastavte si strážneho psa. Ponuky vybrané na mieru dostanete súhrnne 1× denne e-mailom. S Premium profilom máte po ruke rovno 5 strážcov a keď sa niečo objaví, informujú vás obratom.









































