
Predaj bytu 5+kk • 140 m² bez realitkySchöllmansstr. Bochum Riemke Nordrhein-Westfalen 44807
Tento priestranný a klimatizovaný 5,5-izbový byt ponúka moderné a energeticky úsporné bývanie, ktoré je príjemné v lete aj v zime a poskytuje široký výhľad v Bochum-Riemke. Budova s ventilačným systémom s rekuperáciou tepla osloví kvalitnou stavebnou realizáciou, premyslenými pôdorysmi a budúcnosťou zaručujúcim energetickým konceptom podľa štandardu KfW-40-Plus.
Byt je ideálny pre rodiny, páry alebo náročných vlastníkov, ktorí kladú dôraz na kvalitu bývania, pokoj a nízke náklady na energiu.
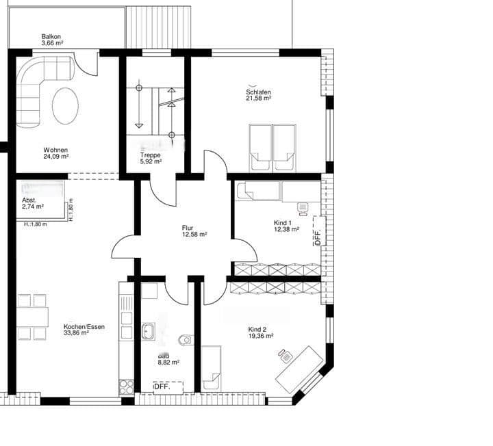
Byt & dispozícia
• Priestranná obývačka s jedálenskou časťou a prístupom na západný balkón
• Tri dobre usporiadané izby (spálňa, detská izba alebo pracovňa)
• Moderná kúpeľňa s denným svetlom a bez prahu pri sprche
• Praktická skladovacia miestnosť
• K dispozícii je aj pivničná miestnosť
Poloha v podkroví zabezpečuje množstvo denného svetla, príjemný pocit z bývania a dodatočný pokoj.
Energia & udržateľnosť
• Energetická trieda A+
• Konečná energetická spotreba: 25 kWh/(m²·rok)
• Hlavný energetický zdroj: solárna energia
• Veľmi nízke prevádzkové náklady na energiu
• Budúcnosťou zaručený a hodnotovo stabilný koncept bývania
Lokalita
Byt sa nachádza v Bochum-Riemke.
Infraštruktúra:
• Nákupné možnosti (Hannibal-Center) sú dostupné pešo
• Lekári, lekárne, školy a materské školy v blízkosti
• Dobrá dostupnosť k linke U35 (centrum Bochumu / Ruhr-Universität)
• Rýchly prístup k diaľniciam A40 a A43
• Zelené plochy a parky v okolí
Lokalita spája mestskú infraštruktúru s pokojným obytným prostredím.
Vybavenie & kvalita stavby
• Energetická efektívnosť KfW-40-Plus
• Tepelné čerpadlo vzduch-voda
• Podlahové kúrenie vo všetkých miestnostiach
• Fotovoltaická inštalácia so skladom energie
• Ventilačný systém s rekuperáciou tepla
• Trojnásobné zasklené okná
• Elektrické rolety
• Masívna výstavba
• Videointerkom
• LAN pripojenie vo všetkých obytných miestnostiach
Ohrev teplej vody je zabezpečený prostredníctvom tepelného čerpadla a solárnej techniky.
Dokončenie & kúpa
• Dokončenie plánované: október 2026
• Kúpa priamo od majiteľa
• Bez provízie sprostredkovateľa
Prehliadka & kontakt
V prípade záujmu alebo otázok nás neváhajte kontaktovať.
Prehliadky sú možné po dohodnutí.
Parametre nehnuteľnosti
| Vek | Nad 50 rokov |
|---|---|
| Dispozícia | 5+kk |
| Číslo inzerátu | 985711 |
| Úžitková plocha | 140 m² |
| Stav | Novostavba |
|---|---|
| Poschodie | 2. poschodie z 2 |
| PENB | A - Mimoriadne úsporné |
| Cena za jednotku | 3 500 € / m2 |
Čo táto nehnuteľnosť ponúka?
| Balkón | |
| MHD 2 minúty pešo |
| Pivnica |
V okolí nehnuteľnosti nájdete
Stále hľadáte to pravé?
Nastavte si strážneho psa. Ponuky vybrané na mieru dostanete súhrnne 1× denne e-mailom. S Premium profilom máte po ruke rovno 5 strážcov a keď sa niečo objaví, informujú vás obratom.
