
Predaj bytu 4+1 • 90 m² bez realitkyGuineastraße 38 Berlin Wedding Berlin 13351
Atraktívna kapitálová investícia v Berlíne-Wedding – udržiavaný, svetlom naplnený vlastný byt predávaný súkromne
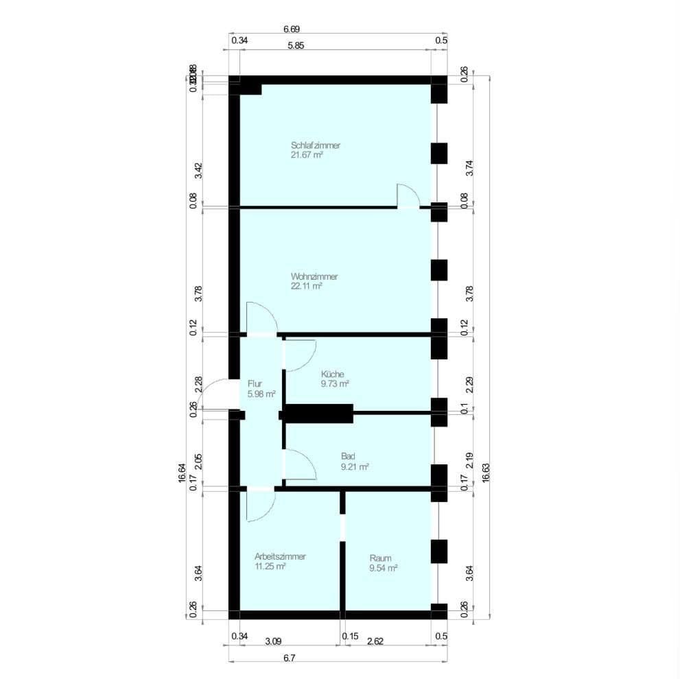
Tento priestranný a svetlý vlastný byt sa nachádza na štvrtej poschodí udržiavaného viacrodinného domu v obľúbenej berlínskej štvrti Wedding. Byt zaujme premysleným pôdorysom a okrem predsiene, kúpeľne a kuchyne obsahuje celkovo štyri ďalšie obytné miestnosti (pozri pôdorys). Celkový stav nehnuteľnosti možno označiť za udržiavaný.
Byt sa predáva ako prenajatá kapitálová investícia a poskytuje solídnu a bezpečnú návratnosť. Ročný čistý nájomný príjem predstavuje 6 718,32 €. Súčasný nájomný vzťah je spoľahlivý: od začiatku si nájomca vždy plnil svoje platobné záväzky načas a staral sa o udržiavanie bytu. Mesačné náklady na správu domu dosahujú 374,81 €.
Hlavné výhody na prvý pohľad:
- Bezpečne prenajatý vlastný byt
- Udržiavaný stav
- Poloha v prednej časti budovy
- Štyri samostatné obytné miestnosti
- Okná takmer v každej miestnosti (vrátane kuchyne a kúpeľne)
- Kúrenie cez diaľkové teplo
- Veľmi dobrá infraštruktúra
- Predaj súkromný, bez provízií makléra
- Zákaz predaja do 05/2026
Rád odpoviem na prípadné otázky. Pri vážnom záujme o kúpu a po dohode s nájomcom je možné byt obhliadnuť. Na výslovnú žiadosť nájomcu sa nevydávajú vnútorné fotografie bytu.
Wedding patrí medzi centrálnych berlínskych štvrte s dobrou dopravnou dostupnosťou do City Ost a City West. Tradičná robotnícka štvrť sa transformovala z industriálne dominantnej časti mesta na lokalitu pre moderné služby, vedu, výskum a kultúru.
Hlavné centrum okolo Müllerstrasse si v multicenrálnej štruktúre celého mesta udržalo svoje významné miesto a poskytuje obyvateľom široký výber obchodov, stánkov s rýchlym občerstvením, kaviarní a reštaurácií. Všetky zariadenia každodenných potrieb sú ľahko dostupné pešo – množstvo supermarketov, materských škôl a škôl je v bezprostrednej blízkosti. Okrem toho si štvrť už istý čas získava na prestíži a niektoré časti Wedding dnes patria k trendovým obytným lokalitám Berlína.
Parametre nehnuteľnosti
| Vek | Nad 50 rokov |
|---|---|
| Dispozícia | 4+1 |
| Číslo inzerátu | 985148 |
| Úžitková plocha | 90 m² |
| Stav | Dobrý |
|---|---|
| Poschodie | 4. poschodie z 4 |
| PENB | F - veľmi nehospodárne |
| Cena za jednotku | 3 622 € / m2 |
Čo táto nehnuteľnosť ponúka?
| MHD 3 minúty pešo |
V okolí nehnuteľnosti nájdete
Stále hľadáte to pravé?
Nastavte si strážneho psa. Ponuky vybrané na mieru dostanete súhrnne 1× denne e-mailom. S Premium profilom máte po ruke rovno 5 strážcov a keď sa niečo objaví, informujú vás obratom.











