
Predaj domu • 140 m² bez realitkySchieferbank 34a, , Severné Porýnie - Westfálsko
Schieferbank 34a, , Severné Porýnie - WestfálskoMHD 4 minúty pešo • Parkovanie • GarážIhned na nastěhovanie, pre dochádzajúcich do Porúrskeho regiónu (A1, 43, 46) a Bergische Land skvele spojené.
• Približne 350 m² vonkajšej plochy
• + približne 140 m² obytného priestoru (cca 2 860 €)
• + približne 75 m² vykurovaného užitného priestoru (cca 1 430 €)
• + približne 45 m² užitného priestoru (cca 715 €)
Rozdelené na dve oddelené obytné časti, z ktorých každá má kuchyňu, kúpeľňu, balkón/terasu, obývaciu izbu aj spálňu.
Masívna stavba, domčeky na záhradné kutilstvo a oslavy v záhrade, dlhá prístupová cesta a garáž, práčovňa, suterénny bar a veľa priestoru na individualizáciu – čiastočne renovované.
Výnimočnosti
• Nízko udržiavateľná, skutočne tehlovaná fasáda a obložený štít
• Svetločelné vonkajšie rolety na všetkých oknách, vrátane strešných okien, plne elektrické (okrem kúpeľne na hornom poschodí)
• Suterén (KG), prízemie (EG) a horné poschodie (OG) výhradne s masívnou stenovou konštrukciou, od stropu horného poschodia ďalej s drevenou konštrukciou
• Vlastné optické (vláknové) pripojenie v miestnosti pre pripojenie domu a medené telefónne vedenie odtiaľ do horného poschodia
• Kondenzačné plynové kúrenie inštalované na jar 2024 (možnosť prevziať zmluvu all-inclusive)
Spoločné vstupné dvere do domu a predsieň s prístavbou (windfang) pri susednej dvojdomovej polovici, rovnako ako spoločná miestnosť pre pripojenie domu.
Elektrické sekčionálne garážové dvere s integrovanými prístupovými dverami.
Rybníková záhradná zóna so zachovanými záhradnými domčekmi pre príjemné večery a záhradné kutilstvo.
Silschede: medzi Volmarsteinom, Hasslinghausen a Gevelsbergom.
Perfektné dopravné spojenie
Na výjazdy na diaľnice A1, A43 a A46 sa dostanete za pár minút.
Starostlivosť o deti v obci
Materská škola a základná škola sú dostupné pešo.
Zdravie
V obci nájdete praktickú lekárku, lekáreň, zubára a fyzioterapeuta.
Prirodzene
Obklopené lesmi a poľami, a napriek tomu infraštruktúrne plnohodnotne pokryté.
Športoviská
Lesný štadión, tenisové kurty, jazdecká farma, niekoľko ihrísk a golfové ihrisko v blízkosti.
Obecná komunita
FC Silschede, strelecký klub, kostol, veľkonočný oheň, vianočný trh a oveľa viac.
Možnosti nákupu
Potravinové trhy a diskontné obchody sú autom vzdialené len 10 minút.
Na cykloturistickej trase
Uzlový bod 91 cykloturistických trás je priamo dostupný na bicykli.
Potraviny
Pekáreň a občerstvenie v dedinskom centre dopĺňajú možnosti rozvozu.
Suterén
Dlhá garáž z masívnej stavby s prístupom do domu a betónovými schodmi do záhrady.
Práčovňa a suterén s betónovou podlahou a rôznymi odtokmi, vodovodnými prípojkami a plynovým prípojkám pre plynový sporák v práčovni.
Samostatná kotolňa, rustikálny suterénny bar s odsávaním vzduchu cez zavesený strop.
Tieňový vykurovaný hobby priestor.
Kúpeľňa so sprchou a oknom.
Veľká chodba s kamennými schodmi do prízemia a prístupom do miestnosti pre pripojenie domu.
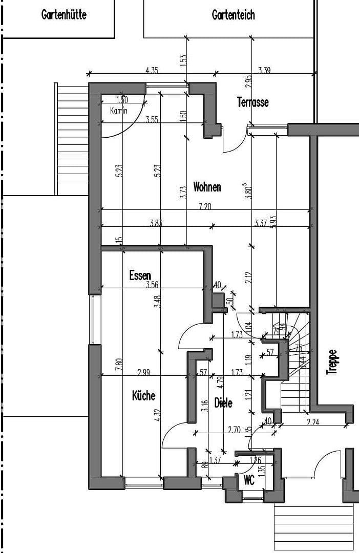
Prízemie
Veľká chodba, ktorá slúži ako vstupná hala s vchodovými dverami bytu zo spoločného vstupu do domu.
Veľký priechod do obývacej a kaminárskej časti, ako aj do hostinského WC a do kuchynskej s jedálenskou časťou, ktoré sú oddelené pultom.
Kuchyňa a jedáleň obložené dlažbou, z chodby cez obývačku až do kaminára pretrvávajú autentické parkety z pravého dreva.
Priamy prístup z obývačky na terasu a do záhrady.
Kamináre so zatepleným kútom pre krb.
Záhrada
Bočná terasa nad garážou aj pred kaminárom a obývacou izbou s prilehlým rybníkom a bočne umiestnenou záhradnou chatou na grilovanie.
Trávnatá plocha s roztrúsenými mladými stromami a v zadnej časti záhrady domčeky pre domácich kutilov.
Kompletné elektrické zapojenie a dva (samostatne uzatvárateľné) studené kohútiky v blízkosti domu.
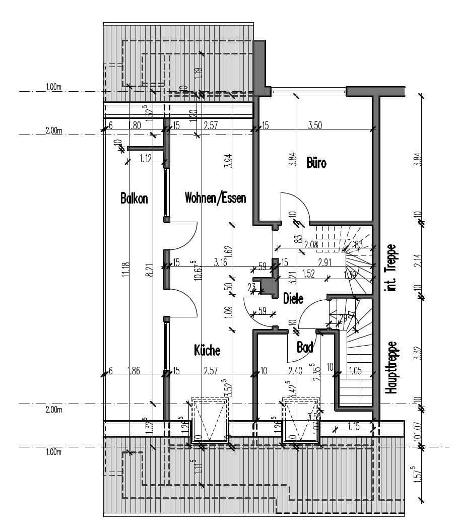
Horné poschodie
Chodba s vchodovými dverami bytu zo spoločnej schodiskovej haly a so schodami do podkrovia.
Sklenené dvere vedúce do kancelárie s výhľadom na záhradu a s laminátovou podlahou.
Kuchynský, jedálenský a obývací priestor navrhnutý ako veľká otvorená miestnosť – kuchynská časť je obložená dlažbou a osvetlená dodatočným strešným oknom s elektrickými žalúziami.
Dvojitý prístup na juhozápadný balkón.
Kancelária a obývacia časť pripravená pre inštaláciu klimatizácie.
Podkrovie
Malá chodba s výklenkovými skrinkami, uzavretá izba so štítovými oknami a výklenkovými skrinkami.
Oddelená škriňa cez sklenené steny a sklenené dvere vedúce z chodby a schodiska.
Štiklované strešné okná osvetľujú chodbu a šatník.
Drevená podlaha je úplne prekrytá kobercami.
Krov je komplet vyhotovený zo dreva v spoločnej konštrukcii s vedľajšou dvojdomovou polovicou.
Možnosť prevzatia
Je možné prevziať množstvo nástrojov a kutilských pomôcok (napr. kotúčová píla, pásová píla, kompresor pre tlakový vzduch, záhradné hadice atď.) ako aj – pre ešte dokončovanú rekonštrukciu horného poschodia – nové stropné panely, izolačnú vlnu, podlahové krytiny a nerezové schodiskové zábradlia.
Všetky obrázky, pohľady a údaje uvedené na tejto stránke predstavujú nezáväzný prehľad detailov objektu a nepredstavujú nevyhnutnú súčasť kupnej zmluvy, nakoľko môžu zobrazovať aj staršie stavy a detailné údaje boli zhromaždené nezávisle, takže nemajú znalecký charakter.
Parametre nehnuteľnosti
| Vek | Nad 50 rokov |
|---|---|
| Stav | Dobrý |
| PENB | C - Hospodárne |
| Plocha pozemku | 448 m² |
| Cena za jednotku | 3 779 € / m2 |
| Dostupné od | 31. 1. 2026 |
|---|---|
| Číslo inzerátu | 984763 |
| Úžitková plocha | 140 m² |
| Celkové poschodia | 2 |
Čo táto nehnuteľnosť ponúka?
| Balkón | |
| Garáž | |
| MHD 4 minúty pešo |
| Pivnica | |
| Parkovanie | |
| Terasa |
V okolí nehnuteľnosti nájdete
Stále hľadáte to pravé?
Nastavte si strážneho psa. Ponuky vybrané na mieru dostanete súhrnne 1× denne e-mailom. S Premium profilom máte po ruke rovno 5 strážcov a keď sa niečo objaví, informujú vás obratom.













