
Prenájom bytu 2+kk • 156 m² bez realitkyFrancouzská, Brno - Zábrdovice, Jihomoravský kraj
Nabízíme k pronájmu nadstandardní byt 2+kk (65,9 m2 a 5,4 m2 balkón) s velkou soukromou terasou a zahradou (84,5 m2) v osobním vlastnictví v 2p./1np. bytového domu s výtahem v centru Brna.
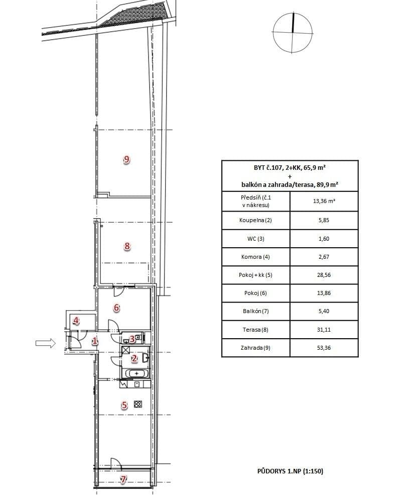
Dispozice bytu:
Obývací pokoj s plně vybavenou kuchyňskou linkou 28,6 m2 a s balkónem 5,4 m2 (JZ),
Vstupní hala 13,4 m2 s šatnou na míru 2,7 m2, koupelna 5,9 m2 a toaleta 1,6 m2,
Ložnice 13,9 m2 (SZ),
Terasa 31,1 m2 se zahradou 53,4 m2 (orientace SZ).
Byt se nachází v lokalitě velice blízké centru města s rozvinutou občanskou infrastrukturou (zastávka MHD vzdálená 3min. chůze, školka 2min., nemocnice 4min., obchody 4min., atd.). Byt je řešen s nadstandardními prvky a plně vybaven (kuchyňská linka vč. spotřebičů, svítidla, šatna na míru, apod.). Hlavní výhodou bytu je prostorná terasa (31,1 m2) s velkou oddělenou zahradou (53,4 m2), zajišťující plné soukromí k relaxaci.
Cena pronájmu je 25 000 CZK/m plus zálohy na služby 3 500 CZK/m*. Byt je vhodný pro 1-2os.
*při užívání bytu jednou osobou.
V ceně pronájmu je internet. připojení 100 Mb/s.
V lokalitě je modrá zóna "C" s regulací parkování od 17:00 do 6:00.
--
Pro více informací či domluvení termínu prohlídky nás kontaktujte zprávou či na tel 737_497_900.
--
We offer for rent a luxury 2+kk apartment (65.9 m2 and 5.4 m2 balcony) with a large private terrace and garden (84.5 m2) in private ownership on the 2nd floor of an apartment building with an elevator in the center of Brno.
Layout of the apartment:
Living room with fully equipped kitchen 28.6 m² and balcony 5.4 m² (SW),
Entrance hall 13.4 m² with custom-made wardrobe 2.7 m², bathroom 5.9 m² and toilet 1.6 m²,
Bedroom 13.9 m² (NW),
Terrace 31.1 m² with garden 53.4 m² (NW orientation).
The apartment is located very close to the city center with developed civic infrastructure (public transport stop 3 min. walk, kindergarten 2 min., hospital 4 min., shops 4 min., etc.). The apartment is designed with above-standard features and is fully equipped (kitchen including appliances, lighting, custom-made wardrobe, etc.). The main advantage of the apartment is the spacious terrace (31.1 m²) with a large separate garden (53.4 m²), ensuring complete privacy for relaxation.
The rental price is CZK 25,000/m plus CZK 3,500/m* for utilities*. The apartment is suitable for 1-2 people.
*when the apartment is used by one person.
The rental price includes internet connection 100 Mb/s.
The location is in blue zone "C" with parking restrictions from 5:00 p.m. to 6:00 a.m.
--
For more information or to arrange a viewing, please contact us by message or by phone at 776_731_713.
--
Parametre nehnuteľnosti
| Vek | Do 10 rokov |
|---|---|
| Stav | Novostavba |
| Dispozícia | 2+kk |
| Poschodie | 2. poschodie z 7 |
| Vykurovanie | Ústredné |
| Vlastníctvo | Osobné |
| Cena za jednotku | 160 CZK / m2 |
| Dostupné od | 1. 3. 2026 |
|---|---|
| Konštrukcia budovy | Zmiešaná |
| Vybavené | Vybavené |
| Prevedenie | Štandardné |
| Číslo inzerátu | 984662 |
| Úžitková plocha | 156 m² |
Čo táto nehnuteľnosť ponúka?
| Balkón 5,5 m² | |
| Terasa 84,5 m² |
| Výťah |
V okolí nehnuteľnosti nájdete



Prenájom bytuPotocká, Brno - Kohoutovice, Jihomoravský kraj- 2+kk
- 68 m²
22 000 CZK + 4 400 CZK24 000 CZK
Ušetríte 2 000 CZK

Stále hľadáte to pravé?
Nastavte si strážneho psa. Ponuky vybrané na mieru dostanete súhrnne 1× denne e-mailom. S Premium profilom máte po ruke rovno 5 strážcov a keď sa niečo objaví, informujú vás obratom.















