
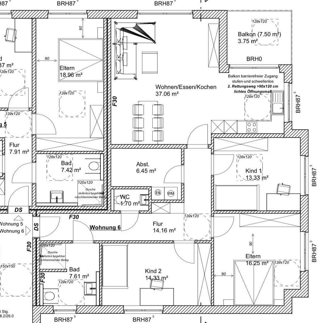
Prenájom bytu 4+1 • 109 m² bez realitkyWissinger Mark 21, , Dolné Sasko
Wissinger Mark 21, , Dolné SaskoMHD 6minút pešo • ParkovanieVitajte vo vašom novom domove! Tento vysoko kvalitný 4-izbový nový byt v 1. nadzemnom podlaží vás presvedčí premysleným pôdorysom, svetlými priestormi a moderným, energeticky efektívnym vybavením.
So životnou plochou cca 108,72 m² ponúka byt dostatok priestoru pre rodiny, páry s priestorovými potrebami alebo náročných profesionálov. Vďaka štandardu KfW-40-QNG, tepelnej čerpadlu a fotovoltaickej inštalácii profitujete z veľmi nízkych prevádzkových nákladov – udržateľne a perspektívne.
Kľúčové údaje na prvý pohľad:
• Životná plocha: cca 108,72 m²
• Izby: 4
• Poschodie: 1. nadzemné podlažie
• Základný nájom: 1.400 €
• Prevádzkové náklady: 150 €
• Parkovacie miesto: 50 €
• Celkový nájom: 1.600 €
Byt sa nachádza v pokojnej lokalite vo Wissinger Mark s dobrou dostupnosťou do Osnabrücku. Obchody, školy, materské školy aj zdravotná starostlivosť sú dostupné v krátkej dobe. Verejná doprava je v pešej vzdialenosti.
• Energeticky efektívne podľa štandardu KfW-40 QNG
• Fotovoltaická inštalácia a tepelné čerpadlo – nízke príplatky, udržateľná energia
• Schüco okná, trojnásobne zasklené, vonkajšia farba čierna / vnútorná biela
• Elektrické žalúzie vo všetkých miestnostiach
• Podlahové kúrenie pre príjemné obytné prostredie
• Moderné, štýlové kúpeľne
• Kvalitné podlahové krytiny
• Balkon alebo terasa pri každom byte
• Parkovacie miesto pre automobil (50 €/mesiac, vrátane jedného miesta pre bicykel)
• Miesta pre bicykle pre všetkých obyvateľov
• Prvý nájom – k dispozícii od 01.02.2026
Požiadavky pre nájomcu
Na prenájom bytu sú potrebné nasledujúce dokumenty:
• 3 aktuálne mzdové potvrdenia
• Aktuálny výpis zo SCHUFA
Parametre nehnuteľnosti
| Vek | Nad 50 rokov |
|---|---|
| Stav | Novostavba |
| Poschodie | 1. poschodie |
| PENB | A - Mimoriadne úsporné |
| Cena za jednotku | 13 € / m2 |
| Dostupné od | 1. 2. 2026 |
|---|---|
| Dispozícia | 4+1 |
| Číslo inzerátu | 984589 |
| Úžitková plocha | 109 m² |
Čo táto nehnuteľnosť ponúka?
| Balkón | |
| Parkovanie | |
| Terasa |
| Bezbariérový prístup | |
| MHD 6 minút pešo |
V okolí nehnuteľnosti nájdete
Stále hľadáte to pravé?
Nastavte si strážneho psa. Ponuky vybrané na mieru dostanete súhrnne 1× denne e-mailom. S Premium profilom máte po ruke rovno 5 strážcov a keď sa niečo objaví, informujú vás obratom.




