
Prenájom bytu 4+1 • 99 m² bez realitkyJahnstr. 7 Osnabrück Osnabrück Niedersachsen 49078
Jahnstr. 7 Osnabrück Osnabrück Niedersachsen 49078MHD 1 minúta pešoKonečne miesto pre vaše sny: Zažite na cca 98 m² skutočný pocit novostavby v nádhernom historickom dome v centrálnej lokalite!
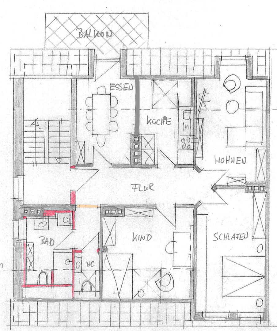
Tento čerstvo zrekonštruovaný podkrovný priestor (prvé nasťahovanie!) vám ponúka 4 svetlé izby, 1 modernú kúpeľňu s otvorenou sprchou, priestranné WC pre hostí a ako absolútny vrchol 10 m² balkón.
Vynikajúco izolované a okamžite na zamilovanie.
Zažite moderné bývanie na novej úrovni. Tento novo upravený podkrovný byt v centrálnej oblasti Osnabrücku (Jahnstraße 7) vám poskytne na cca 96 m² čistý pocit novostavby v tradičnom prostredí.
Kto sa sem nastěhuje, má rád to výnimočné: Všetko v tomto byte je nové. Od luxusnej dizajnovanej podlahovej krytiny, cez moderné obklady v dvoch kúpeľniach (hlavná kúpeľňa + WC pre hostí), až po dôkladnú izoláciu podľa aktuálnych energetických štandardov. Bydlíte úplne navrchu, užívate si pokoj a súkromie, bez toho, aby ste sa museli vzdať výhod centra mesta.
Pôdorys je vynikavo premyslený: Štyri izby vám poskytujú flexibilitu pre spánok, prácu aj pohostinnosť. Veľké, nové okná prisľubujú množstvo prirodzeného svetla a podčiarkujú otvorený charakter bytu.
Efekt "wow": Váš nový vonkajší priestor. Impozantný 10 m² balkón (dokončenie v marci) rozširuje váš obytný priestor smerom von. Či už ide o lounge nábytok alebo jedálenský stôl – tu máte priestor pre svoj vlastný súkromný kútik na čerstvom vzduchu.
Vzácna príležitosť pre tých, ktorí hľadajú niečo výnimočné.
Lokalita:
Jahnstraße patrí medzi veľmi žiadané a centrálne lokality bývania v Osnabrücku. Obchody, verejná doprava, školy, lekári i centrum mesta sú pešo dostupné alebo za niekoľko minút.
Parametre nehnuteľnosti
| Vek | Nad 50 rokov |
|---|---|
| Dispozícia | 4+1 |
| Číslo inzerátu | 984225 |
| Cena za jednotku | 12 € / m2 |
| Stav | Po rekonštrukcii |
|---|---|
| Poschodie | 3. poschodie |
| Úžitková plocha | 99 m² |
Čo táto nehnuteľnosť ponúka?
| Balkón | |
| MHD 1 minúta pešo |
| Pivnica |
V okolí nehnuteľnosti nájdete
Stále hľadáte to pravé?
Nastavte si strážneho psa. Ponuky vybrané na mieru dostanete súhrnne 1× denne e-mailom. S Premium profilom máte po ruke rovno 5 strážcov a keď sa niečo objaví, informujú vás obratom.









