
Prenájom bytu 2+kk • 77 m² bez realitkyMarienstr. 19, , Bádensko-Wurttembersko
Marienstr. 19, , Bádensko-WurttemberskoMHD 2 minúty pešo • Výťah • ParkovanieVitajte vo vašom novom domove vo Waiblingen!
Veľmi centrálne a napriek tomu pokojne situované.
Čaká Vás svetlý, priateľsky zariadený byt.
Kompletná rekonštrukcia!
S novou kúpeľňou, novou podlahou, novými oknami
a novou, modernou vstavanou kuchyňou,
za ktorú sa k základnému nájomnému účtu navyše pripočíta 70€/mesiac.
Obrovská, zeleňou obklopená strešná terasa Vás pozýva na relaxáciu a pôžitok.
Prosíme o poskytnutie výpisu zo Schufa a potvrdenie o príjme.
Tešíme sa na Váš záujem.
Centrálna, pokojná poloha v centre s krátkymi pešími trasami do starého mesta a k nákupom, k lekárovi a do lekárne.
Dve krátke autobusové zastávky až k S-Bahn S2/S3.
Pred domom je zabezpečené parkovacie miesto.
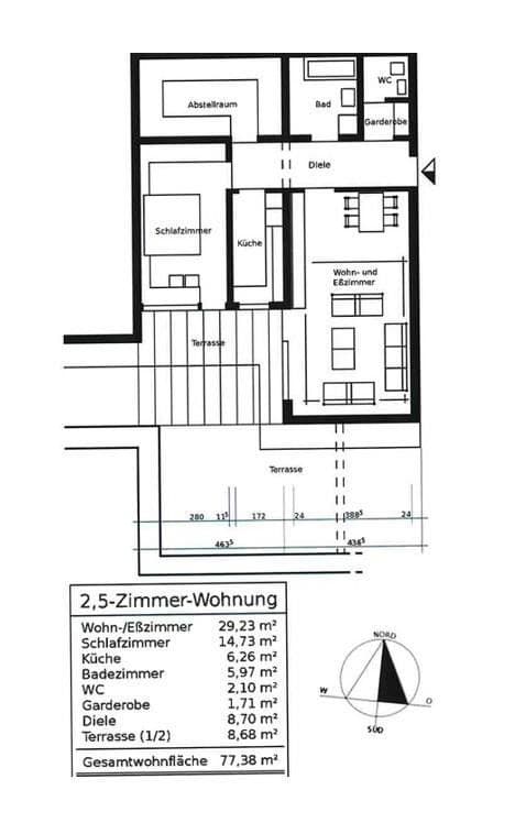
Svetlý byt s približne 70m² strešnej terasy bol kompletne zrekonštruovaný
a disponuje novou, modernou vstavanou kuchyňou vrátane umývačky riadu.
Kúpeľňa aj samostatná toaleta boli kompletne prepracované.
Podlahy v celom byte boli kompletne obložené novou dlažbou.
Všetky vnútorné dvere boli rozšírené.
Všetky okná boli vymenené.
Dom disponuje výťahom pre pohodlný prístup.
K dispozícii je vnútorný zásobovací/úložný priestor o veľkosti približne 10m²,
ktorý možno využiť aj ako pracovňu alebo priestrannú šatňu.
Poznámka:
Veľká strešná terasa bola zahrnutá iba čiastočne
a vnútorný úložný priestor vôbec nebol započítaný do uvádzaných 77m² –
pozriete si pôdorys.
K dispozícii je nový energetický preukaz,
no momentálne je v procese prepracovania.
Parametre nehnuteľnosti
| Vek | Nad 50 rokov |
|---|---|
| Stav | Po rekonštrukcii |
| Poschodie | 1. poschodie |
| PENB | D - Menej hospodárne |
| Cena za jednotku | 14 € / m2 |
| Dostupné od | 25. 1. 2026 |
|---|---|
| Dispozícia | 2+kk |
| Číslo inzerátu | 984288 |
| Úžitková plocha | 77 m² |
Čo táto nehnuteľnosť ponúka?
| Bezbariérový prístup | |
| Výťah | |
| MHD 2 minúty pešo |
| Pivnica | |
| Parkovanie |
V okolí nehnuteľnosti nájdete




Prenájom bytuKörschstraße 49 Stuttgart-Plieningen Plieningen Baden-Württemberg 70599- 3+kk
- 85 m²
945 € + 270 €
Stále hľadáte to pravé?
Nastavte si strážneho psa. Ponuky vybrané na mieru dostanete súhrnne 1× denne e-mailom. S Premium profilom máte po ruke rovno 5 strážcov a keď sa niečo objaví, informujú vás obratom.










