
Predaj domu • 1900 m² bez realitkyHeidmarkstr. 28, , Dolné Sasko
Heidmarkstr. 28, , Dolné SaskoMHD 5minút pešo • ParkovanieIde o rodinný dom pre 6 rodín, nachádzajúci sa na okraji obce Bad Fallingbostel. Aj veľké rodiny tu nájdu priestor na pohodlné bývanie.
Byty sú svetlé a priestranné. Päť z nich disponuje 2 kúpeľňami so sprchou a toaletou, priestrannou kuchyňou, 3 veľkými spálňami a obývacou izbou. Ďalšia vykurovaná izba sa nachádza na 1. poschodí a na pôdorysom je priamo prístupná zo schodiska na podkroví.
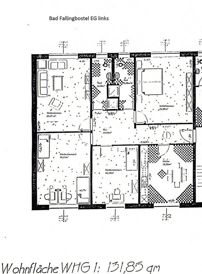
Trojizbový byt v prízemí má úložný priestor, kúpeľňu so sprchou a toaletou, priestrannú kuchyňu a dve spálne s obývacou izbou.
Tento obytný dom sa nachádza na okraji Fallingbostelu, na ulici Walsroder, smerom k Walsrode v oblasti mestského obnovy Wiethop. Prístup je zabezpečený cez Heidmarkstraße.
Byty sú udržiavané v dobrom stave, avšak bez vstavaných kuchýň. Vďaka svojej neobvyklej veľkosti sú kuchyne ideálne využiteľné ako obytné kuchyne.
Trojizbový byt v prízemí, po pravej strane, má priamy vstup do záhrady a bol počas kompletnej rekonštrukcie v roku 2020 vybavený trojsklenými oknami.
Všetky strešné okná boli obnovené v roku 2013.
Pozemok je v súčasnosti udržiavaný sám nájomníkmi.
Byty sú obzvlášť vhodné pre rodiny s deťmi alebo spolubývajúcich; ide o najväčšie byty dostupné v Bad Fallingbostel.
Vďaka úplne naproti postavenej, novej materskej škole sú byty mimoriadne atraktívne pre rodiny s deťmi v predškolskom veku.
V dôsledku vybudovania Heide-Klinikums v bezprostrednom susedstve Wiethop vzniká pre tento objekt zaujímavý rozvojový potenciál.
Všetkých šesť bytov je momentálne prenajatých.
Schodisko vyžaduje rekonštrukciu.
Parametre nehnuteľnosti
| Vek | Nad 50 rokov |
|---|---|
| Poschodie | 2. poschodie z 2 |
| PENB | D - Menej hospodárne |
| Plocha pozemku | 1 900 m² |
| Stav | Dobrý |
|---|---|
| Číslo inzerátu | 984070 |
| Úžitková plocha | 1 900 m² |
| Cena za jednotku | 347 € / m2 |
Čo táto nehnuteľnosť ponúka?
| Parkovanie |
| MHD 5 minút pešo |
V okolí nehnuteľnosti nájdete
Stále hľadáte to pravé?
Nastavte si strážneho psa. Ponuky vybrané na mieru dostanete súhrnne 1× denne e-mailom. S Premium profilom máte po ruke rovno 5 strážcov a keď sa niečo objaví, informujú vás obratom.





