
Predaj domu 6+1 • 135 m² bez realitkyBergedorf OT Neuallermöhe Neuallermöhe Hamburg 21035
Bergedorf OT Neuallermöhe Neuallermöhe Hamburg 21035MHD 1 minúta pešo • ParkovanieUdržiavaný radový dom postavený v roku 1996 ponúka s obytnou plochou 135 m2 priestor pre veľkú rodinu. Disponuje šiestimi izbami, kompletne vybavenou kúpeľňou, sprchovacou kúpeľňou, hosťovskou toaletou aj vstavanou kuchyňou.
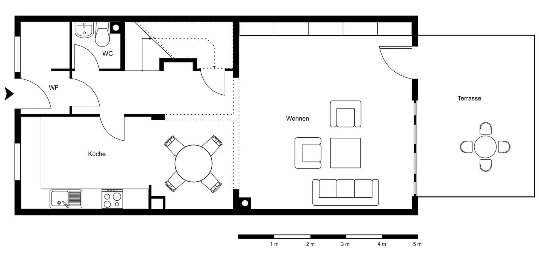
Na zvláštnu pozornosť si zaslúži priestranná obývacia/jedálenská časť s dubovým parketom vrátane podlahového vykurovania a prilehlou otvorenou vstavanou kuchyňou. Krb s panoramatickým výhľadovým oknom vytvára útulnú atmosféru. Podlahové okná po celej dĺžke vedú na terasu dláždenú prírodnými kameňmi, orientovanú na juhozápad, a do zatránenej, súkromnej záhrady.
Oblasť pod schodiskom je ideálne využitá ako priechodná úložná miestnosť. Medzi vstupnými dverami a hosťovskou toaletou sa nachádza priestor s integrovanou odevnou skriňou a poličkou na topánky.
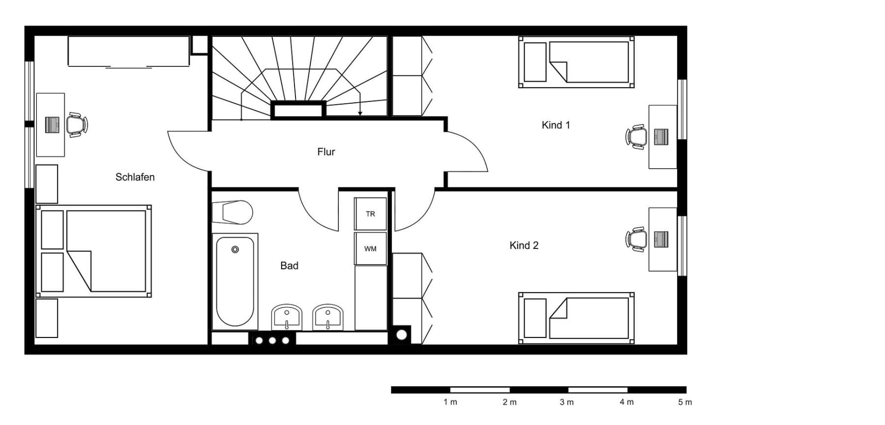
Na prvom poschodí sa nachádzajú tri izby a svetlá dlažbová kúpeľňa s vaňou a dvojitým umývadlom, pričom je tu priestor aj pre práčku a sušičku.
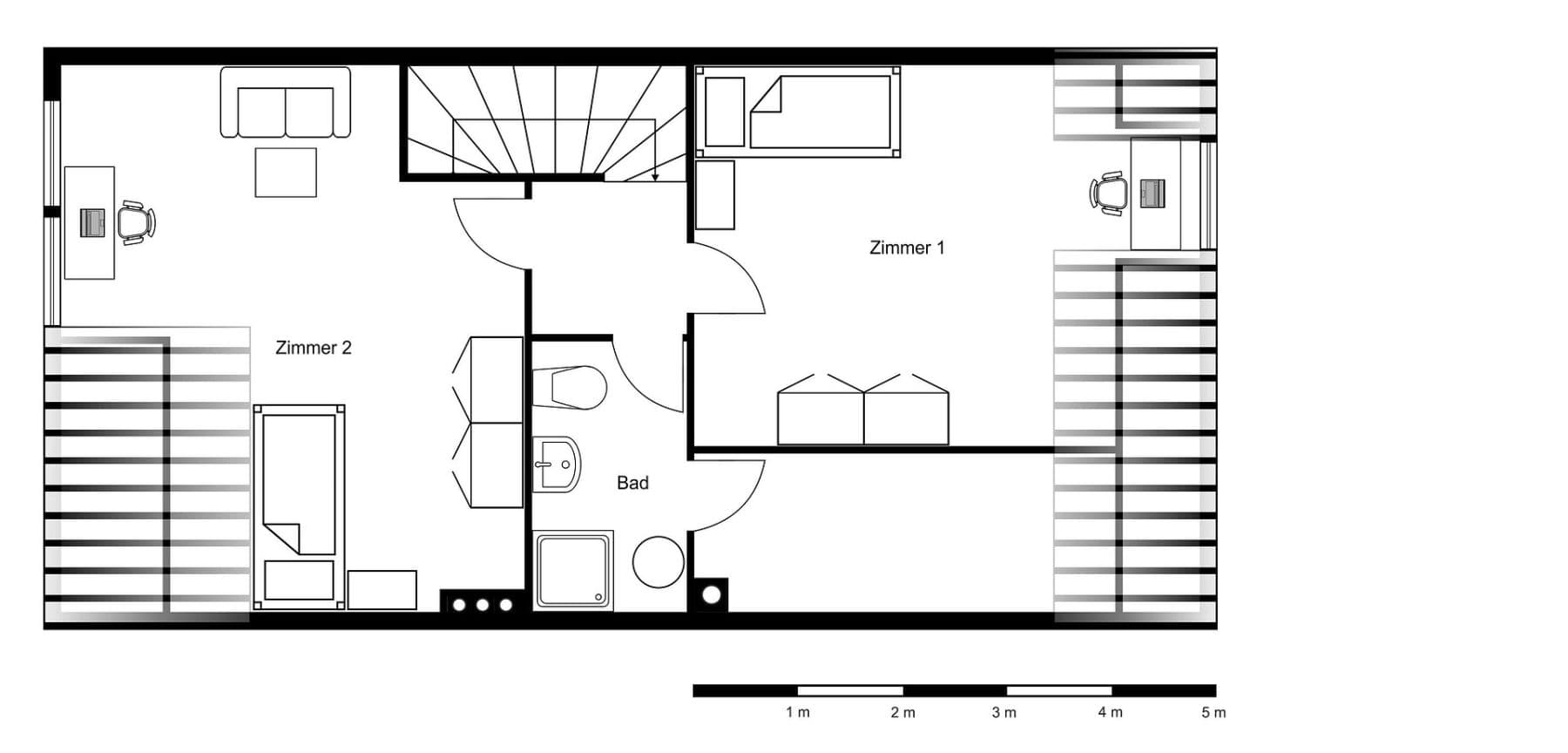
Na podkroví sú dve izby so šikmými stenami a vyklenutými oknami (gaubami), taktiež svetlá dlažbová sprchovacia kúpeľňa a vykurovacia miestnosť so strešným oknom, ktorá je ideálna na sušenie bielizne.
Podkrovie ponúka veľa úložného priestoru a navyše by sa z jednej z izieb mohlo odvodiť ako spálňa alebo miestnosť s patrovou posteľou.
Okrem toho pred domom nájdete parkovacie miesto pre auto a kolobúdku.
Radový dom sa nachádza v hamburgskej štvrti Allermöhe, v dopravou upokojenej hracej ulici. Detské ihriská a jazero Allermöhe sú vzdialené približne 200 m. Okolie je charakterizované harmonickou zmesou malých obytných ulíc a priestranných zelených plôch. O desať minút pešo sa nachádza stanica S-Bahn „Allermöhe“, odkiaľ sa za 15 minút dostanete na hlavné nádražie, a premávajú aj viaceré autobusové linky. Materské školy, základné školy, okrsková škola a gymnázium, rovnako ako obchody pre každodenné potreby a lekári, sú ľahko dostupné pešo.
Diaľnica A25 je vzdialená približne 3 autominúty.
Na oddych pozýva nedaleko ležiace jazero Allermöhe a niekoľko parkov a detských ihrísk. Vďaka oblastiam Vier- a Marschlanden a chránenému územiu Boberger Dünen sa dajú podniknúť nádherné, rozsiahle cyklistické výlety.
* V prízemí: vstavaná kuchyňa, terakotové dlaždice v kuchyni a chodbe, dubový parket a podlahové vykurovanie v obývačke, krb, hosťovská toaleta
* Na prvom poschodí: tri izby, kompletne vybavená kúpeľňa, korková podlaha
* Na podkroví: dve izby s gaubami, sprchovacia kúpeľňa, vykurovacia miestnosť, korková podlaha
* Drevené schody, prízemie uzavreté, podkrovia otvorené
* Podkrovie
* Terasa, záhrada, parkovacie miesto, kolobúdka
Dom bol priebežne modernizovaný, pričom:
2018 bola sprchovacia kúpeľňa kompletne zrenovovaná a v kompletnej kúpeľni bolo inštalované nové dvojité umývadlo s podstavcom.
2019 sa vymenilo niekoľko častí okiennych tabúľ, pričom drevený rám zostal zachovaný. V rámci týchto prác boli ošetrené a natreté vstupné dvere a všetky rámiky okien.
2020 prebehla kontrola tesnosti základných rozvodov a šacht.
2021 bola v obývačke inštalovaná podlahové vykurovanie a podlaha bola pokrytá dubovým parketom.
2022 bol inštalovaný nový krb – Contura 596 – ktorý spĺňa predpísané emisné hodnoty.
2024 bol inštalovaný nový teplovodný zásobník vrátane nového prívodu, pumpy a nadtlakového ventilu.
2025 prebehlo pripojenie na optiku.
Dom je v udržiavanom stave s typickým známkami opotrebenia a môže byť nasťahovaný po individuálnych maľovacích alebo tapetových prácach.
Parametre nehnuteľnosti
| Vek | Nad 50 rokov |
|---|---|
| Dispozícia | 6+1 |
| PENB | B - Veľmi úsporné |
| Plocha pozemku | 165 m² |
| Cena za jednotku | 3 919 € / m2 |
| Stav | Dobrý |
|---|---|
| Číslo inzerátu | 984045 |
| Úžitková plocha | 135 m² |
| Celkové poschodia | 3 |
Čo táto nehnuteľnosť ponúka?
| Parkovanie | |
| Terasa |
| MHD 1 minúta pešo |
V okolí nehnuteľnosti nájdete
Stále hľadáte to pravé?
Nastavte si strážneho psa. Ponuky vybrané na mieru dostanete súhrnne 1× denne e-mailom. S Premium profilom máte po ruke rovno 5 strážcov a keď sa niečo objaví, informujú vás obratom.


















