
Prenájom bytu 3+kk • 103 m² bez realitkyBělehradská, Praha - Vinohrady
Bělehradská, Praha - VinohradyMesačné nájomné34 000 CZK
+ Poplatky za služby1 100 CZK
+ Vratná kaucia34 000 CZK
Nabízím k pronájmu byt v blízkosti I.P. Pavlova a náměstí Míru nacházející se ve třetím patře činžovního domu s výtahem. Vytápění vlastním plynovým kotlem. Uvedené domovní poplatky jsou na osobu. Elektřinu a plyn si nájemce přepisuje na sebe.
Parametre nehnuteľnosti
| Dostupné od | 1. 3. 2026 |
|---|---|
| Konštrukcia budovy | Tehla |
| Vybavené | Nevybavené |
| Číslo inzerátu | 983767 |
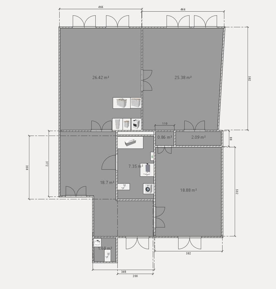
| Úžitková plocha | 103 m² |
| Stav | Veľmi dobrý |
|---|---|
| Dispozícia | 3+kk |
| Poschodie | 4. poschodie z 5 |
| Umiestnenie | Centrum mesta |
| Cena za jednotku | 330 CZK / m2 |
V okolí nehnuteľnosti nájdete
Vzdialenosť k:
Mesačné nájomné34 000 CZK
+ Poplatky za služby1 100 CZK
+ Vratná kaucia34 000 CZK
Stále hľadáte to pravé?
Nastavte si strážneho psa. Ponuky vybrané na mieru dostanete súhrnne 1× denne e-mailom. S Premium profilom máte po ruke rovno 5 strážcov a keď sa niečo objaví, informujú vás obratom.












