
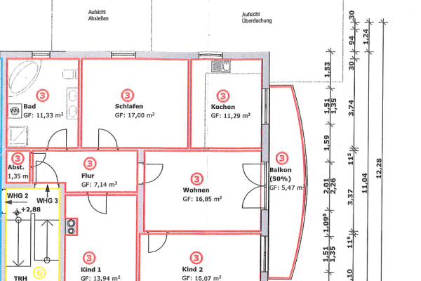
Predaj bytu 4+1 • 94 m² bez realitkyFriedrichstr. 12, , Hesensko
Exkluzívny záhradný byt so 4 izbami v novostavbe „Weitblick Biebertal“ ponúka na 93 m² obytného priestoru moderný a udržateľný koncept bývania.
Dokonalá rovnováha medzi prírodou a mestom – Nachádza sa v pokojnom prostredí s priamou blízkosťou obchodov, reštaurácií a možností voľnočasových aktivít.
Veľkorysá terasa – Súkromné útočisko pre oddychové večery, raňajky na čerstvom vzduchu alebo priateľské stretnutia.
Maximálna energetická efektívnosť (štandard KfW 55) – Výrazne znižuje náklady na kúrenie a súvisiace výdavky a zabezpečuje udržateľné bývanie.
Svetlé, otvorené priestory s oknami od podlahy po strop – Zaručujú optimálne denné osvetlenie a vzdušnú atmosféru.
Luxusné vybavenie – Kvalitné materiály ako porcelánové obklady, armatury od Hans Grohe a Geberit, a podlahové kúrenie poskytujú maximálny komfort.
Bezbariérový prístup s využitím výťahového systému – Ideálny pre všetky životné etapy.
Dve vonkajšie parkovacie miesta pre maximálnu flexibilitu – Pohodlné parkovanie priamo pri budove, cena bez započítania.
Projekt sa nachádza v idylickej obci Biebertal, zasadenej do zelenej a pokojnej prírody. Centrálna poloha ponúka vynikajúce spojenie na obchody, kaviarne, reštaurácie a všetky dôležité zariadenia každodenného života. Okolité pôvabné ulice a staré stromy vytvárajú príjemnú atmosféru. Možnosti voľnočasových aktivít ako turistické chodníky a prírodné plochy sú len pár krokov vzdialené, čo robí z Biebertalu ideálne miesto pre milovníkov prírody a rodiny.
Ako súčasť energeticky efektívneho viacfamilijného domu so štandardom KfW 55 kombinuje vysokokvalitný komfort bývania s úspornou stavbou s ohľadom na zdroje. Veľkorysá strešná terasa a svetlé priestory vytvárajú luxusnú atmosféru pre dokonalý pocit domova.
Parametre nehnuteľnosti
| Vek | Nad 50 rokov |
|---|---|
| Dispozícia | 4+1 |
| PENB | A - Mimoriadne úsporné |
| Cena za jednotku | 4 367 € / m2 |
| Stav | Novostavba |
|---|---|
| Číslo inzerátu | 983669 |
| Úžitková plocha | 94 m² |
Čo táto nehnuteľnosť ponúka?
| Bezbariérový prístup | |
| Parkovanie | |
| Terasa |
| Výťah | |
| MHD 6 minút pešo |
V okolí nehnuteľnosti nájdete
Stále hľadáte to pravé?
Nastavte si strážneho psa. Ponuky vybrané na mieru dostanete súhrnne 1× denne e-mailom. S Premium profilom máte po ruke rovno 5 strážcov a keď sa niečo objaví, informujú vás obratom.


