
Prenájom bytu 2+1 • 68 m² bez realitky, Bavorsko
, BavorskoMHD 1 minúta pešoPríjemný 2-izbový byt v prízemí rodinného domu s podnájomným bytom v Sulzbach a. Main vás pozýva k pohodliu. Dom je energeticky efektívne vykurovaný geotermálnou tepelnou pompou a fotovoltaickou elektrárňou. Tento koncept nie je len udržateľný, ale ušetrí vám aj značnú sumu na prevádzkových nákladoch.
Vybavenie:
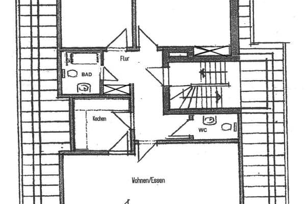
• 2 svetlé izby s úložnou miestnosťou, pivnica a terasa.
• Kuchyňa sa demontuje predchádzajúcim nájomníkom a preto ju nie je možné prevziať.
• Kúpeľňa s denným svetlom, vaňou, sprchou a WC.
• Obklady a laminátové podlahy spolu s podlahovým kúrením zaručujú komfort.
• Praktická úložná miestnosť s prípojkou pre práčku.
• K dispozícii je TV káblová prípojka.
• V súčasnosti sa inštaluje optické pripojenie, ktoré bude čoskoro k dispozícii.
Bez provízie s termínom nasťahovania od 01.03.2026 – uzavrieme indexovanú nájomnú zmluvu, aby sme zaistili dlhodobú istotu pre nájomcov. Kontaktujte nás pre obhliadku!
Sulzbach am Main, s približne 8000 obyvateľmi, je trhová obec v podfranském okres Miltenberg a nachádza sa približne 7 km južne od Aschaffenburgu, na západnom okraji Spessartu. Okrem dobrej infraštruktúry s viacerými trhmi a obchodmi sa v obci nachádza niekoľko lekárov a zubárov, materské školy a jasle, základná aj stredná škola, ako aj početné maloobchodné prevádzky, pekárne a mäsiareň. Jedinečná prírodná poloha a množstvo klubov ponúkajú nespočetné možnosti pre voľnočasové aktivity. Prepojenie na verejnú dopravu autobusom a vlakom je veľmi dobré – autobusová zastávka je len pár metrov vzdialená.
Parametre nehnuteľnosti
| Vek | Nad 50 rokov |
|---|---|
| Dispozícia | 2+1 |
| Úžitková plocha | 68 m² |
| Stav | Dobrý |
|---|---|
| Číslo inzerátu | 983597 |
| Cena za jednotku | 12 € / m2 |
Čo táto nehnuteľnosť ponúka?
| MHD 1 minúta pešo |
V okolí nehnuteľnosti nájdete
Stále hľadáte to pravé?
Nastavte si strážneho psa. Ponuky vybrané na mieru dostanete súhrnne 1× denne e-mailom. S Premium profilom máte po ruke rovno 5 strážcov a keď sa niečo objaví, informujú vás obratom.










