
Prenájom bytu 2+1 • 74 m² bez realitky, Dolné Sasko
, Dolné SaskoMHD 1 minúta pešo • Výťah • ParkovaniePopis nehnuteľnosti:
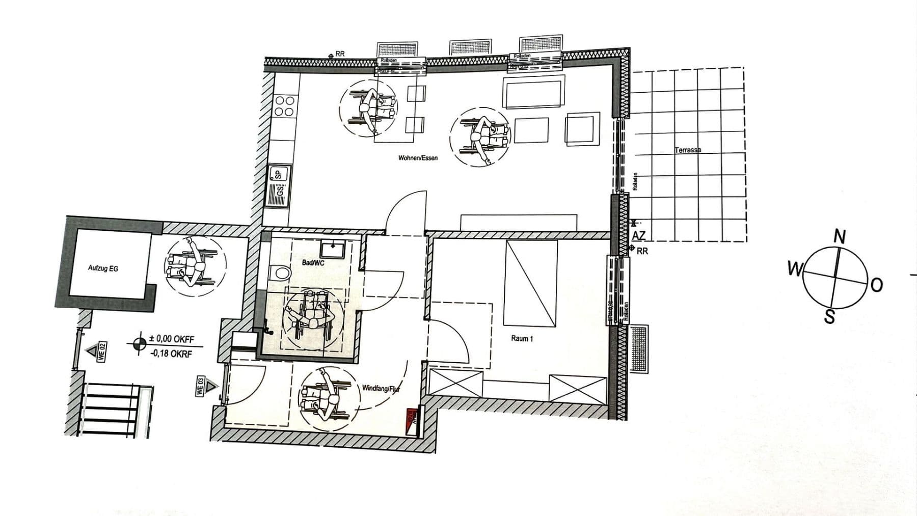
Tento príťažlivý byt sa nachádza v prízemí udržiavaného, absolútne tichého obytného komplexu. Byt zaujme priestranným rozložením miestností. Medzi ne patrí dve priestranné izby, z toho jedna s východniou terasou, moderná vstavaná kuchyňa a moderná kúpeľňa.
Každá izba je vybavená elektrickými roletami.
Základný nájom činí 1 147,00 EUR, k nemu sa pripočítavajú zálohy na poplatky vo výške 250,00 EUR. Zálohy na poplatky zahŕňajú všetky náklady okrem elektriny: náklady na kúrenie, poplatky za odvoz odpadu, vodu/kanalizáciu, poistenie a obecnu daň z nehnuteľnosti.
Náklady na elektrinu platí nájomca priamo dodávateľovi.
Ďalej k bytu patrí 1 parkovacie miesto v carporte (v cene nájmu, celkovo 60,00 EUR).
Druhý parkovací priestor v carporte je k dispozícii za 60 EUR mesačne.
Tešíme sa na Vašu požiadavku so stručným popisom (počet osôb, povolanie, vek).
Obec Jesteburg sa nachádza 30 km južne od Hamburgu v okrese Harburg.
Tu si môžete zaplávať v otvorenom bazéne a s malými zažiť dobrodružstvá na ihrisku JestePark. Turisti a cyklisti ocenia dobre udržiavané cesty rovnako ako vodáci rieky Seeve.
VfL Jesteburg ponúka široké spektrum aktivít, dokonca je k dispozícii aj jazdecké centrum.
Tri golfové ihriská sa nachádzajú v okruhu iba 10 km.
V obci a na jej okraji nájdete množstvo nákupných možností (Famila, Aldi, Penny, REWE, Budnikowski a pod.).
Jesteburg má štyri materské školy a základnú aj strednú školu s gymnáziálnym programom.
Pre zdravotnú starostlivosť je k dispozícii dobrá ponuka lekárov a zubárov, lekární a ošetrovateľských služieb. Domovy dôchodcov a ošetrovateľské domovy sa tiež nachádzajú v obci.
Bez vlastného auta môžete využiť autobusové linky alebo počas sezóny Heideshuttle na krásne výletné destinácie v oblasti Heide.
Existuje veľmi dobré autobusové spojenie s blízkymi obcami Hanstedt a Harburg, ako aj s Buchholz (odtiaľ je Hamburg dostupný vlakom Metronom za približne 25 minút).
K bytu patrí:
- 1 parkovacie miesto v carporte (zahrnuté v základnom nájme).
Na požiadanie je možné si prenajať druhé parkovacie miesto v carporte za 60 EUR mesačne.
- Veľký pivničný priestor
- Ďalšia spoločná pivnica určená na bicykle
- Vlastné miesto pre práčku a sušičku v spoločnej práčovni
- Terasa
- Moderná vstavaná kuchyňa
- Rolety
- Vinylová podlaha
- Podlahové kúrenie
- Veľká kúpeľňa s bezprahovou sprchou
Bezbariérový prístup
Parametre nehnuteľnosti
| Dostupné od | 23. 1. 2026 |
|---|---|
| Dispozícia | 2+1 |
| Úžitková plocha | 74 m² |
| Stav | Novostavba |
|---|---|
| Číslo inzerátu | 983563 |
| Cena za jednotku | 16 € / m2 |
Čo táto nehnuteľnosť ponúka?
| Bezbariérový prístup | |
| Výťah | |
| MHD 1 minúta pešo |
| Pivnica | |
| Parkovanie | |
| Terasa |
V okolí nehnuteľnosti nájdete
Stále hľadáte to pravé?
Nastavte si strážneho psa. Ponuky vybrané na mieru dostanete súhrnne 1× denne e-mailom. S Premium profilom máte po ruke rovno 5 strážcov a keď sa niečo objaví, informujú vás obratom.













