Prenájom domu 7+1 • 243 m² bez realitkyAltötting Altötting Bayern 84503
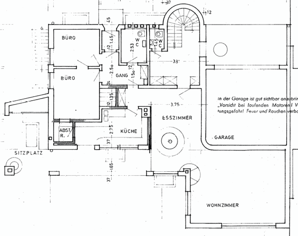
Altötting Altötting Bayern 84503MHD 2 minúty pešo • GarážRodinný dom s samostatným bytom a veľmi priestrannou, udržiavanou záhradou bol postavený v roku 1975 v štýle Bauhaus.
V prízemí sa nachádza okrem jedálne a kuchyne aj veľmi obrovská obývačka (merajúca takmer 40 m²), ktorá je orientovaná na juh.
Okrem toho, v západnej časti domu, je umiestnený samostatný byt s dvomi kanceláriami, sprchou a WC. Tento byt má samostatný vstup a v súčasnosti je spojený so zvyškom domu.
V nadstropí sa nachádzajú tri veľké spálne a dve ďalšie kúpeľne, ako aj balkón orientovaný na juh.
V suteréne sa vedľa technickej miestnosti/ohrevu nachádza práčovňa a úložná miestnosť. Vyzdvihujúcim prvkom v suteréne je veľmi priestranná záujmová miestnosť s veľkým oknom (orientovaná na juh s posýpkou pre dostatok svetla).
Garáž je dvojgaráž – pojme dva autá.
Prenajímaný objekt sa nachádza na západe Altöttingu v obytnom sídlisku na pokojnej slepej uličke a je orientovaný na juh.
Dom bol postavený v roku 1975 v štýle Bauhaus a počas rokov bol viackrát renovovaný, pričom väčšina zostáva v pôvodnom stave. Kúpeľne pochádzajú z doby výstavby, ale sú veľmi dobre udržiavané. Miestami sú inštalované elektrické žalúzie.
V roku 2023 bol olejový kotol nahradený pripojením na diaľkové kúrenie.
Dom bol nedávno pripojený na optickú sieť Telekomu.
Renovácia a estetické drobné úpravy môžu byť vykonané v dohode.
Na kompenzáciu inflácie sa dohodne stupňovitý nájom. Detaily budú vysvetlené pri osobnom stretnutí.
Žiadosti prosím posielať emailom s uvedením telefónneho čísla a možných časov na spätné volanie.
Potom vám rád zavolám späť – ďakujem.
Parametre nehnuteľnosti
| Vek | Nad 50 rokov |
|---|---|
| Dispozícia | 7+1 |
| PENB | G - Mimoriadne nehospodárne |
| Plocha pozemku | 745 m² |
| Cena za jednotku | 9 € / m2 |
| Stav | Dobrý |
|---|---|
| Číslo inzerátu | 983252 |
| Úžitková plocha | 243 m² |
| Celkové poschodia | 2 |
Čo táto nehnuteľnosť ponúka?
| Balkón | |
| Garáž | |
| Terasa |
| Pivnica | |
| MHD 2 minúty pešo |
V okolí nehnuteľnosti nájdete
Stále hľadáte to pravé?
Nastavte si strážneho psa. Ponuky vybrané na mieru dostanete súhrnne 1× denne e-mailom. S Premium profilom máte po ruke rovno 5 strážcov a keď sa niečo objaví, informujú vás obratom.






















