
Predaj domu 4+kk • 105 m² bez realitky, Bádensko-Wurttembersko
, Bádensko-WurttemberskoMHD do minúty pešo • Parkovanie • GarážTáto atraktívna nehnuteľnosť je jednopodlažný rodinný dom.
Tento samostatne stojaci rodinný dom s úplným suterénom vám ponúka dokonalú kombináciu polohy blízko centra a absolútneho pokoja v očarujúcej bočnej ulici v Oedheim. Priestranná záhrada vás láka na oddych a vychutnávanie.
Kľúčové výhody nehnuteľnosti:
- Samostatne stojaci rodinný dom v pokojnej slepej uličke
- Atraktívna, nenáročná záhrada na oddych
- Priestranná zimná záhrada s približne 18 m² dodatočného obytného priestoru
- Praktická garáž na pozemku
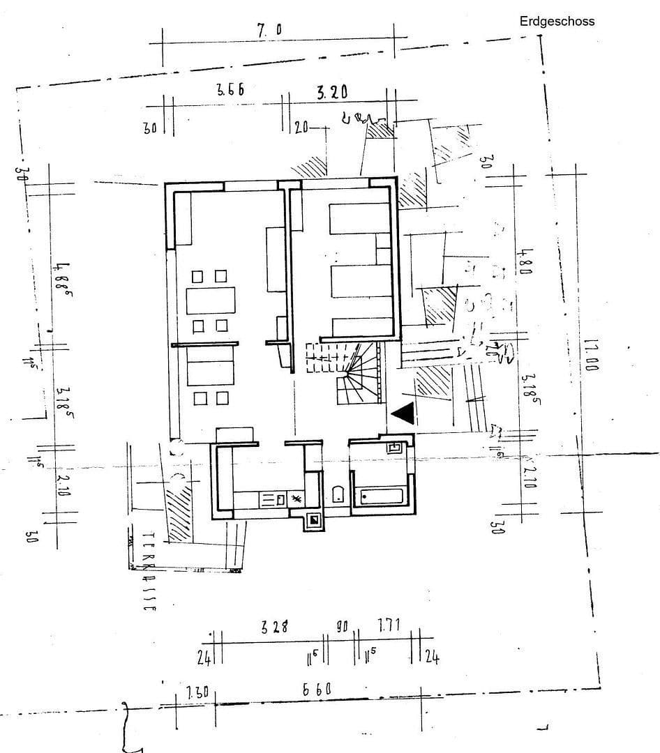
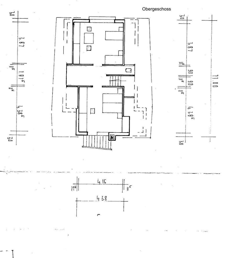
- Jasné a premyslené rozdelenie priestoru – podrobnosti nájdete v priložených plánoch pod fotografiami
Nehnuteľnosť je okamžite na predaj.
Dom ponúka štyri a pol atraktívnych izieb. K domu patrí aj garáž so skúsenými dvoma parkovacími miestami pred ním, takže vy aj vaši hostia vždy nájdete miesto na parkovanie. Rovnako komfortný je aj suterén, ktorý poskytuje úložný priestor pre vaše veci. Ak hľadáte miesto na záhradkárčenie, hranie sa alebo grilovanie s priateľmi, na 515 štvorcových metroch príslušného pozemku si môžete oddýchnuť.
Cena nehnuteľnosti spolu s pozemkom je 499 000 eur (cena dohodou).
Dôležité informácie:
Bez provízie pre kupujúceho (úspora cca 20 000 €).
Prosíme maklérov a komerčných poskytovateľov, aby sa zdržiavali dopytov.
Pri otázkach alebo pri dohadovaní prehliadky nás prosím kontaktujte výlučne prostredníctvom e-mailu:
HausOedheim2024@web.de
Nehnuteľnosť vás zaujme vynikajúcou dopravnou dostupnosťou: len 8 km od diaľnice A81 a 9 km od A6. Mesto Heilbronn je vzdialené iba 12 km a do Neckarsulmu len 10 km.
V bezprostrednej pešej vzdialenosti nájdete všetky zariadenia pre každodennú potrebu – supermarkety ako Edeka a Netto, lekárske ordinácie a materské škôlky, niekoľko reštaurácií, pekárne a kaviareň. Taktiež tu nájdete rôzne fitness centrá, dva zelené parky a záhradné plochy, poštové odberné miesto a lekáreň. Napriek tejto centrálnej polohe si tu vychutnáte absolútny pokoj slepej uličky.
Krásna rieka Kocher je taktiež neoddeliteľnou súčasťou Oedheimu.
Táto nehnuteľnosť vám ponúka ideálne útočisko v žiadanej a zároveň tichej obytné oblasti. Neváhajte nás kontaktovať pre ďalšie informácie!
Prosíme maklérov a komerčných poskytovateľov, aby sa zdržiavali dopytov.
Pri otázkach alebo pri dohadovaní prehliadky nás prosím kontaktujte výlučne prostredníctvom e-mailu:
HausOedheim2024@web.de
Parametre nehnuteľnosti
| Vek | Nad 50 rokov |
|---|---|
| Dispozícia | 4+kk |
| PENB | G - Mimoriadne nehospodárne |
| Plocha pozemku | 515 m² |
| Cena za jednotku | 5 333 € / m2 |
| Stav | Dobrý |
|---|---|
| Číslo inzerátu | 982977 |
| Úžitková plocha | 105 m² |
| Celkové poschodia | 1 |
Čo táto nehnuteľnosť ponúka?
| Balkón | |
| Garáž | |
| MHD 0 minút pešo |
| Pivnica | |
| Parkovanie |
V okolí nehnuteľnosti nájdete
Stále hľadáte to pravé?
Nastavte si strážneho psa. Ponuky vybrané na mieru dostanete súhrnne 1× denne e-mailom. S Premium profilom máte po ruke rovno 5 strážcov a keď sa niečo objaví, informujú vás obratom.
































