
Predaj domu 4+1 • 116 m² bez realitky, Bádensko-Wurttembersko
, Bádensko-WurttemberskoMHD 1 minúta pešo • ParkovaniePecekný radový koncový dom na súkromný predaj.
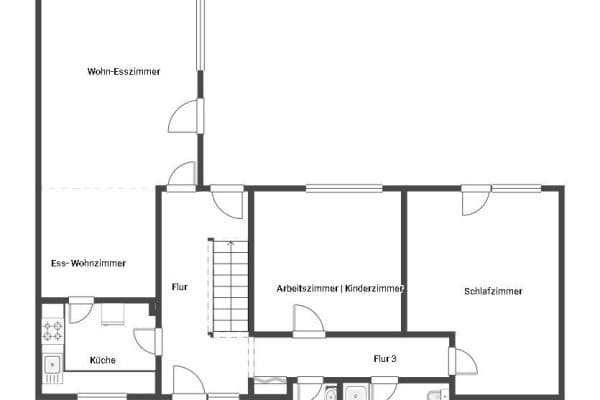
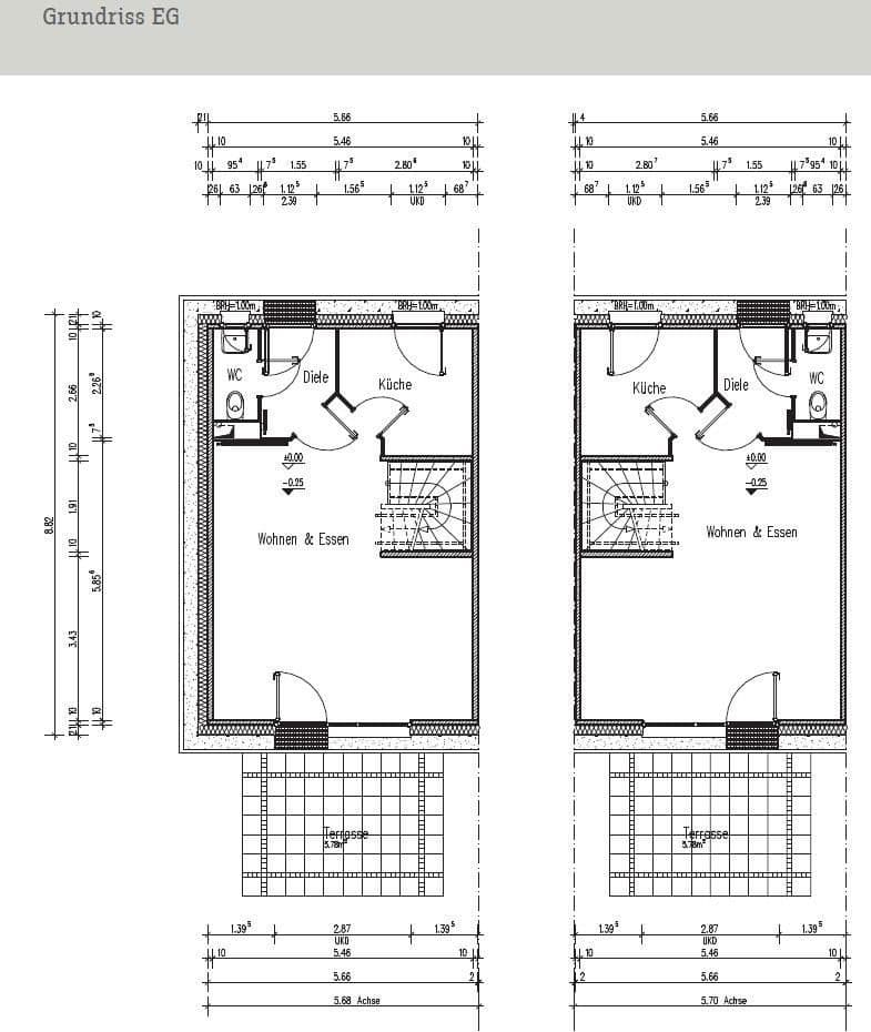
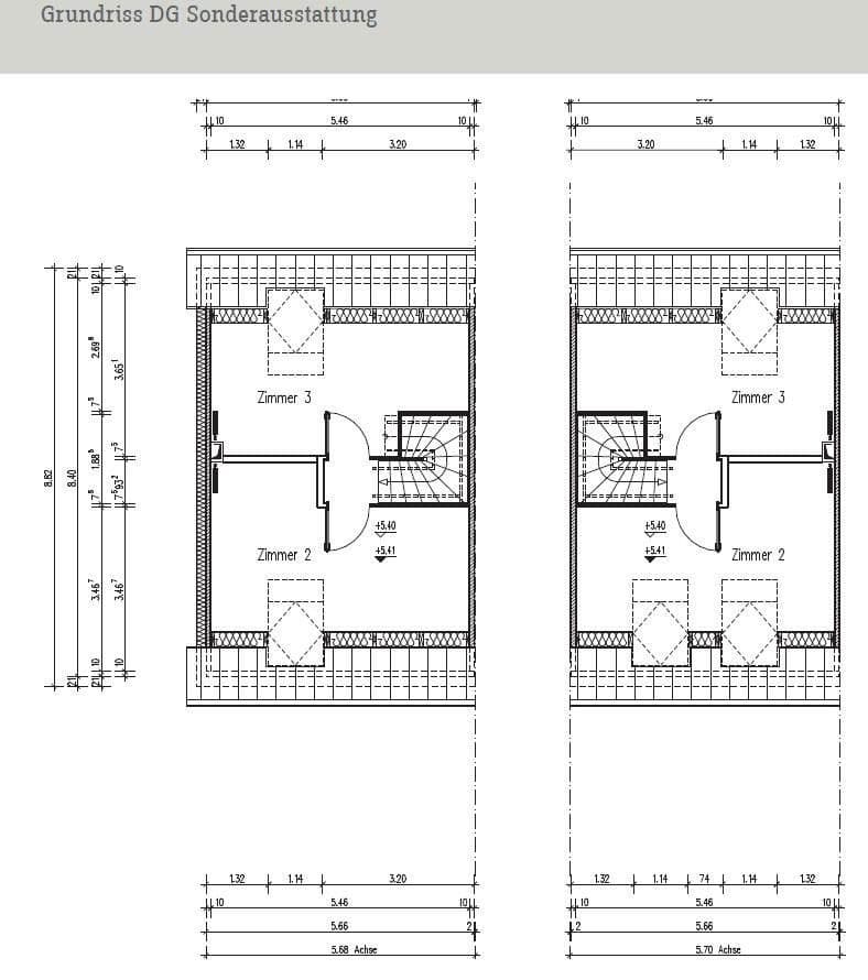
Tento troj-poschodový, priateľský a upravený radový dom zaujme vysoko kvalitným interiérovým vybavením. Dom s 116 m² obytného priestoru ponúka celkovo 4 izby (prízemie – otvorený obývacie a jedálenský priestor, poschodie – spálňa, podkrovie upravené na 2 izby), kúpeľňu s denným svetlom, kúpeľňu pre hostí s denným svetlom, práčovňu, skladovaciu miestnosť, terasu, záhradu a záhradnú budku, ako aj 2 parkovacie miesta priamo pri dome.
Kvalita
Masívna konštrukcia: 10 cm betón, 20 cm izolácia.
Zvuková izolácia: žiadne spoločné steny so susedmi – každý dom má vlastné steny.
Optimálna tepelná izolácia vďaka izolácii tepelnej čerpadla (WLG) 0,035 W/(m*K), vrátane grafitu pre účinnú požiarnu ochranu.
Premyslené dispozičné riešenie pre realizáciu vašich individuálnych predstáv o bývaní.
Komfort bývania
Priestranné, svetlé izby (výška stropov: 2,50 m v prízemí a poschodí).
Vyššie priestory na podkroví (až do 3,10 m výšky stropu) vďaka otvorenému skosenému stropu so širokými strešnými oknami.
Kúpeľňa s denným svetlom vybavená prístupnou sprchou, šesťuholníkovou vaňou a dvojitým umývadlom.
Samostatné WC pre hostí.
Záhrada s veľkou terasou a záhradnou budkou.
Blokové tepelnosíce zariadenie na zabezpečenie energie, poháňané mestským teplom.
V súčasnosti je dom prenajatý. Nájomná zmluva končí dňa 31. 1. 2026.
Vitajte vo Weinheime – atraktívnom meste dvoch hradov na Bergstraße, ktoré ideálne spája mestský život, historickú atmosféru a relaxáciu v prírode. Nehnuteľnosť sa nachádza v žiadanej lokalite s vynikajúcou infraštruktúrou a vysokou kvalitou života.
Šarmantné historické centrum so svojimi úzkymi uličkami, útulnými kaviarňami a rozmanitými obchodmi je dostupné pešo. V bezprostrednej blízkosti nájdete množstvo zariadení dennej potreby: supermarkety, pekárne, lekárne, lekárov, reštaurácie, ako aj dva nákupné centrá s bohatou ponukou módnych, knižných a špecializovaných obchodov.
Množstvo zelene a parkov, ako je zámocký park alebo exotický les, vás pozýva na prechádzky, beh či oddych. Rodiny ocenia blízkosť ihrísk a rekreačných zariadení, zatiaľ čo športoví nadšenci nájdu potešenie vo fitness centrách, športových kluboch alebo na dobre upravených cyklistických a turistických chodníkoch. Aj kultúrne má Weinheim čo ponúknuť – s množstvom podujatí, múzeí a pestrým programom v historickom prostredí.
Dopravná dostupnosť je vynikajúca: v priebehu niekoľkých minút dosiahnete diaľnice A5 alebo A659, ktoré poskytujú rýchle spojenie do metropolitnej oblasti Rýn-Neckar. Mesta Mannheim, Heidelberg a Darmstadt sú rovnako dobre dostupné, rovnako ako medzinárodné letisko vo Frankfurte, ktoré je vzdialené len približne 40 minút. Železničná stanica Weinheim navyše zabezpečuje priamu dostupnosť verejnej dopravy.
Nízkoenergetický dom.
Kúpeľňa s denným svetlom a WC pre hostí.
Práčovňa aj skladovacia miestnosť.
Digitálna satelitná anténa a príprava pre telefónne/internetové pripojenie vo všetkých izbách.
Záhrada s veľkou terasou a záhradnou budkou.
Dve parkovacie miesta priamo pri dome.
Parametre nehnuteľnosti
| Vek | Nad 50 rokov |
|---|---|
| Stav | Dobrý |
| Číslo inzerátu | 982927 |
| Úžitková plocha | 116 m² |
| Celkové poschodia | 3 |
| Dostupné od | 1. 2. 2026 |
|---|---|
| Dispozícia | 4+1 |
| PENB | A - Mimoriadne úsporné |
| Plocha pozemku | 195 m² |
| Cena za jednotku | 4 267 € / m2 |
Čo táto nehnuteľnosť ponúka?
| Parkovanie | |
| Terasa |
| MHD 1 minúta pešo |
V okolí nehnuteľnosti nájdete
Stále hľadáte to pravé?
Nastavte si strážneho psa. Ponuky vybrané na mieru dostanete súhrnne 1× denne e-mailom. S Premium profilom máte po ruke rovno 5 strážcov a keď sa niečo objaví, informujú vás obratom.













