
Predaj domu • 455 m² bez realitkyHamburg Stellingen Hamburg 22525
Hamburg Stellingen Hamburg 22525MHD 2 minúty pešo • GarážBei danej ponúkanej nehnuteľnosti ide o architektonický viacrodinný dom s piatimi obytnými jednotkami, ktorý sa nachádza v žiadanej lokalite v okrese Eimsbüttel. Budova bola postavená masívnou konštrukciou. Pozemok má rozlohu 1.394 m² a ponúka na zadnej časti rozľahlú záhradu, ktorá je k dispozícii všetkým nájomcom. Celková obytná plocha je približne 455 m².
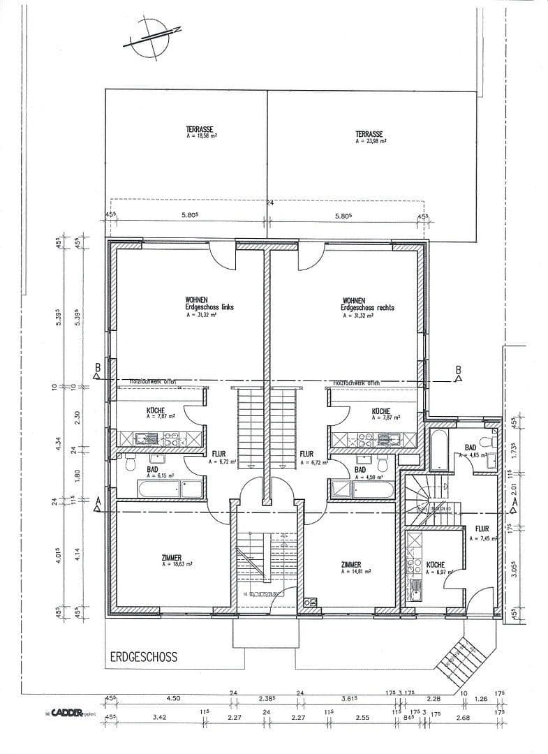
Obytné jednotky sú rozdelené nasledovne:
• WE 1: Prízemná maisonette bytosť vľavo: 2 izby + pracovňa a pivnica
Obytná plocha približne 110 m²
• WE 2: Prízemná maisonette bytosť vpravo: 2 izby + pracovňa a pivnica
Obytná plocha približne 110 m²
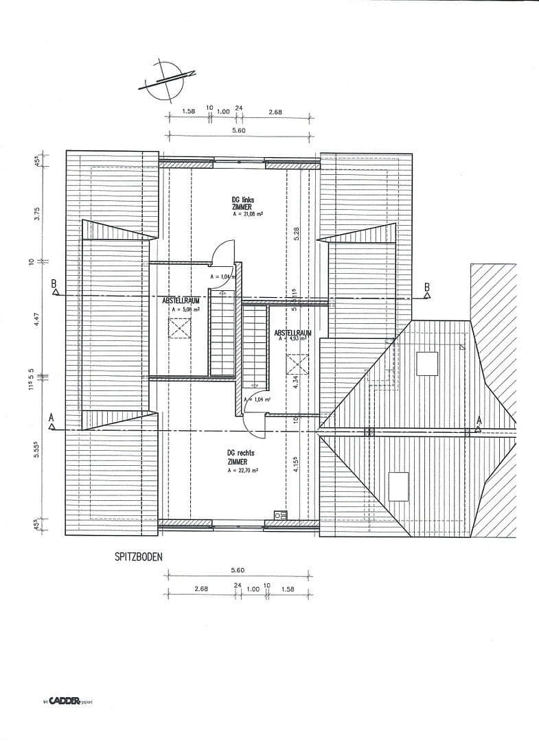
• WE 3: Poschodová maisonette bytosť vľavo: 3 izby + pivnica
Obytná plocha približne 98 m²
• WE 4: Poschodová maisonette bytosť vpravo: 3 izby + pivnica
Obytná plocha približne 96 m²
• WE 5: Medzipodlažie: 1 izba + pracovňa
Obytná plocha približne 41 m²
Všetky obytné jednotky sú vybavené funkčnými zabudovanými kuchyňami a kúpeľňami s vaňou.
Vo všetkých maisonette bytoch je oblasť medzi obývaním a varením oddelená kvalitnou krojzobou a príborníkom na jedálenský stôl. Obývacia a kuchynská časť, chodba a kúpeľne sú obložené dlažbou. Bytové jednotky disponujú celou kúpeľňou so sprchou. Z terasy (prízemné maisonette byty) a z balkóna (poschodové maisonette byty) je možný neprekážaný výhľad do zelenej záhrady. Balkóny sú vybavené markízami.
K bytu v medzipodlaží vedie samostatný vstup.
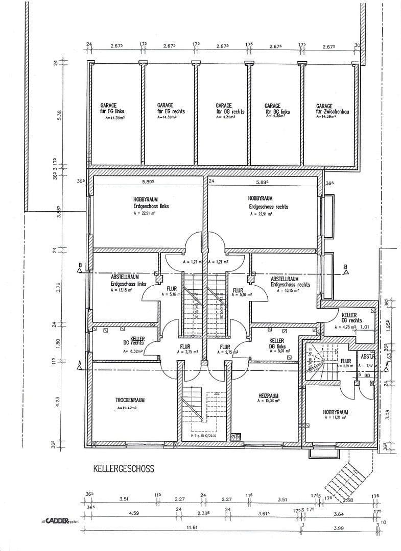
Všetkým nájomcom je k dispozícii práčovňa a sušiareň v pivnici. Nachádza sa tu aj práčka aj sušička (oboje s mince-vkladacím systémom).
Spoločná záhrada láka k oddychu a posedeniu. Dlaždené miesto na grilovanie s grilovým komínom môže využívať každý nájomca. K dispozícii je tiež priestranná bicyklistická garáž a ďalší prístrešok pre záhradný náradie.
K celému objektu patria aj päť garáží, ktoré sú prenajímané nájomcom.
Všetky obytné jednotky a garáže sú prenajaté. Aktuálny nájom zodpovedá očakávanému nájmu vo výške 55.440 € ročne (bez nákladov, všetky byty vrátane prenájmu garáží). Ceny nájomného za byty podliehajú pravidelnému zvyšovaniu podľa platného hamburského cenníka nájomného. Pre garáže boli uzavreté samostatné nájomné zmluvy.
Nový plynový kondenzáciový ohrievač bol inštalovaný v roku 2021. Teplovodné potrubia boli už vedené v ulici, takže v budúcnosti sa dá uvažovať aj o prípojke na centrálny zdroj tepla. Dom sa nachádza v oblasti s rozvojom optických sietí. Telekom momentálne nedokáže uviesť presný termín, kedy bude pripojený na optickú sieť.
Poškodenie vodovodným potrubím zo dňa 17.04.2025 bolo odstránené prostredníctvom Allianz Handwerker Service s 6-ročnou zárukou.
Architektonický viacrodinný dom nachádzajúci sa na pozemku o rozlohe 1.394 m² sa nachádza v Hamburg-Stellingen. Rušné centrum Eimsbüttelu okolo Osterstraße ako aj areál „Thyssen-Krupp / Diebsteich“ (s plánovanou hudobnou halou a inými zariadeniami vrátane možnosti verejnej dopravy) je pešo a na bicykli dobre dostupné. Dom je situovaný v bočnej ulici, ktorá bude v budúcnosti zároveň plánovaná aj ako cyklistická trasa Hansabudapešti Hamburgu. V bezprostrednom okolí sa nachádza aj „Park pri Ziegelteich“ so svojimi zelenými oázami a veľkým vyhradeným ihriskom, ktorý pozýva na outdoorové aktivity.
V okruhu do maximálne 800 metrov sa nachádzajú pekáreň, supermarket, fitnescentrum, škôlka, základná škola, lekáreň a všeobecný lekár. Srdce Eimsbüttelu (obľúbená Osterstraße) so širokou ponukou obchodov, kaviarní, reštaurácií a lekárov je tiež rýchlo dostupné pešo alebo na bicykli (približne 950 m). Najbližší týždenný trh sa nachádza na Grundstraße. Aj stredné školy sú v bezprostrednej blízkosti, čo podčiarkuje obzvlášť rodinne prívetivú situáciu.
Dopravné spojenie (verejná doprava) je vynikajúce a rýchlo dostupné pešo:
- Linie S-Bahn (S2 a S5) od Diebsteich (v budúcnosti: nové diaľkové nádražie Altona)
S2 a S5 obe ponúkajú priamu dopravu do centra Hamburgu.
- Autobusové linky 115 a 183
Diaľnica A7 (odchodisko Stellingen) je autom dosiahnuteľná za približne 15 minút a ponúka optimálne spojenie do všetkých smerov, vrátane letiska Hamburg.
Bezprostredné okolie nehnuteľnosti spája pokojné, zelené bývanie s optimálnym prístupom k mestskému životu – ide o lokalitu, ktorá je trvalo žiadaná ako zo strany nájomcov, tak aj investorov.
Tento architektonický viacrodinný dom na pozemku o rozlohe 1.394 m² v Hamburg-Stellingen je v súkromnom vlastníctve. Chceme ho predať bez sprostredkovateľa.
Radi Vám na požiadanie poskytneme ďalšie podrobnosti a prezentujeme Vám nehnuteľnosť počas osobnej a podrobnej prehliadky. Prosíme o pochopenie, že vybavujeme iba e-mailové dopyty, ktoré obsahujú údaje o mene, adrese a telefónnom čísle. Výhodou sú úplné kontaktné údaje vrátane mobilného telefónu a e-mailovej adresy. Tešíme sa na Vašu kontakt.
Parametre nehnuteľnosti
| Vek | Nad 50 rokov |
|---|---|
| Číslo inzerátu | 982782 |
| Úžitková plocha | 455 m² |
| Celkové poschodia | 1 |
| Stav | Dobrý |
|---|---|
| PENB | D - Menej hospodárne |
| Plocha pozemku | 1 394 m² |
| Cena za jednotku | 4 835 € / m2 |
Čo táto nehnuteľnosť ponúka?
| Balkón | |
| Garáž | |
| Terasa |
| Pivnica | |
| MHD 2 minúty pešo |
V okolí nehnuteľnosti nájdete
Stále hľadáte to pravé?
Nastavte si strážneho psa. Ponuky vybrané na mieru dostanete súhrnne 1× denne e-mailom. S Premium profilom máte po ruke rovno 5 strážcov a keď sa niečo objaví, informujú vás obratom.










