Prenájom bytu 3-izbový • 72 m² bez realitkyJ. Mudrocha, Senica - Senica, Trnavský kraj
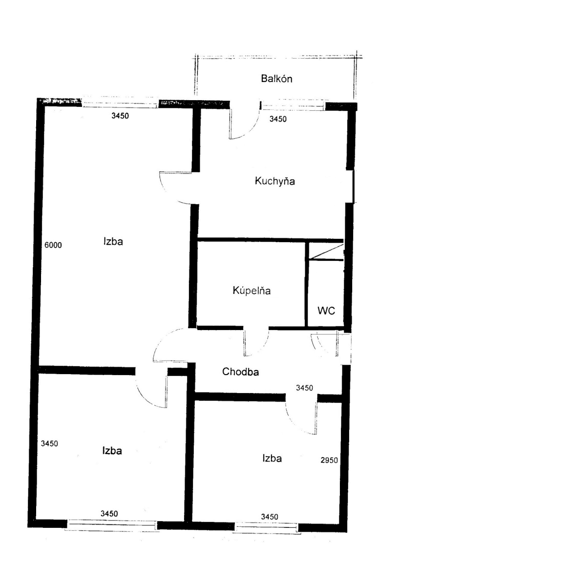
J. Mudrocha, Senica - Senica, Trnavský krajČiastočne vybavené • Balkón 3 m²Vyžaduje sa overenie bezdlžnostiPonúkam 3-izbový byt s balkónom na ul. J. Mudrocha k dlhodobému prenájmu. Byt je po kompletnej rekonštrukcii v r.2022. Nachádza sa na 2.poschodí /3NP/zo 7-ich v zateplenej bytovke s novým výťahom. Je veľmi teplý a má výbornú polohu voči nákupným centrám, školám, poliklinike a zastávkam MHD.
Je čiastočne zariadený – vstavaná skriňa v jednej izbe.
Bez spotrebičov/v prípade záujmu sa dá dohodnúť/. Kúpeľňa má vaňu aj sprchový kút. V kuchyni je nová kuchynská linka, na podlahách je vinyl a laminát, nové zárubne s dverami, okná sú plastové. Nové elektrické rozvody, el. zásuvka aj na balkóne.
Byt je dostupný pre nefajčiarov, bez zvierat. Výška nájomného je 590 €/mesiac bez energií. Za byt sa platí vratná kaucia dva nájmy.
Byt je k dispozícii ihneď. RK prosím nekontaktovať.
Záujemcovia kontaktovať telefonicky alebo mailom.
Parametre nehnuteľnosti
| Dostupné od | 20. 2. 2026 |
|---|---|
| Konštrukcia budovy | Panel |
| Vybavené | Čiastočne |
| Číslo inzerátu | 982730 |
| Úžitková plocha | 72 m² |
| Stav | Veľmi dobrý |
|---|---|
| Dispozícia | 3-izbový |
| Poschodie | 3. poschodie z 8 |
| Umiestnenie | Sídlisko |
| Cena za jednotku | 8 € / m2 |
Čo táto nehnuteľnosť ponúka?
| Balkón 3 m² |
| Bezbariérový prístup |
V okolí nehnuteľnosti nájdete
Stále hľadáte to pravé?
Nastavte si strážneho psa. Ponuky vybrané na mieru dostanete súhrnne 1× denne e-mailom. S Premium profilom máte po ruke rovno 5 strážcov a keď sa niečo objaví, informujú vás obratom.








