
Prenájom bytu 3+1 • 75 m² bez realitky, Hesensko
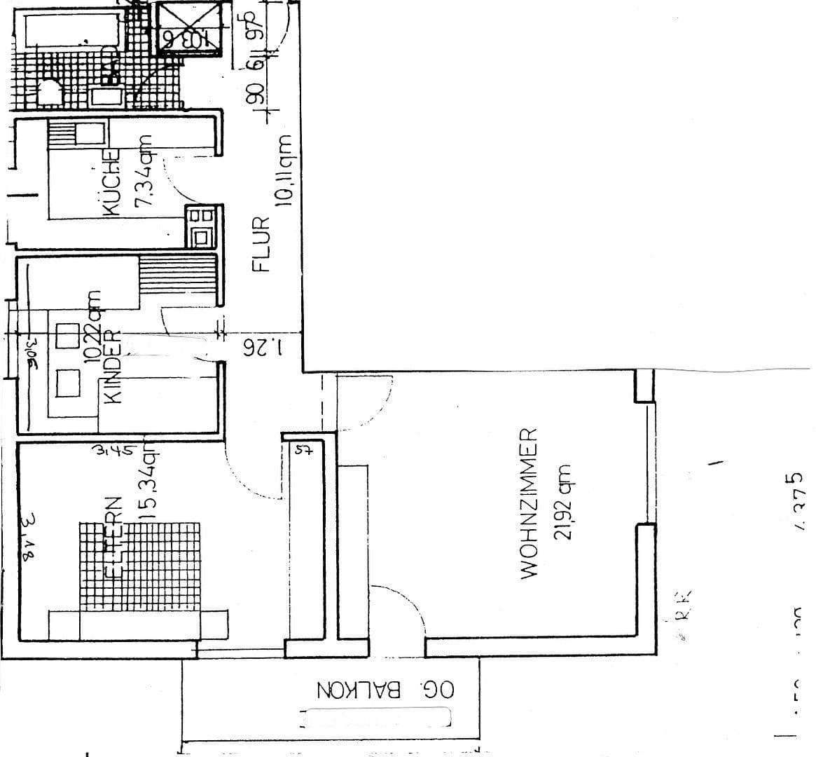
, HesenskoMHD 2 minúty pešo • ParkovanieTento byt má balkón a zo všetkých izieb krásny výhľad do zelene.
Absolútne pokojná lokalita!
Dom deviatich rodín.
Mnohí nájomníci tu bývajú už veľmi dlho.
Deti sú vítané; v dome už sú deti.
Domáce zvieratá nemôžu bývať!
Schodisko a pivničné chodby, ako aj vyťahovanie kontajnerov na odpadky, sa čistí deviatimi nájomníkmi v týždennej rotácii. Táto spolupráca sa pozitívne odráža v účtovaní režijných nákladov.
Ulica Ludwig-Gerhardt sa nachádza v dobráčskom území Taunusstein-Bleidenstadt.
Je tu mierne stúpavé, ak chcete všetky nákupy absolvovať pešo.
Taunusstein-Bleidenstadt má živé centrum – ulicu Aarstrasse – s množstvom nákupných možností.
Centrum mesta Wiesbaden je vzdialené približne 14 kilometrov.
Kúpeľňa, zrekonštruovaná v roku 2000, má okno, vaňu, umývadlo a toaletu.
Kuchyňa je zariadená, vrátane modernej umývačky riadu.
Všetky izby majú veľké okná, viz. fotografie.
Parkety sú vo všetkých izbách; v kuchyni a kúpeľni sú veľké podlahové dlaždice.
K dispozícii je priestranná pivnica a práčovňa.
V práčovni je vyhradené miesto pre práčku a prípadne sušičku.
K dispozícii je voľné parkovacie miesto pre automobil; mesačný nájom za toto miesto je 20 €.
Domáce zvieratá nemôžu bývať.
Hľadáme nefajčiarsky pár!
Parametre nehnuteľnosti
| Vek | Nad 50 rokov |
|---|---|
| Dispozícia | 3+1 |
| Číslo inzerátu | 982183 |
| Úžitková plocha | 75 m² |
| Stav | Dobrý |
|---|---|
| Poschodie | 1. poschodie z 2 |
| PENB | C - Hospodárne |
| Cena za jednotku | 11 € / m2 |
Čo táto nehnuteľnosť ponúka?
| Balkón | |
| Parkovanie |
| Pivnica | |
| MHD 2 minúty pešo |
V okolí nehnuteľnosti nájdete
Stále hľadáte to pravé?
Nastavte si strážneho psa. Ponuky vybrané na mieru dostanete súhrnne 1× denne e-mailom. S Premium profilom máte po ruke rovno 5 strážcov a keď sa niečo objaví, informujú vás obratom.







