
Prenájom bytu 3+1 • 77 m² bez realitkyWiesbaden Wiesbaden Hessen 65183
Wiesbaden Wiesbaden Hessen 65183MHD 1 minúta pešoNehnuteľnosť sa nachádza v Kirchgasse, hlavnej nákupnej ulici Wiesbadenu. Je obklopená množstvom reštaurácií, módnych, kozmetických a elektronických obchodov so zameraním na zábavu. Rovnako výrazným prvkom je týždenný, jarný, letný alebo vianočný trh na Mauritiusplatz. Viaceré autobusové zastávky sú pohodlne dostupné pešo. Wiesbadenská železničná stanica je do 5 minút autom. V rokoch 1987, 1992 a od 2011 do 2018 prešla budova rozsiahlou rekonštrukciou. V prízemí sa nachádzajú dva komerčné priestory, ktoré sú prístupné cez hlavný a bočný vstup.
Byt sa nachádza v srdci centra Wiesbadenu. Obchodné možnosti, pekárne, lekárne, lekári, ako aj kaviarne a reštaurácie, sú všetky dostupné pešo. Verejná doprava je v bezprostrednej blízkosti a ponúka dobré spojenie v rámci Wiesbadenu aj s hlavnou stanicou.
Napriek centrálnej polohe sú zelené plochy a miesta na prechádzky rýchlo dostupné. Poloha v centre je ideálna pre ľudí, ktorí ocenia krátke vzdialenosti a kvalitnú infraštruktúru.
Tešte sa na kompletne zrekonštruovaný byt, ktorý dokonale spája moderný životný komfort so štýlovou atmosférou.
Novo upravená kúpeľňa sa prezentuje v modernom dizajne: Veľkorysá sprcha a štýlové umývadlo zabezpečujú súčasný komfort. Samostatné hostinské WC zvyšuje pohodlie bývania. V obytných priestoroch je položená kvalitná vinylová podlaha v teplom dizajne s imitáciou dreva, ktorá vytvára útulnú atmosféru. Svetlé dlaždice s mramorovým efektom dodávajú kúpeľni elegantný, nadčasový nádych a zároveň sú ľahko udržiavateľné.
Vezmite prosím na vedomie, že byt nie je vybavený vstavanou kuchyňou. To vám však ponúka možnosť zariadiť kuchynskú časť presne podľa vašich osobných predstáv.
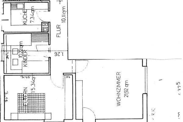
Parametre nehnuteľnosti
| Vek | Nad 50 rokov |
|---|---|
| Stav | Po rekonštrukcii |
| Poschodie | 3. poschodie z 4 |
| Úžitková plocha | 77 m² |
| Dostupné od | 23. 1. 2026 |
|---|---|
| Dispozícia | 3+1 |
| Číslo inzerátu | 980574 |
| Cena za jednotku | 10 € / m2 |
Čo táto nehnuteľnosť ponúka?
| Pivnica |
| MHD 1 minúta pešo |
V okolí nehnuteľnosti nájdete
Stále hľadáte to pravé?
Nastavte si strážneho psa. Ponuky vybrané na mieru dostanete súhrnne 1× denne e-mailom. S Premium profilom máte po ruke rovno 5 strážcov a keď sa niečo objaví, informujú vás obratom.








