
Predaj domu 6+1 • 136 m² bez realitky, Brandenbursko
, BrandenburskoMHD 3 minúty pešo • ParkovanieDom sa predáva z dôvodu veku. Je v dobre udržiavanom stave, bez zanedbaných opráv; horné poschodie je zrekonštruované a prízemie bolo plánované na rok 2026.
Sme otvorení férovej komunikácii a rokovaniam. Radi sa tiež dohodneme na výmene bytu.
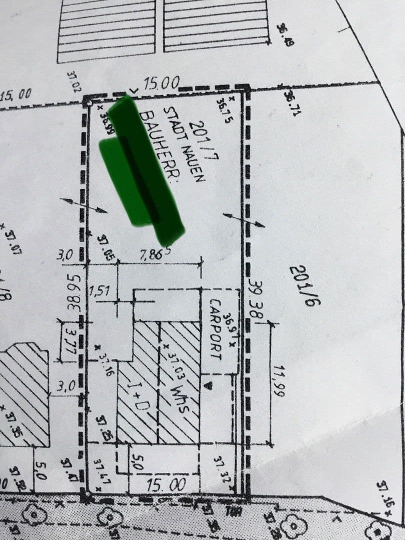
Náš dom sa nachádza na okraji mesta Nauen v osídlení rodinných domov. V blízkosti sa nachádzajú supermarkety a materská škôlka. Železničná stanica DB, ktorá je výhodným dopravným prostriedkom pre dochádzajúcich do Berlína, je vzdialená 1,5 km a najbližšia autobusová zastávka (miestny autobus a regionálne spoje) len 300 m. Mesto Nauen má početné školy, ordinácie lekárov, Havellandskú kliniku, rôzne reštaurácie, mládežnícke kluby, športové centrá, mestskú kúpeľňu, divadlo pod holým nebom – a je známe každoročnou dvorovou vianočnou slávnosťou na tretí advent. Nauen má vyvinuté historické jadro zo stredoveku, ale rozrastá sa na okraji na juh a sever, pretože cesta autom do Berlína trvá len pol hodiny.
Okolie láka na oddychové aktivity v prírode, s množstvom jazier a lesov v blízkosti.
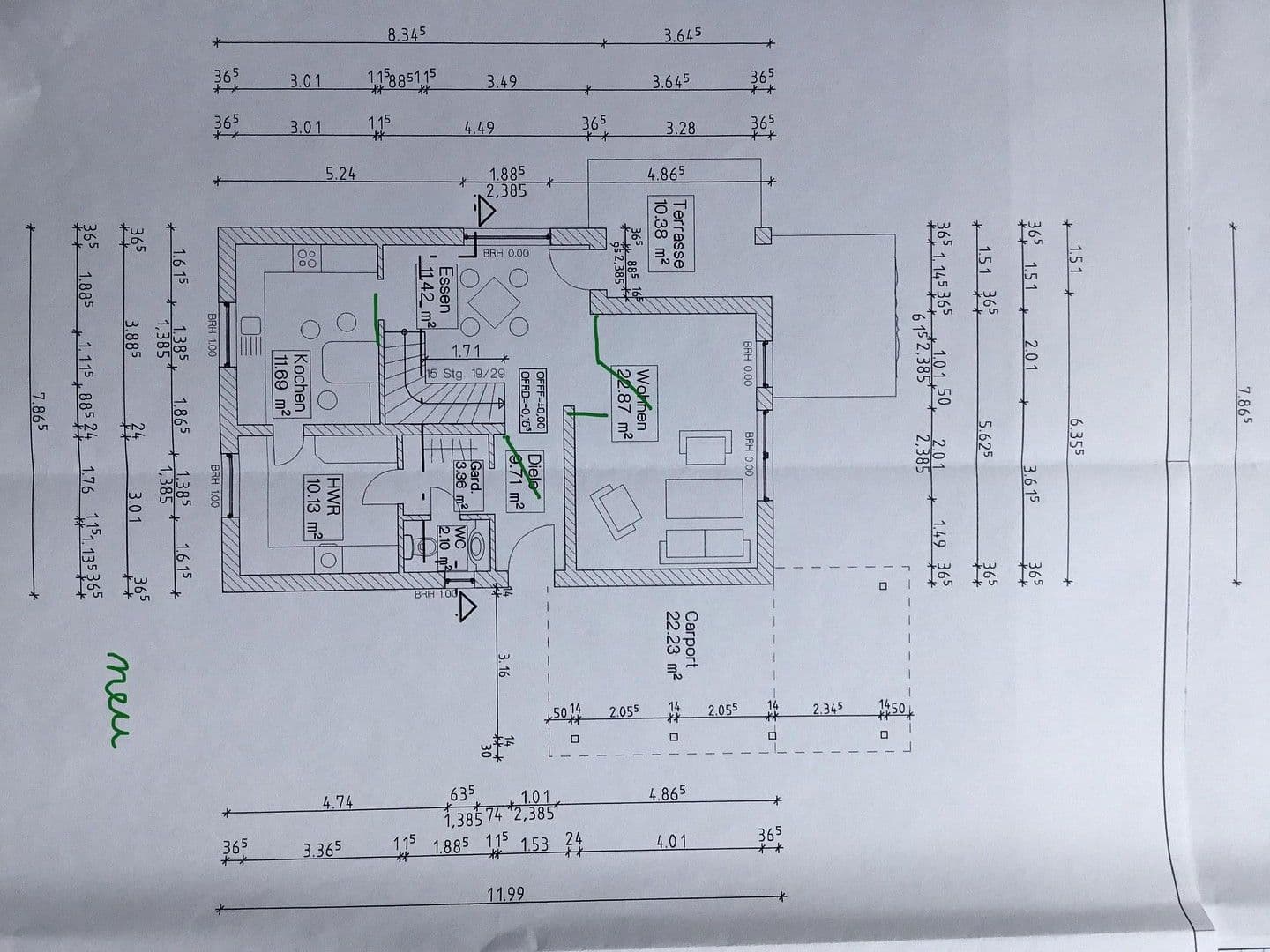
Medzi špecifiká nášho domu patrí krb, solárna a solárna tepelná inštalácia, zariadenie na zmäkčovanie vody a zber dažďovej vody. Okrem toho je k dispozícii veľké podkrovia. Na pôdorysných plánoch sú znázornené dodatočne postavené priečky zo suchého muštu, ktoré rozdeľujú 4 izby na 6 a môžu byť kupujúcim opätovne odstránené.
V záhrade sa nachádza malé jazierko a štruktúra na lezenie. Čerešňový strom prináša tmavé sladké čerešne a chutné jablká dozrejú v októbri/novembri.
Parametre nehnuteľnosti
| Vek | Nad 50 rokov |
|---|---|
| Dispozícia | 6+1 |
| PENB | D - Menej hospodárne |
| Plocha pozemku | 600 m² |
| Cena za jednotku | 3 750 € / m2 |
| Stav | Dobrý |
|---|---|
| Číslo inzerátu | 982084 |
| Úžitková plocha | 136 m² |
| Celkové poschodia | 2 |
Čo táto nehnuteľnosť ponúka?
| Parkovanie | |
| Terasa |
| MHD 3 minúty pešo |
V okolí nehnuteľnosti nájdete
Stále hľadáte to pravé?
Nastavte si strážneho psa. Ponuky vybrané na mieru dostanete súhrnne 1× denne e-mailom. S Premium profilom máte po ruke rovno 5 strážcov a keď sa niečo objaví, informujú vás obratom.


























