
Predaj domu 6+1 • 137 m² bez realitky, Brandenbursko
, BrandenburskoMHD 2 minúty pešo • ParkovanieDas im Dezember 1999 fertig gestellte Einfamilienhaus
bol rodinný dom dokončený v decembri 1999,
wurde im Jahr 2006 auf der Westseite um einen Anbau unter Architektenleitung erweitert.
bol v roku 2006 na západnej strane rozšírený o prístavbu pod vedením architekta.
Es liegt in Brieselang Süd, verfügt über sechs Zimmer und ist damit auch für größere Familien geeignet.
Nachádza sa v Brieselang Süd, má šesť izieb a je preto vhodný aj pre väčšie rodiny.
Das Objekt wird privat verkauft, die Maklerprovision entfällt.
Nehnuteľnosť sa predáva súkromne, maklérska provízia sa neuplatňuje.
Für Ihre Anfragen und Zusendung weiterer Bilder/Unterlagen stehen wir sehr gerne zur Verfügung.
Sme vám radi k dispozícii pre vaše dopyty a zaslanie ďalších obrázkov či dokumentov.
Das Objekt liegt in familienfreundlicher Umgebung inmitten einem von Einfamilienhäusern geprägten Umfeld in Brieselang Süd und damit vor den Toren Berlins.
Nehnuteľnosť sa nachádza v rodinne priateľskej oblasti, uprostred prostredia ovplyvneného rodinnými domami v Brieselang Süd a tak pred branami Berlína.
Die Gemeinde Brieselang verfügt über einen u.a. von Pendlern genutzten Regionalbahnanschluss nach Berlin (Wiedereröffnung nach Sanierung der Strecke Berlin-Hamburg im Mai 2026),
Obec Brieselang disponuje medzi iným aj regionálnym železničným spojením do Berlína, využívaným najmä dojížďajúcimi (opätovné otvorenie po rekonštrukcii trate Berlín-Hamburg v máji 2026),
der mit dem Auto in 4-5 Minuten, mit dem Fahrrad bequem in knapp 10 Minuten erreichbar ist.
ktoré je autom dostupné za 4-5 minút a na bicykli pohodlne za necelých 10 minút.
Der Berliner Ring liegt in unmittelbarer Nähe mit eigener Autobahnauffahrt „Brieselang“.
Berlínsky okruh sa nachádza v bezprostrednej blízkosti s vlastným vjazdom na diaľnicu „Brieselang“.
Einkaufsmöglichkeiten sind allein in Brieselang Süd mit vier Filialen des Lebensmitteleinzelhandels vertreten.
Možnosti nákupu sú v Brieselang Süd zastúpené už štyrmi pobočkami potravinového maloobchodu.
Dazu kommen die Gemeindeverwaltung, mehrere Ärzte, eine Apotheke, zwei Grundschulen (eine südlich und eine nördlich der Bahnlinie) sowie eine Gesamtschule, mehrere Kindergärten und zwei Kirchengemeinden.
Okrem toho sa tu nachádza obecný úrad, niekoľko lekárov, lekáreň, dve základné školy (jedna južne a jedna severne od železničnej trate) ako aj všeobecná škola, viacero materských škôl a dve cirkevné obce.
Die weitere Infrastruktur ist zudem geprägt durch den nahegelegenen Nymphensee und im Umland durch ausgedehnte Wald- und Wiesengebiete sowie das Naturschutzgebiet Döberitzer Heide, das zum Wandern, Reiten und Radfahren genutzt werden kann.
Ďalšiu infraštruktúru dopĺňa blízkosť Nymphensee, rozsiahle lesné a lúčne oblasti v okolí, ako aj chránená prírodná oblasť Döberitzer Heide, využívaná na pešiu turistiku, jazdu na koni a cyklistiku.
Von dort aus liegt das B5-Center, ein sehr beliebtes Designer Outlet, in unmittelbarer Nähe.
Odtiaľ je v bezprostrednej blízkosti B5-Center, veľmi obľúbený outlet s dizajnovým tovarom.
Gut erreichbar ist zudem Karls Erlebnis-Dorf, ebenfalls an der B5 gelegen.
Dobre dostupný je aj Karls Erlebnis-Dorf, ktorý sa tiež nachádza pri diaľnici B5.
Das Haus ist durch folgende Ausstattungsmerkmale gekennzeichnet:
Dom je charakterizovaný nasledujúcimi vybavovacími prvkami:
• sechs Zimmer, darunter ein Wohnzimmer mit Küche, ein Arbeitszimmer und vier Schlafzimmer
• šesť izieb, vrátane obývacej izby s kuchyňou, pracovnej izby a štyroch spální
• zwei Badezimmer, eines mit Dusche im Erdgeschoss und eines mit Badewanne im Obergeschoss
• dve kúpeľne, jedna s priestrannou sprchou v prízemí a druhá s vaňou v hornom poschodí
• ein geräumiger Hauswirtschaftsraum mit Arbeitsfläche
• priestranná domácnosť (technická miestnosť) s pracovnou doskou
• Hauptenergieträger Gas, durch Energieausweis (ausgestellt im Jahr 2025) ausgewiesene Energieeffizienzklasse B
• hlavným zdrojom energie je plyn; podľa energetického certifikátu (vystaveného v roku 2025) patrí do triedy energetickej účinnosti B
• regelmäßig gewartete Heizungsanlage aus dem Jahr 2006
• pravidelne udržiavaný vykurovací systém z roku 2006
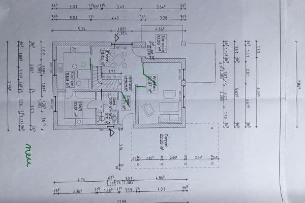
• Wohnfläche 137 m², Grundfläche 160 m² auf zwei Stockwerken zuzüglich teils wohnlich ausgebautem Dachboden mit Sonderzugang von einem der Kinderzimmer
• obytná plocha: 137 m², základová plocha: 160 m² rozložených na dvoch podlažiach, plus čiastočne obytné zariadené podkrovia s osobitným vstupom z jednej z detských izieb
• Rollläden an allen Fenstern, überwiegend manuell zu bedienen
• rolovacie žalúzie na všetkých oknách, prevažne manuálne ovládateľné
• 504 m² Grundstück mit zwei Terrassen, eine davon überdacht, und zwei Schuppen sowie Carport
• pozemok s rozlohou 504 m² disponuje dvoma terasami (z ktorých jedna je prístrešená), dvoma záhradnými domčekmi a carportom
• Solarplatten für Warmwasser (Solarthermie)
• solárne panely na ohrev teplej vody (solárna termia)
• Glasfaseranschluss
• pripojenie optickým vláknom
• kein Durchgangsverkehr wegen Lage in einer Sackgasse
• žiadna tranzitná premávka vzhľadom na polohu v slepej uličke
• hochwertiger feuerverzinkter und pulverbeschichteter Metallzaun auf 38 Metern Länge
• vysoko kvalitný pozinkovaný a práškovou farbou potiahnutý kovový plot s dĺžkou 38 metrov
Parametre nehnuteľnosti
| Vek | Nad 50 rokov |
|---|---|
| Číslo inzerátu | 980332 |
| Úžitková plocha | 137 m² |
| Celkové poschodia | 2 |
| Dispozícia | 6+1 |
|---|---|
| PENB | B - Veľmi úsporné |
| Plocha pozemku | 504 m² |
| Cena za jednotku | 3 635 € / m2 |
Čo táto nehnuteľnosť ponúka?
| Parkovanie | |
| Terasa |
| MHD 2 minúty pešo |
V okolí nehnuteľnosti nájdete
Stále hľadáte to pravé?
Nastavte si strážneho psa. Ponuky vybrané na mieru dostanete súhrnne 1× denne e-mailom. S Premium profilom máte po ruke rovno 5 strážcov a keď sa niečo objaví, informujú vás obratom.























