
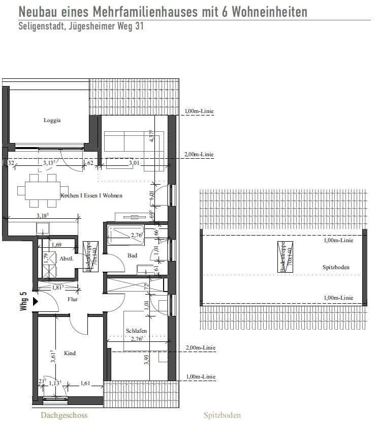
Prenájom bytu 3+1 • 72 m² bez realitkyJügesheimer Weg 31, , Hesensko
Jügesheimer Weg 31, , HesenskoMHD 3 minúty pešo • Výťah • ParkovanieObjavte tento štýlový 3-izbový byt v podkroví exkluzívnej viacfamilijnej budovy s iba šiestimi obytnými jednotkami. Tu sa stretáva kvalitná architektúra s absolútnym pokojom, čím vzniká harmonický životný pocit. Celá budova patrí jednej rodine vlastníkov – záruka dôkladnej starostlivosti a priateľského susedstva.
Srdcom bytu je:
Ohromne útulný obývací a jedálenský priestor s integrovanou otvorenou kuchyňou – ideálny pre príjemné večery, kreatívne varenie a čistú relaxáciu. Široká fólia okien loggie, ako aj ďalšie strešné okno a nástenné okno vytvárajú svetlé, otvorené prostredie. Slnečný balkón na západnej strane vás pozýva až do večera, aby ste si v pokoji užili koniec dňa.
Nehnuteľnosť sa nachádza v pokojných uličkách Seligenstadt Froschhausen. Prístup na diaľnicu je ideálny.
Autobusové linky 58 a OF-85 sú v dosahu pešo.
V pešej vzdialenosti sa nachádza niekoľko reštaurácií, kaviareň a lekár. Zároveň tu nájdete aj zeleň a park, miestnu poštovú prevzatú, lekáreň a kaderníctvo.
Vybavenie je moderné a premyslené:
- Kvalitná vinylová podlaha v trendy dizajne bukovej textúry
- Tepelné čerpadlo s chladiacou funkciou – udržateľné a pohodlné
- Štýlová kúpeľňa s modernými armatúrami
- Samostatné WC pre hostí
- Walk-in sprcha
- Vaňa
- Praktická komora s priestorom pre práčku a sušičku
- V budove je výťah pre pohodlný prístup
- V prípade potreby je možné si prenajať aj druhé parkovacie miesto
- Snímač satelitného signálu
- Optické pripojenie
- Veľký nájomnícky sklep s rozlohou takmer 4 m²
- Uzamykateľné cyklistické garáže na pozemku, aj pre elektrobicykle
- Domový správca je zahrnutý – o nič sa nemusíte starať
Tešíme sa na Váš záujem o byt. Aby sme si mohli vytvoriť lepší obraz, prosíme Vás, aby ste v dopyte uviedli niekoľko slov o sebe (napr. povolanie, životná situácia, počet osôb, ktoré sa budú sťahovať, atď.). Týmto spôsobom budeme môcť rýchlejšie posúdiť, či byt k Vám dobre sedí.
Ďakujeme za Vašu snahu!
Parametre nehnuteľnosti
| Vek | Nad 50 rokov |
|---|---|
| Dispozícia | 3+1 |
| Číslo inzerátu | 981685 |
| Cena za jednotku | 17 € / m2 |
| Stav | Novostavba |
|---|---|
| Poschodie | 2. poschodie z 2 |
| Úžitková plocha | 72 m² |
Čo táto nehnuteľnosť ponúka?
| Balkón | |
| Pivnica | |
| Parkovanie |
| Bezbariérový prístup | |
| Výťah | |
| MHD 3 minúty pešo |
V okolí nehnuteľnosti nájdete
Stále hľadáte to pravé?
Nastavte si strážneho psa. Ponuky vybrané na mieru dostanete súhrnne 1× denne e-mailom. S Premium profilom máte po ruke rovno 5 strážcov a keď sa niečo objaví, informujú vás obratom.












