Predaj pozemku • 869 m² bez realitkyFriedrich-Pieper-Str. 6, , Severné Porýnie - Westfálsko
Friedrich-Pieper-Str. 6, , Severné Porýnie - WestfálskoMHD 2 minúty pešoVo Villenkolonie Friedrichshöhe pri Detmolder Königsberg v Detmold-Heiligenkirchen je ihneď zástaviteľný pozemok s rozlohou 869 m² na predaj. Základná hodnota pôdy je stanovená na 280 €/m² v databáze pôdnych hodnôt NRW: https://www.boris.nrw/de/?lang=de – čo zodpovedá hodnote pozemku vo výške 243 000 €!
Štýlové vily a múzeum pod holým nebom sa nachádzajú v bezprostrednej blízkosti. Tu si môžete splniť svoj sen o 1-2 rodinnom dome v veľmi žiadanej časti Detmoldu.
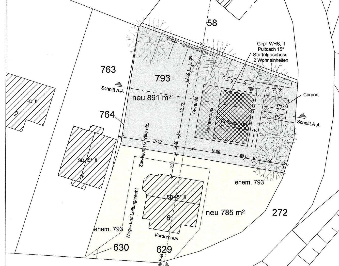
Máme k dispozícii pozitívnu predbežnú schválenie pre výstavbu 1-2 rodinného domu v postupovom poschodí, ktorú vám môžeme na požiadanie zaslať. Možná výstavba zahŕňa pivnicu, dve plnohodnotné poschodia a postupové poschodie s terasou na streche – vrátane výhľadu na Hermannsdenkmal. Výstavba slnečného pozemku môže prebiehať v orientácii východ-západ.
Pre realizáciu výstavby je potrebné odstrániť niekoľko stromov a zbúrať starú záhradnú chatu.
Exkluzívna obytná lokalita je charakteristická pokojnou atmosférou, rozľahlými pozemkami, rodinne orientovaným prostredím a veľmi dobrou infraštruktúrou. Autobusová linka 701 sa nachádza cca 200 m od pozemku a centrum Detmoldu je dostupné bicyklom za 10 minút. V Heiligenkirchen nájdete všetky obchody a zariadenia pre bežné potreby (Rewe, lekáreň, lekári, pošta, čerpacia stanica, materská škola, školy a pod.).
Parametre nehnuteľnosti
| Dostupné od | 26. 1. 2026 |
|---|---|
| Plocha pozemku | 869 m² |
| Číslo inzerátu | 981454 |
|---|---|
| Cena za jednotku | 207 € / m2 |
Čo táto nehnuteľnosť ponúka?
| MHD 2 minúty pešo |
V okolí nehnuteľnosti nájdete
Stále hľadáte to pravé?
Nastavte si strážneho psa. Ponuky vybrané na mieru dostanete súhrnne 1× denne e-mailom. S Premium profilom máte po ruke rovno 5 strážcov a keď sa niečo objaví, informujú vás obratom.




