
Predaj bytu 3+1 • 56 m² bez realitkyFriedrich-Pieper-Str. 6, , Severné Porýnie - Westfálsko
Friedrich-Pieper-Str. 6, , Severné Porýnie - WestfálskoMHD 2 minúty pešo • ParkovanieTáto bytová jednotka sa nachádza v kompletne zrenovovanej vile v exkluzívnej časti Friedrichshöhe/Am Königsberg v Detmold-Heiligenkirchen, pripravená na prvé nasťahovanie. Stav budovy zodpovedá novostavbe, pretože všetky inštalácie, podlahy, steny, stropy, kúpeľne, kúrenie aj strecha boli obnovené.
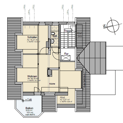
Byt sa nachádza v podkroví 4-rodinného domu (2. poschodie) a má rozlohu 70 m² (podľa vyhlášky o obytných plochách 56 m²). Krásna strešná terasa s rozlohou 9 m² ponúka priamy výhľad na Hermannsdenkmal a Teutoburgský les.
Nová strecha so tromi vykapennými svetlíkmi bola veľmi dobre izolovaná, takže aj v lete je zabezpečený komfort. Okná majú trojnásobnú izolačnú sklenku.
Podlahové kúrenie môže byť pokryté buď parketom alebo dlažbou. V kúpeľni je bezbariérová sprcha s priesvitnými dverami.
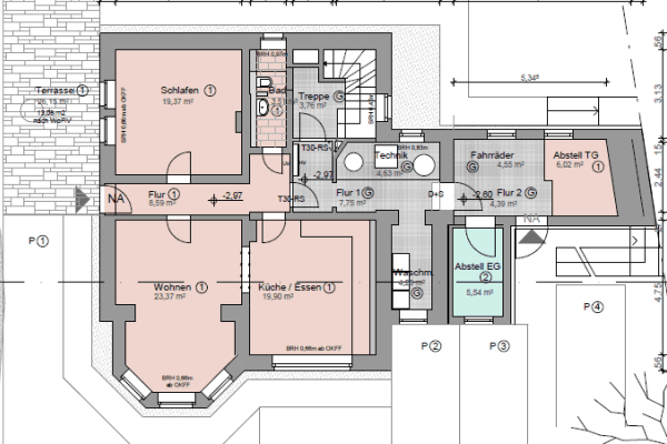
K bytu patrí aj úložná miestnosť, práčovňa, parkovacie miesto a pivnica na bicykle.
Pozemok má rozlohu 802 m².
Ďalšie informácie o budove a fotky ďalších ponúkaných bytov nájdete na www.villa-sonnenblick.com.
Lokalita sa vyznačuje pokojným obytným prostredím s exkluzívnymi vilami a výhľadom na Hermannsdenkmal. Aj LWL múzeum pod holým nebom je vzdialené len niekoľko minút.
Najmä rodinne priateľské prostredie a veľmi dobrá infraštruktúra stoja za zmienku. Autobusová linka 701 je vzdialená cca 200 m, krásne centrum Detmoldu dosiahnete na bicykli za 10 minút. V Heiligenkirchen nájdete všetky obchody a zariadenia pre denné potreby (Rewe, lekáreň, ordinácie, poštu, čerpaciu stanicu, materskú škôlku, školy atď.).
Všetky byty majú podlahové kúrenie a multimediálne prípojky. Budova je vybavená modernou vzdušnou tepelnou čerpadlom s centrálnym zásobovaním teplej vody. Veľké balkóny poskytujú jedinečný pocit z bývania.
Parametre nehnuteľnosti
| Vek | Nad 50 rokov |
|---|---|
| Dispozícia | 3+1 |
| PENB | B - Veľmi úsporné |
| Cena za jednotku | 4 643 € / m2 |
| Stav | Po rekonštrukcii |
|---|---|
| Číslo inzerátu | 981453 |
| Úžitková plocha | 56 m² |
Čo táto nehnuteľnosť ponúka?
| Balkón | |
| Parkovanie |
| Pivnica | |
| MHD 2 minúty pešo |
V okolí nehnuteľnosti nájdete
Stále hľadáte to pravé?
Nastavte si strážneho psa. Ponuky vybrané na mieru dostanete súhrnne 1× denne e-mailom. S Premium profilom máte po ruke rovno 5 strážcov a keď sa niečo objaví, informujú vás obratom.











