
Prenájom bytu 2+1 • 80 m² bez realitky, Dolné Sasko
, Dolné SaskoMHD 7minút pešoDom bol v roku 2008 tepelne izolovaný podľa pokynov KfW a proKlima a je zapojený do diaľkového zásobovania teplom.
Dopravne pokojná lokalita v blízkosti mestského lesa Eilenriede s rôznymi možnosťami nákupov a zariadeniami. Zastávka električky je dosiahnuteľná do 5 minút. Centrum (stanica) je dostupné na bicykli za približne 15 minút.
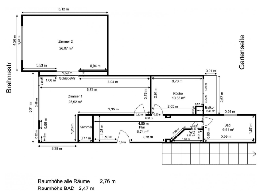
Kúpeľňa so sprchou, hostínska toaleta, kuchyňa s juhozápadne orientovaným balkónom.
Uvedené nájomné ceny sa vzťahujú na 1 osobu; za každú ďalšiu osobu sa v súčasnosti k zahrievanému nájomnému pripíše 25,00 € (za zásobovanie vodou a likvidáciu odpadu), pričom v nájomnom je zahrnuté upratovanie schodiska, ale káblová televízia nie.
Náklady na energiu (iba za elektrinu) ako aj náklady na vykurovanie (ako záloha voči Stadtwerken Hannover) hradí nájomca sám.
V nájomnej zmluve je dohodnutá minimálna doba prenájmu 2 roky.
Parametre nehnuteľnosti
| Vek | Nad 50 rokov |
|---|---|
| Stav | Po rekonštrukcii |
| Číslo inzerátu | 980973 |
| Úžitková plocha | 80 m² |
| Dostupné od | 25. 1. 2026 |
|---|---|
| Dispozícia | 2+1 |
| PENB | C - Hospodárne |
| Cena za jednotku | 15 € / m2 |
Čo táto nehnuteľnosť ponúka?
| Balkón | |
| MHD 7 minút pešo |
| Pivnica |
V okolí nehnuteľnosti nájdete
Stále hľadáte to pravé?
Nastavte si strážneho psa. Ponuky vybrané na mieru dostanete súhrnne 1× denne e-mailom. S Premium profilom máte po ruke rovno 5 strážcov a keď sa niečo objaví, informujú vás obratom.












