
Predaj bytu 1+1 • 40 m² bez realitkyBerlin Friedrichshain Berlin 10245
Tento svetlý jednoizbový apartmán sa nenachádza len tak niekde, ale v mimoriadne vyhľadávanej jadrovej štvrti Berlína-Friedrichshain. Budova, postavená v roku 1900, bola v roku 2000 dôkladne zrekonštruovaná. Udržiavaný byt v prvom poschodí je kompletne zrekonštruovaný a je okamžite k dispozícii. Disponuje balkónom a štukovým stropom v obývačke.
Byt je okamžite k dispozícii, a preto je ideálny pre vlastníkov, ktorí chcú žiť v rytme Berlína. Vďaka obľúbenej lokalite v štvrti a flexibilite pri novej nájomnej zmluve je tento klenot štvrte vysoko atraktívny aj pre kapitálových investorov.
- 26 jednotiek
- Plne suterénované
- Komplexná rekonštrukcia v roku 2000
- Priebežná údržba
- Komfortné rezervy
Jadrová štvrť Friedrichshain: Množstvo kaviarní, barov, reštaurácií, klubov, obchodov, telocviční a podobne v bezprostrednom okolí. Výborné spojenie s verejnou dopravou. Stanica S-Bahn Ostkreuz, okrem iného s prístupom na kruhovú linku a priamym spojením s letiskom, a električková linka M13 sú pešo dostupné za pár minút.
- Jadrová štvrť Friedrichshain
- Výborné spojenie s MHD (S-Ostkreuz, električka M13)
- Vynikajúca občianska vybavenosť (reštaurácie, bary, kaviarne, supermarkety, obchody, šport)
- Svetlý starý apartmán v 1. poschodí prednej budovy
- Orientácia na západ smerom k ulici
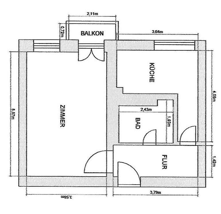
- 1 izba, chodba, kúpeľňa, kuchyňa
- Štukový strop v obývacej izbe
- Plne obložená kúpeľňa s vnútornou vaňou
- Balkón
- Suterénna miestnosť
Byt je okamžite k dispozícii.
Individuálne, krátkodobé prehliadky na požiadanie.
Všetky údaje sú poskytnuté podľa najlepšieho vedomia. Výhrada si vyhradzujeme prípadné chyby.
Parametre nehnuteľnosti
| Vek | Nad 50 rokov |
|---|---|
| Stav | Po rekonštrukcii |
| Poschodie | 1. poschodie |
| PENB | E - Nehospodárne |
| Cena za jednotku | 5 873 € / m2 |
| Dostupné od | 13. 1. 2026 |
|---|---|
| Dispozícia | 1+1 |
| Číslo inzerátu | 980565 |
| Úžitková plocha | 40 m² |
Čo táto nehnuteľnosť ponúka?
| Balkón | |
| MHD 3 minúty pešo |
| Pivnica |
V okolí nehnuteľnosti nájdete





Predaj bytuBernhardt Lichten Berg Str 13 Berlin Prenzlauer Berg Berlin 10407- 1+1
- 29 m²
200 000 € + 186 €
Stále hľadáte to pravé?
Nastavte si strážneho psa. Ponuky vybrané na mieru dostanete súhrnne 1× denne e-mailom. S Premium profilom máte po ruke rovno 5 strážcov a keď sa niečo objaví, informujú vás obratom.







