
Prenájom bytu 5+kk • 137 m² bez realitky, Bádensko-Wurttembersko
, Bádensko-WurttemberskoMHD 1 minúta pešoNa prenájom je k dispozícii priestranný a zrekonštruovaný maisonette byt s 5,5 izbami, rozložený na cca 137 m². Byt sa nachádza v udržiavanom dvojrodinnom dome v Schönaich a rozprestiera sa na 3 úrovniach od horného poschodia až po podkrovie. Tým má byt charakter rodinného domu a ponúka veľa priestoru a flexibility pre rodiny s deťmi, páry s priestorovou náročnosťou alebo pre ľudí využívajúcich homeoffice.
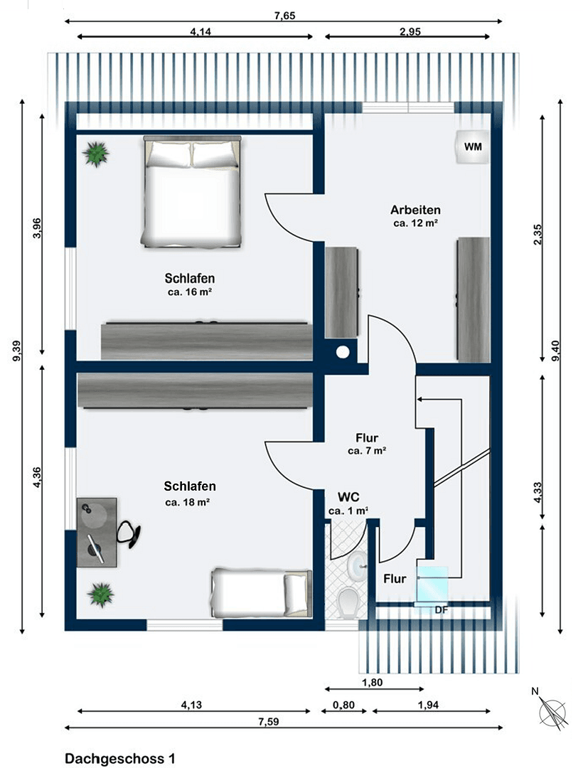
Na hornom poschodí sa nachádza otvorená obývacia/jedálenská časť s prístupom na nový balkón o rozlohe 10 m², kuchyňa so všetkými potrebnými elektrospotrebičmi, kúpeľňa (vaňa a sprcha) a WC. Cez vnútorné schody vedúce v byte sa dostanete na ďalšie poschodie, kde sa nachádzajú 2 spálne, pracovňa a ďalšie WC. Na podkroví je k dispozícii ďalšia spálňa a priestor na uskladnenie vecí.
Byt bol v roku 2025 dôkladne zrekonštruovaný – mimo iného boli vymenené podlahy, dvere, steny, balkón a pod. Od roku 2020 je vykurovanie domu a príprava teplej vody zabezpečená cez centrálnu a efektívnu peletovú kotolňu. V nájomnom poplatku sú už zahrnuté náklady na vykurovanie. Byt je k dispozícii na nastěhovanie od januára 2026.
Čistý nájom: 1.700 €
Provozné náklady (vrátane nákladov na vykurovanie): 280 €
Vrátane všetkých poplatkov: 1.980 €
Byt sa nachádza v centrálnej localite Schönaich, obce v blízkosti Böblingen/Sindelfingen a Štuttgartu. Schönaich sa vyznačuje vysokou kvalitou života, množstvom zelene a dobrou infraštruktúrou.
V blízkosti sa nachádzajú:
- Obchody pre každodenné potreby
- Materské školy, základné školy a stredné školy
- Lekári a lekárne
- Reštaurácie a kaviarne
- Dobrá MHD (verejná doprava)
- Rýchly prístup k štátnej ceste a diaľnici
- Možnosti voľnočasových aktivít, napr. v rekreačných zónach, kluboch alebo kúpaliskách
Vybavenie:
- Maisonette byt
- 5 izieb na 3 úrovniach
- cca 137 m² obytného priestoru
- Obývacia/jedálenská časť
- 3 spálne
- 1 pracovňa
- Plne vybavená kuchyňa
- Kúpeľňa
- 2 oddelené WC
- Balkón
- Zrekonštruovaný celkový stav
V prípade záujmu prosíme o krátke predstavenie s nasledujúcimi údajmi:
- Meno, vek
- Počet osôb, ktoré sa sťahujú
- Zamestnanie
- Čistý príjem domácnosti
- Požadovaný termín nastěhovania
- Domáce zvieratá (ak sú prítomné)
Ďakujeme za pochopenie.
Parametre nehnuteľnosti
| Vek | Nad 50 rokov |
|---|---|
| Stav | Po rekonštrukcii |
| Poschodie | 1. poschodie z 3 |
| PENB | E - Nehospodárne |
| Cena za jednotku | 12 € / m2 |
| Dostupné od | 1. 2. 2025 |
|---|---|
| Dispozícia | 5+kk |
| Číslo inzerátu | 980100 |
| Úžitková plocha | 137 m² |
Čo táto nehnuteľnosť ponúka?
| Balkón | |
| MHD 1 minúta pešo |
| Pivnica |
V okolí nehnuteľnosti nájdete
Stále hľadáte to pravé?
Nastavte si strážneho psa. Ponuky vybrané na mieru dostanete súhrnne 1× denne e-mailom. S Premium profilom máte po ruke rovno 5 strážcov a keď sa niečo objaví, informujú vás obratom.





















