
Prenájom bytu 2+1 • 62 m² bez realitkyKarlstr. 22a, , Dolné Sasko
Karlstr. 22a, , Dolné SaskoMHD 2 minúty pešo • GarážSvetlý byt disponuje priestranným vstupným priestorom, nádhernou kuchyňou, ktorá je plne vybavená, ako aj obývacou izbou a spálňou.
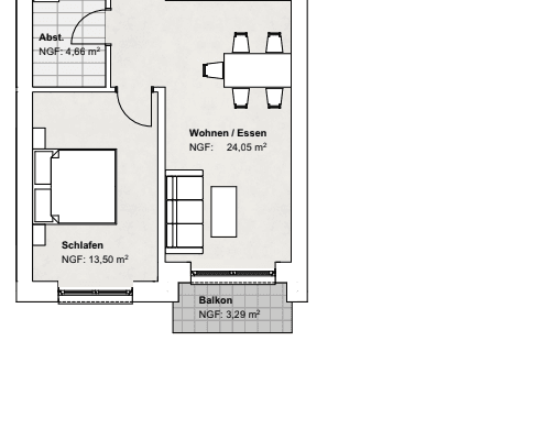
Zo spálne sa dostanete na balkón (orientácia juh/východ). Odtiaľ máte krásny výhľad na opevnenie pri mestskej priekopke.
V centre Wolfenbüttelu!
Len pár minút chôdze vás dovedie k: nákupným ulicam Lange Straße a Breite Herzogstraße, lekárom, bankám, mestskej priekopke, kúpalisku aj divadlu.
Kuchyňa je vybavená vkusnou, kompletne vybavenou vstavanou kuchyňou s kvalitnými elektrickými spotrebičmi (umývačka riadu, kombinovaná chladnička s mrazničkou, sporák s keramickou doskou a digestor).
Niektoré miestnosti sú vybavené vstavanými bodovými svetlami.
Podlaha v kuchyni je pokrytá kvalitnými kameninovými dlaždicami, zatiaľ čo obytné miestnosti majú svetlý parket.
Kúpeľňa je obložená bielymi dlaždicami, vybavená modernými zariadeniami a disponuje sprchovacou priehradkou zo skla. Nad umývadlom je pevne namontovaná zrkadlová skriňa.
V závislosti od dostupnosti je možnosť prenajať si parkovacie miesto alebo garáž.
Tešíme sa, že máte o náš byt záujem, a budeme radi, ak nás kontaktujete. Ďakujeme.
Parametre nehnuteľnosti
| Vek | Nad 50 rokov |
|---|---|
| Stav | Veľmi dobrý |
| Poschodie | 1. poschodie z 3 |
| Úžitková plocha | 62 m² |
| Dostupné od | 1. 4. 2026 |
|---|---|
| Dispozícia | 2+1 |
| Číslo inzerátu | 980094 |
| Cena za jednotku | 11 € / m2 |
Čo táto nehnuteľnosť ponúka?
| Balkón | |
| Garáž |
| Pivnica | |
| MHD 2 minúty pešo |
V okolí nehnuteľnosti nájdete
Stále hľadáte to pravé?
Nastavte si strážneho psa. Ponuky vybrané na mieru dostanete súhrnne 1× denne e-mailom. S Premium profilom máte po ruke rovno 5 strážcov a keď sa niečo objaví, informujú vás obratom.










