
Prenájom bytu 2+1 • 57 m² bez realitkyAm Brüggeberge 14, , Dolné Sasko
Am Brüggeberge 14, , Dolné SaskoMHD 5minút pešo • Výťah • ParkovanieByt 4 – exkluzívny, priestranný, preplnený svetlom
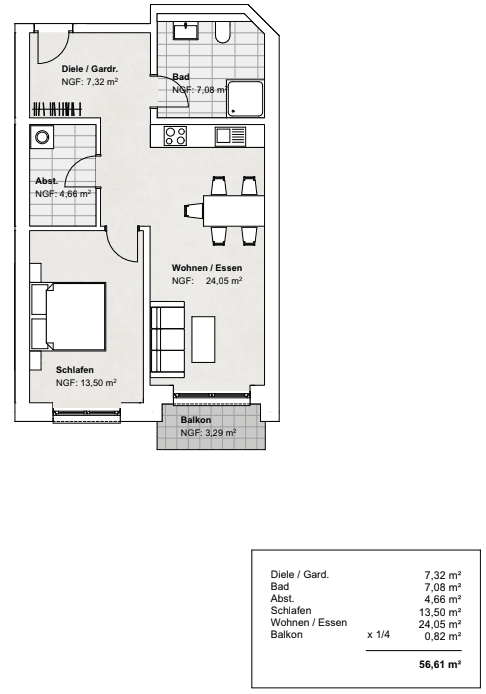
Novostavba ponúka moderný obytný priestor s vysokou kvalitou bývania. Každý byt disponuje otvoreným obývacím a jedálenským priestorom s prilehlou kuchyňou, modernou kúpeľňou so sprchou alebo vaňou, ako aj oddelenou spálňou. Okrem toho máte k dispozícii praktický úložný priestor v byte – skutočný bonus pre každodenný život a poriadok.
Byty sa nachádzajú v 1. a 2. poschodí a ponúkajú priestranné balkóny orientované na juhozápad – ideálne pre oddych v zelenom prostredí.
Vďaka bezbariérovému usporiadaniu, výťahu v budove a prístupom s nízkymi prahmi je objekt vhodný aj pre starších ľudí alebo osoby s obmedzenou pohyblivosťou. Vybavenie je moderné, nenáročné na údržbu a navrhnuté pre príjemné bývanie.
V exteriéri prispievajú upravené chodníky, prevažne kryté parkovacie miesta s pripravenou infraštruktúrou pre elektromobilitu k dodatočnému komfortu a udržateľnosti.
Fümmelse sa nachádza len niekoľko minút jazdy od centra Wolfenbüttels a zároveň ponúka všetky výhody pokojného obytného prostredia. Lokalita je charakteristická rodinnými domami, malými viacfamilijnými domami a priateľskou susedskou komunitou – ideálna pre rodiny s deťmi a pre ľudí, ktorí si chcú užiť dôchodok v príjemnej atmosfére.
Všetky dôležité zariadenia sa nachádzajú v bezprostrednej blízkosti:
- Základná škola je dostupná pešo za pár minút
- Materská škola a denné centrum ASB sa nachádzajú priamo v blízkosti
- Detské ihrisko je oproti nehnuteľnosti – ideálne pre mladé rodiny
- Nákupné možnosti, lekári a ďalší poskytovatelia služieb sú ľahko dostupní
- Vynikajúce spojenie s centrom Wolfenbüttels a cestnou komunikáciou B79
Vo Fümmelse nájdete pokojnú obytnú lokalitu so všetkými výhodami blízkosti mesta – zasadenú v zelenej oblasti s vysokou kvalitou života.
Svetlé priestory s modernými pôdorysmi
Bezbariérové prístupy a výťah v budove
Moderná kúpeľňa so sprchou alebo vaňou
Úložný priestor v byte
Prvý obyvateľ, vysoko kvalitné podlahy a obklady stien
Podlahové kúrenie
Zaujala vás ponuka? Radi vám zašleme podrobný prospekt so všetkými informáciami o byte, pôdoryse a nájomných podmienkach – stačí nám napísať krátku správu.
Parametre nehnuteľnosti
| Vek | Nad 50 rokov |
|---|---|
| Stav | Novostavba |
| Číslo inzerátu | 979886 |
| Cena za jednotku | 14 € / m2 |
| Dostupné od | 1. 3. 2026 |
|---|---|
| Dispozícia | 2+1 |
| Úžitková plocha | 57 m² |
Čo táto nehnuteľnosť ponúka?
| Výťah | |
| MHD 5 minút pešo |
| Parkovanie | |
| Terasa |
V okolí nehnuteľnosti nájdete
Stále hľadáte to pravé?
Nastavte si strážneho psa. Ponuky vybrané na mieru dostanete súhrnne 1× denne e-mailom. S Premium profilom máte po ruke rovno 5 strážcov a keď sa niečo objaví, informujú vás obratom.




