Predaj domu 4+1 • 147 m² bez realitky, Severné Porýnie - Westfálsko
, Severné Porýnie - WestfálskoMHD 1 minúta pešo • Parkovanie • GarážModerná bungalová novostavba (rok výstavby 2025) s 4 izbami, záhradou a možnosťou úprav podkrovia
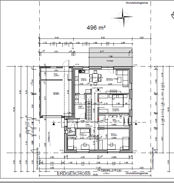
Tento náročný nový objekt (dokončenie v roku 2025) bol postavený v štandarde moderného bungalova s prízemným usporiadaním. Pre túto nehnuteľnosť je typická dôsledná prízemná konštrukcia, ktorá umožňuje bezbariérové a komfortné bývanie na jednej úrovni, pričom ponúka dokonale premyslené dispozície s plynulými prechodmi. Nosná schodisko otvára úplne prispôsobiteľné podkrovie.
Hlavné znaky na prehľad:
· Architektonický skvost: Nosné schodisko ako moderný dizajnový prvok
· Moderné vybavenie: Rok výstavby 2025 s najvyššími energetickými štandardmi
· Praktické rozdelenie: 4 izby na jednej úrovni so samostatnou komorou
· Vlastný vonkajší priestor: Samostatná záhrada na oddych a voľný čas
· Flexibilné riešenie kuchyne: Zabudovaná kuchyňa na požiadanie za príplatok
· Dodatočný potenciál: Úplne prispôsobiteľné podkrovie ponúka rozmanité možnosti využitia
- Priestor pre hostí, domáca kancelária, hobby miestnosť, detské ihrisko
Tento objekt spája výhody prízemného bývania s možnosťou individuálneho rozšírenia priestoru a tak poskytuje maximálnu voľnosť pri realizácii vašich osobných predstáv o bývaní.
Kleingladbach sa nachádza pri Hückelhoven a vyznačuje sa pokojným prostredím. Je ideálny pre všetkých, ktorí si cenia život v zelenom prostredí, ale nechcú sa vzdať dobrej dopravnej dostupnosti. Spája pokoj s blízkosťou k centrálne umiestneným nákupným možnostiam, lekárňam, školám a reštauráciám v centrálnom jadre mesta Hückelhoven.
Rozhodujúcou výhodou tejto nehnuteľnosti je úplne prispôsobiteľné podkrovie. Táto dodatočná úroveň ponúka výrazné možnosti využitia a môže byť úplne premenená na obytný priestor – ideálne pre priestor pre hostí, samostatné detské kráľovstvo, súkromnú domácu kanceláriu alebo priestrannú hobby miestnosť.
Parametre nehnuteľnosti
| Vek | Nad 50 rokov |
|---|---|
| Dispozícia | 4+1 |
| PENB | A - Mimoriadne úsporné |
| Plocha pozemku | 487 m² |
| Cena za jednotku | 4 218 € / m2 |
| Stav | Veľmi dobrý |
|---|---|
| Číslo inzerátu | 979868 |
| Úžitková plocha | 147 m² |
| Celkové poschodia | 1 |
Čo táto nehnuteľnosť ponúka?
| Bezbariérový prístup | |
| Parkovanie | |
| Terasa |
| Garáž | |
| MHD 1 minúta pešo |
V okolí nehnuteľnosti nájdete
Stále hľadáte to pravé?
Nastavte si strážneho psa. Ponuky vybrané na mieru dostanete súhrnne 1× denne e-mailom. S Premium profilom máte po ruke rovno 5 strážcov a keď sa niečo objaví, informujú vás obratom.



















