
Predaj domu 5+1 • 152 m² bez realitkySingerstr. 24 Weilheim Weilheim in Oberbayern Bayern 82362
Singerstr. 24 Weilheim Weilheim in Oberbayern Bayern 82362MHD 1 minúta pešo • ParkovanieTento moderný radový koncový dom, postavený v roku 2020 zo solídnej tehlicovej múrovnej konštrukcie, spĺňa energeticky úsporný štandard KfW-55 a ponúka vám vysoký komfort a energetickú efektívnosť. Ako koncový dom v prestížnej obytné štvrti máte len jedného priameho suseda, čo znamená väčšie súkromie a priestrannejšiu záhradu. Na štyroch podlažiach máte k dispozícii približne 152 m² obytných priestorov (plus približne 42 m² užitnej plochy) – ideálne pre rodiny s rôznymi potrebami. Celkovo vás čaká 5 izieb, medzi ktoré patrí priestranná obývacia jedáleň, niekoľko spální a zariadené štúdio v podkroví, ktoré ponúka mnohé možnosti využitia. Obrovské podlahové okná zabezpečujú svetlé interiéry a harmonický prechod medzi vnútorným a vonkajším priestorom. Užite si výhľad ako zo strešnej terasy, tak zo záhradnej časti, ktorá s prikrytou terasou v prízemí láka na oddych. Nový, energeticky efektívny a štýlový, tento dom sa predstavuje ako dokonalé útočisko pre náročné rodiny a vlastníkov, ktorí hľadajú svoje miesto. Presvedčte sa sami a zažite, ako sa tu domové sny stávajú skutočnosťou.
Poloha domu na ulici Singerstraße 24 vo Weilheim i. OB ponúka ideálnu kombináciu pokojných okolností a centrálnej polohy. Priamo pri rieke Ammer môžete využiť prírodné prostredie s krásnymi prechádzkami pozdĺž brehu, možnosťami hry pre deti a množstvom zelene v okolí. Napriek pokojnej lokalite dosiahnete očarujúce centrum Weilheim s obchodmi, kaviarňami a reštauráciami, ako aj železničnú stanicu, školy a materské školy v priebehu niekoľkých minút pešo. Aj možnosti voľnočasových aktivít, ako verejné kúpalisko pri jazere Dietlhofer alebo mestský park, sú v blízkosti. Cestujúci do práce ocenia rýchle spojenie do Mníchova: približne za 35 minút sa dostanete regionálnou železnicou na hlavnú stanicu Mníchova a autom, cez diaľnicu A95, asi za 45 minút do hlavného mesta spolku. Táto lokalita spája výhody života v prírode obľúbeného Pfaffenwinklu so susednosťou jednej z najdynamičtějších metropolí Nemecka.
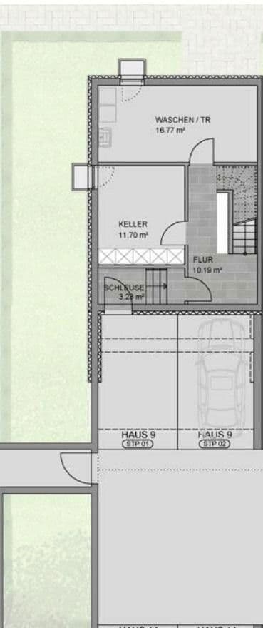
Koncový radový dom zaujme vďaka prestížnemu interiéru, ktorý poskytuje najvyšší komfort bývania. Všetky obytné priestory a časti sklepa sú vybavené podlahovým kúrením, ktoré prevádzkuje ekologická centrálná teplovodná kotolňa (na drevené pelety a plyn) – zabezpečujúc pohodlné teplo a nízke náklady na energiu. Kvalitné trojsklenené okná a vynikajúca izolácia prispievajú k tichu a príjemnej obytné atmosfére. Vkusné dubové parketové podlahy v obytných častiach a veľkoformátové porcelánové obklady v kúpeľniach a vstupnej hale zaručujú trvácnosť a jednoduchú starostlivosť. Dve moderné kúpeľne – jedna s vaňou a dažďovou sprchou, druhá s priestrannou komfortnou sprchou – ohromia kvalitným sanitárnym vybavením a vytvoria pocit pohody. Okrem toho nájdete v prízemí štýlové hostínske WC a praktickú komoru. Srdcom domu je otvorený obývací/jedálenský priestor s mierenej miery vyrobenou kuchynskou linkou, vybavenou modernými spotrebičmi, ktorá zaujme nielen funkčne, ale aj esteticky. Sklep je priamo spojený s podzemnou garážou, takže sa do domu pohodlne a suchou cestou dostanete. Je potrebné poznamenať, že dve miesta v podzemnej garáži nie sú zahrnuté v kúpnej cene. Každý detail, od moderných vnútorných dverí s dizajnovými kovaním až po nadčasové kúpeľňové vybavenie, odráža vysokú kvalitu a nároky tohto domu. Tu sa môžete okamžite nasťahovať a cítiť sa úplne ako doma.
Parametre nehnuteľnosti
| Vek | Nad 50 rokov |
|---|---|
| Dispozícia | 5+1 |
| PENB | B - Veľmi úsporné |
| Plocha pozemku | 214 m² |
| Cena za jednotku | 5 783 € / m2 |
| Stav | Veľmi dobrý |
|---|---|
| Číslo inzerátu | 979724 |
| Úžitková plocha | 152 m² |
| Celkové poschodia | 4 |
Čo táto nehnuteľnosť ponúka?
| Pivnica | |
| MHD 1 minúta pešo |
| Parkovanie | |
| Terasa |
V okolí nehnuteľnosti nájdete
Stále hľadáte to pravé?
Nastavte si strážneho psa. Ponuky vybrané na mieru dostanete súhrnne 1× denne e-mailom. S Premium profilom máte po ruke rovno 5 strážcov a keď sa niečo objaví, informujú vás obratom.















