
Prenájom bytu 3+1 • 83 m² bez realitkyStresemannallee 65 Frankfurt am Main Sachsenhausen Hessen 60596
Stresemannallee 65 Frankfurt am Main Sachsenhausen Hessen 60596MHD 3 minúty pešo • Výťah • GarážPozor, spracovávame iba dopyty, ktoré obsahujú údaje o zamestnaní, čistom príjme a počte osôb prispievajúcich na nájom.
Feel free to write in English.
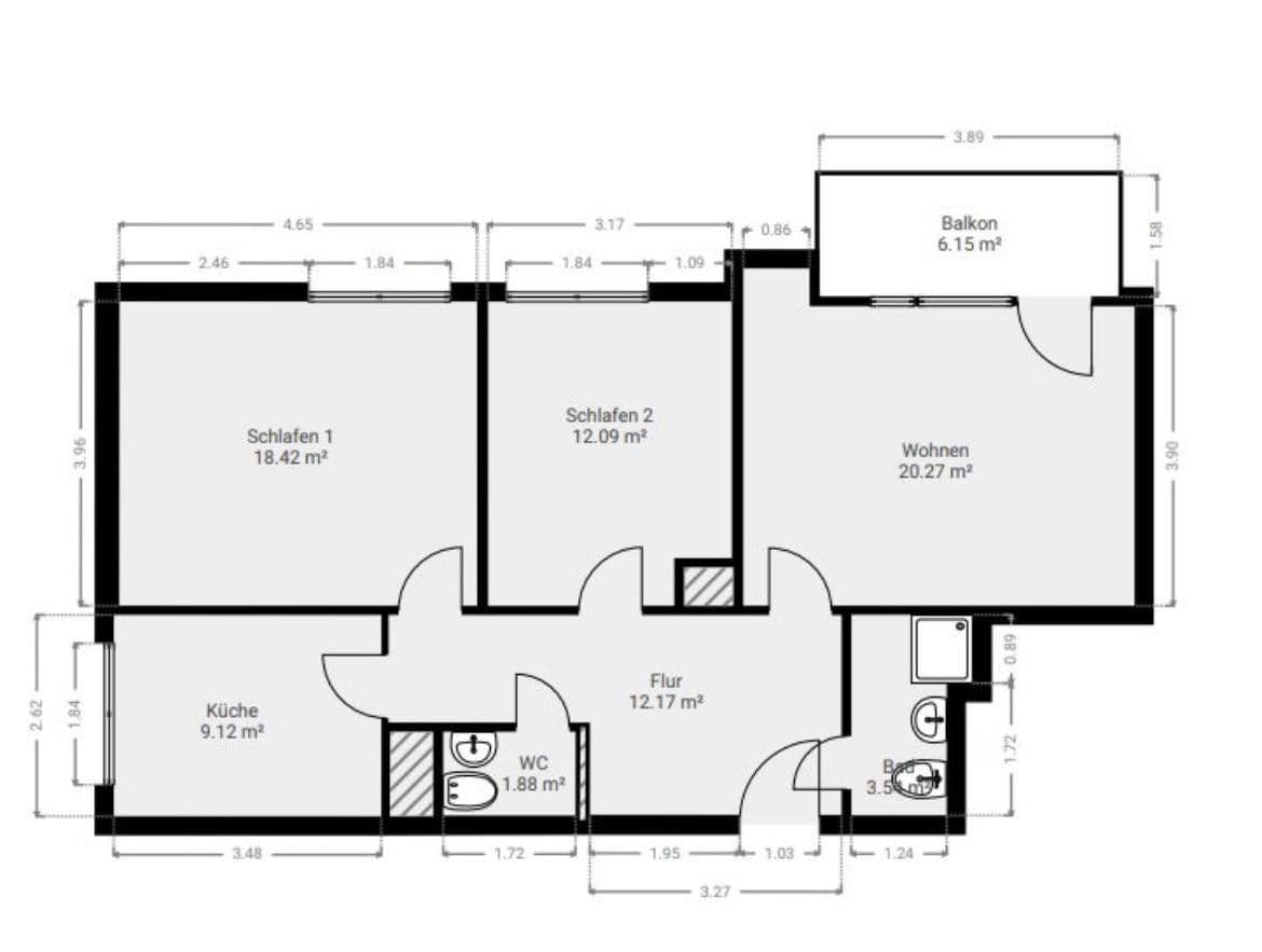
Tento veľmi svetlý a moderne zariadený 3-izbový byt s približne 83 m² sa nachádza na 6. poschodí mimoriadne udržiavaného, moderného viacrodinného domu. Vďaka optimálnemu dispozícii sa byt hodí pre páry, rodiny alebo jednotlivcov, prípadne aj pre spolubývanie.
Dom je tichý, čistý a moderný, s iba tromi bytmi na poschodie. Z podzemného garážového parkovania je priamy a komfortný prístup výťahom až k bytu.
Detaily bytu:
- 3 dobre usporiadané, samostatne prístupné izby
- Štedrá obývacia/jedálenská časť resp. flexibilné využitie priestoru
- Veľký balkón
- Kúpeľňa a samostatné WC
- Chodba
- Skladová priestor (kellér)
- Podzemné parkovacie stání
Vybavenie:
- Vstavaná kuchyňa s granitovou pracovnou doskou
- Granitová podlaha
- Umývačka riadu, rúra, keramická varná doska
- Chladnička s mrazničkou a práčka
- Digestoľ
- Kuchynské nábytkové skrinky a vstavané skrine s osvetlením
- Vstavaný granitový stôl + 2 stoličky
- Dverový interkom
Nasťahovanie: od 01.02.2026
Byt sa nachádza v Sachsenhausen-Nord, jednej z najobľúbenejších obytných štvrti Frankfurtu, s vynikajúcou infraštruktúrou. Verejná doprava je pešo dostupná (3 minút do stanice Stresemannalle Bf) a ponúka rýchle spojenia do centra, na hlavné nádražie aj na južné nádražie.
Vybavenie:
- Vstavaná kuchyňa s granitovou pracovnou doskou
- Granitová podlaha
- Umývačka riadu, rúra, keramická varná doska
- Chladnička s mrazničkou a práčka
- Digestoľ
- Kuchynské nábytkové skrinky a vstavané skrine s osvetlením
- Vstavaný granitový stôl + 2 stoličky
- Dverový interkom
Nájomná zmluva s postupným zvyšovaním nájmu.
Parametre nehnuteľnosti
| Vek | Nad 50 rokov |
|---|---|
| Stav | Dobrý |
| Číslo inzerátu | 979695 |
| Úžitková plocha | 83 m² |
| Dostupné od | 1. 2. 2026 |
|---|---|
| Dispozícia | 3+1 |
| PENB | A - Mimoriadne úsporné |
| Cena za jednotku | 18 € / m2 |
Čo táto nehnuteľnosť ponúka?
| Balkón | |
| Pivnica | |
| Výťah |
| Bezbariérový prístup | |
| Garáž | |
| MHD 3 minúty pešo |
V okolí nehnuteľnosti nájdete




Prenájom bytuAugust-Birlenbach-Straße 6 Offenbach am Main Bieber Hessen 63073- 3+kk
- 85 m²
1 550 € + 175 €
Stále hľadáte to pravé?
Nastavte si strážneho psa. Ponuky vybrané na mieru dostanete súhrnne 1× denne e-mailom. S Premium profilom máte po ruke rovno 5 strážcov a keď sa niečo objaví, informujú vás obratom.











