
Prenájom bytu 2+kk • 99 m² bez realitkyHindenburgerstr 96 Neustadt an der Weinstraße Neustadt an der Weinstraße Rheinland-Pfalz 67433
Hindenburgerstr 96 Neustadt an der Weinstraße Neustadt an der Weinstraße Rheinland-Pfalz 67433MHD 2 minúty pešo • GarážTu je preklad textu do slovenčiny:
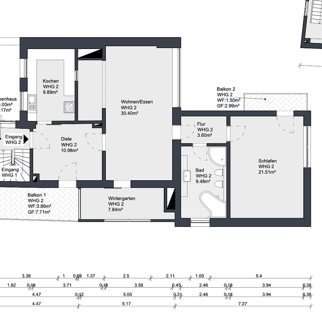
Na prenájom je k dispozícii byt WHG 2 (WE 2), priestranný 2,5-izbový byt s približne 99,05 m² obytného priestoru podľa WoFlV. Nachádza sa v 1. poschodí pokojného zadného domu na Hindenburgstraße 96 v Neustadt an der Weinstraße – centrálna poloha, no zároveň príjemne vzdialená od cestnej premávky.
Renovácia a stav
Byt je momentálne v procese komplexnej rekonštrukcie a po dokončení bude odovzdaný v modernej a veľmi upratanej kondícii.
V rámci prác sa vykonajú:
• kompletné premaľovanie všetkých miestností, vrátane dreveného stropu, ktorý bude natretý na bielo
• výmena vstupných dverí bytu
• výmena všetkých okien
• vybavenie kúpeľne s novou vinylovou podlahou a novými armaturami
Okrem toho budú počas rekonštrukcie implementované aj energetické opatrenia, ktoré zlepšia energetickú efektívnosť celého domu a môžu pozitívne vplývať na komfort bývania a prevádzkové náklady.
Dispozícia a koncept bývania – WHG 2
Byt je celopozemný a vyniká jasnou, veľmi dobre využiteľnou dispozíciou:
• Priestranná predsieň (cca 10,98 m²) s priestorom pre šatník
• Samostatná kuchynská časť (cca 9,89 m²) s veľkými oknami
→ okná poskytujú výhľad do jedálne, čo zaručuje veľa svetla, krátke vzdialenosti a otvorený, komunikatívny pocit z bývania
• Veľká obývacia a jedálenská miestnosť (cca 30,40 m²)
→ vybavená funkčným krbom, ktorý môže najmä počas prechodného obdobia šetriť náklady na kúrenie a zabezpečuje príjemnú atmosféru
→ navyše je v obývacej časti inštalovaná plne funkčná klimatizácia, ktorá v teplých dňoch zaisťuje príjemné teploty
• Vlastná zimná záhrada (cca 7,84 m²)
→ špeciálne vyzdvihnutý detail s posúvacími oknami a nádherným krbom, ideálna ako jedálenský kút, čítacia zóna alebo ako dodatočný obytný/pracovný priestor
• Spálňa (cca 21,51 m²), priestranná a ticho umiestnená
• Kúpeľňa s denným svetlom (cca 9,48 m²)
• Chodba (cca 3,60 m²) so zreteľným oddelením jednotlivých zón
Dispozícia predstavuje klasický 2,5-izbový byt, doplnený o zimnú záhradu a otvorené výhľady.
Byt má dve balkóny, ktoré rozširujú obytný priestor:
• Balkón 1: cca 7,71 m² podlahovej plochy
• Balkón 2: cca 2,99 m² podlahovej plochy
Ideálne pre slnečné lúče v rôznych denných časoch, na pestovanie rastlín alebo na oddych vonku.
Veľké okná, zimná záhrada a okienne spojenie medzi kuchyňou a jedálňou zabezpečujú dostatok denného svetla, príjemné vetranie a svetlú, priateľskú atmosféru.
Ďalšie vybavenie bytu:
• suterén s možnosťou umiestnenia práčky a sušičky
• udržiavaná, vizuálne príťažlivá budova
• tichá poloha v zadnej časti domu, no zároveň s centrálnym napojením na centrum mesta
Voliteľne:
• Garáž v susednej budove je k dispozícii na prenájom za 70 € / mesiac
Byt sa nachádza na Hindenburgstraße, priamo v srdci historického centra Neustadt an der Weinstraße – poloha, ktorá spája mestský život s kvalitou bývania.
Táto centrálná adresa Ti ponúka všetko, čo na každý deň potrebuješ, priamo za dverami alebo len pár minút pešo:
• rozmanité možnosti nákupov a malé obchody
• kaviarne, reštaurácie a bary pre voľný čas a potešenie
• lekári, lekárne a poskytovatelia služieb každodenných potrieb
• veľmi dobré spojenie s verejnou dopravou
• krátke vzdialenosti k školám, materským škôlkam a mestskej infraštruktúre
Aj napriek centrálnej polohe je okolie príjemne tiché a obyvatelné – ideálny mix mestského života a komfortného bývania.
Vďaka blízkosti zelene, parkov a cyklotrás si môžeš ideálne vychutnať životný štýl Pfalz so svojimi outdoorovými a rekreačnými aktivitami. A poloha na okraji Pfälzerwaldu robí z Neustadt ideálne miesto, kde sa príroda a mesto skvele spájajú.
Stručne:
Tu bývaš priamo v centre, s krátkymi vzdialenosťami ku všetkému dôležitému – a zároveň v susedstve, ktoré harmonicky kombinuje živelnosť a pokoj.
• cca 99,05 m² obytného priestoru
• 3 izby
• poschodie, zadná časť domu
• zimná záhrada
• dva balkóny
• prvé použitie po komplexnej rekonštrukcii
• nové okná a nové vstupné dvere do bytu
• nová kúpeľňa s vinylovou podlahou a modernými armaturami
• zlepšená energetická efektívnosť vďaka energetickým opatreniam
Prenájom garáže v žiadanej mestskej lokalite priamo pred vlastnými dverami je voliteľný, závislý od dostupnosti, za 70 € mesačne.
Parametre nehnuteľnosti
| Vek | Nad 50 rokov |
|---|---|
| Stav | Po rekonštrukcii |
| Poschodie | Prízemie |
| PENB | E - Nehospodárne |
| Cena za jednotku | 10 € / m2 |
| Dostupné od | 15. 2. 2026 |
|---|---|
| Dispozícia | 2+kk |
| Číslo inzerátu | 979413 |
| Úžitková plocha | 99 m² |
Čo táto nehnuteľnosť ponúka?
| Balkón | |
| Garáž |
| Pivnica | |
| MHD 2 minúty pešo |
V okolí nehnuteľnosti nájdete
Stále hľadáte to pravé?
Nastavte si strážneho psa. Ponuky vybrané na mieru dostanete súhrnne 1× denne e-mailom. S Premium profilom máte po ruke rovno 5 strážcov a keď sa niečo objaví, informujú vás obratom.





















