
Predaj domu 7+1 • 120 m² bez realitkyBerlin Buckow Berlin 12353
Berlin Buckow Berlin 12353MHD 1 minúta pešo • ParkovanieTáto očarujúca dvojdomovina pochádza z roku 1984 a nachádza sa v pokojnej, rodinne prívetivej štvrti Berlín-Buckow. Okolie zaujme vynikajúcou infraštruktúrou: obchody, školy, škôlky a verejná doprava (autobus a metro) sú pohodlne dostupné pešo.
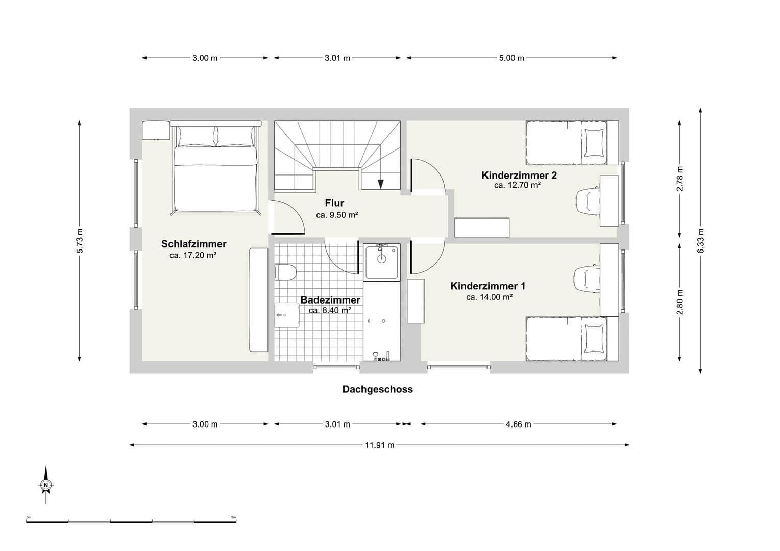
Dom ponúka približne 120 m² obytných priestorov a celkovo okolo 170 m² využiteľnej plochy, rozložených do štyroch podlaží vrátane zrekonštruovanej podkrovia a celopodkrového priestoru s rôznymi možnosťami využitia. Približne 380 m² veľký pozemok zahŕňa okolo 120 m² záhradnej plochy s útulnou chýškou a dve parkovacie miesta pred domom.
Kúpeľňa bola pred 1,5 roka kompletne zrekonštruovaná (nové vodovodné potrubia, cirkulačná pumpa, elektroinštalácia s prúdovým chráničom, nová ističová skriňa). Disponuje vaňou, bezprahovou sprchou a podlahovým kúrením, doplneným o centrálne kúrenie. Na celom hornom podlaží bol položený vysoko kvalitný korkový drevený podlahový kryt. Schodisko, kúrenie, všetky okná a vstupné dvere boli približne v roku 2020 obnovené. Na záhradnej chýške je umiestnená fotovoltaická inštalácia na ďalšie napájanie energie (strecha bola pri inštalácii taktiež obnovená).
Táto očarujúca dvojdomovina v Berlín-Buckow spája pokoj s moderným komfortom a výbornou polohou. V bezprostrednej blízkosti sa nachádzajú škôlky, školy, lekári a obchody, a pešia dostupnosť autobusov a metra robí z infraštruktúrnych výhod ideálnu voľbu – perfektné riešenie pre rodiny, ktoré ocenia veľký priestor a prvotriedne prostredie.
Renovované: nová kúpeľňa, nové schodisko, nová podlaha na hornom podlaží, plynové kúrenie (2017)
Obkladové a teplé korkové podlahy
Podlahové kúrenie v kúpeľni
Útulný krb v obývačke
Fotovoltaická inštalácia na záhradnej chýške
Dve parkovacie miesta
Pestovaná záhrada s dostatkom priestoru na oddych
Vďaka premyslenému rozloženiu sa dom výborne hodí pre rodiny alebo viacčlenné domácnosti.
Parametre nehnuteľnosti
| Vek | Nad 50 rokov |
|---|---|
| Stav | Po rekonštrukcii |
| Číslo inzerátu | 979301 |
| Úžitková plocha | 120 m² |
| Celkové poschodia | 4 |
| Dostupné od | 27. 1. 2026 |
|---|---|
| Dispozícia | 7+1 |
| PENB | D - Menej hospodárne |
| Plocha pozemku | 380 m² |
| Cena za jednotku | 5 500 € / m2 |
Čo táto nehnuteľnosť ponúka?
| Pivnica | |
| MHD 1 minúta pešo |
| Parkovanie | |
| Terasa |
V okolí nehnuteľnosti nájdete
Stále hľadáte to pravé?
Nastavte si strážneho psa. Ponuky vybrané na mieru dostanete súhrnne 1× denne e-mailom. S Premium profilom máte po ruke rovno 5 strážcov a keď sa niečo objaví, informujú vás obratom.
































