
Predaj domu 5+1 • 105 m² bez realitkyNauroder Str. 71 Wiesbaden Wiesbaden Hessen 65191
Nauroder Str. 71 Wiesbaden Wiesbaden Hessen 65191MHD 1 minúta pešo • ParkovanieTu sa môžete s rodinou okamžite nasťahovať a cítiť sa skvele!
Samostatne stojaci rodinný dom vo Wiesbaden-Bierstadt – zmodernizovaný, energeticky efektívny (A) a bez provízie
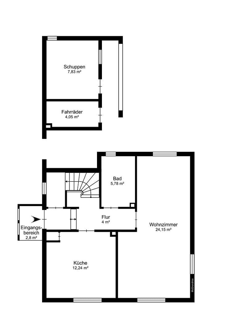
Tento udržiavaný a zmodernizovaný rodinný dom zaujme príjemnou obývacou atmosférou a praktickým rozložením priestorov. Vďaka novej tepelnej čerpadle dom dosahuje energetickú triedu A a poskytuje tak moderný, úsporný životný komfort.
Nehnuteľnosť disponuje:
• priestrannou obývacou izbou
• svetlom naplnenou kuchyňou spojenou s obývacou časťou
• 3 spálňami
• 1 pracovňou
• 2 modernými kúpeľňami
• priestrannými suterénmi a skladovacími priestormi
Záhrada ponúka veľa miesta na oddych aj hranie. Priamo pri dome sa nachádza dodatočná prenajímateľná plocha od mesta Wiesbaden (220 m²), ktorá môže byť výhodne prevzatá – celkovo je k dispozícii približne 700 m² pozemku.
Bez provízie – neplatíte žiadne maklérske poplatky.
Prehliadku je možné dohodnúť na krátku dobu. Neváhajte nás kontaktovať pre stanovenie termínu.
Na požiadanie vám poskytneme ďalšie podklady o nehnuteľnosti.
Nehnuteľnosť sa nachádza na slnečnom a samostatnom mieste na okraji Wiesbaden-Bierstadt, jednej z najžiadanejších lokalít pre rodiny a páry, ktoré chcú zakúpiť rodinný dom vo Wiesbaden. Pokojná lokalita ponúka priame spojenie s prírodou – pešie chodníky, polia a zelené plochy začínajú prakticky priamo pred vašimi dverami.
Wiesbaden-Bierstadt, s približne 12 500 obyvateľmi, patrí medzi najobľúbenejšie mestské časti hlavného mesta a ohromuje vysokou kvalitou života, dobrou infraštruktúrou a rýchlym spojením s centrom Wiesbadenu. Obchody, supermarkety, drogerie, lekári, lekárne, pošta a pestrá ponuka gastronomických služieb sú dostupné v priebehu niekoľkých minút.
Táto štvrť je obzvlášť známa vďaka blízkemu Aukammtalu s termálnym kúpaliskom, Apothekergarten, DKD a klinike Wilhelm-Fresenius – čo je ďalšou výhodou pre tých, ktorí kladú dôraz na zdravie, oddych a voľnočasové aktivity v tesnej blízkosti domova.
Pre rodiny ponúka Bierstadt vynikajúce vzdelávacie možnosti: materské centrá, škôlky, základná škola a gymnázium sa nachádzajú v bezprostrednom okolí. Ďalšie typy škôl sú ľahko dostupné v celom meste Wiesbaden.
Vďaka svojej výhodnej dopravnej polohe disponuje Wiesbaden-Bierstadt vynikajúcimi spojeniami do všetkých smerov – ako autom, tak aj verejnou dopravou. Cestujúci do práce najviac využijú rýchle spojenie s diaľnicami A66, A3 a smerom na Mainz a Frankfurt.
Rozsiahle modernizácie (všetky vykonané v roku 2025):
- Kompletná obnova elektroinštalácie
- Obe kúpeľne kompletne zrenovované (vrátane inštalácií, vybavenia a obkladov)
- Inštalácia nového tepelného čerpadla
- Výmena všetkých vodovodných potrubí
- Nové trojité zasklené okná v celom dome
- Nové podlahové krytiny a čerstvo zrenovované steny
- Inštalácia nových vnútorných dverí
- Zateplenie vonkajšej fasády
- Zateplenie stropu suterénu
- Zateplenie podkrovia
Parametre nehnuteľnosti
| Vek | Nad 50 rokov |
|---|---|
| Stav | Po rekonštrukcii |
| Číslo inzerátu | 977272 |
| Úžitková plocha | 105 m² |
| Celkové poschodia | 2 |
| Dostupné od | 12. 1. 2026 |
|---|---|
| Dispozícia | 5+1 |
| PENB | A - Mimoriadne úsporné |
| Plocha pozemku | 480 m² |
| Cena za jednotku | 7 133 € / m2 |
Čo táto nehnuteľnosť ponúka?
| Pivnica | |
| MHD 1 minúta pešo |
| Parkovanie | |
| Terasa |
V okolí nehnuteľnosti nájdete
Stále hľadáte to pravé?
Nastavte si strážneho psa. Ponuky vybrané na mieru dostanete súhrnne 1× denne e-mailom. S Premium profilom máte po ruke rovno 5 strážcov a keď sa niečo objaví, informujú vás obratom.















