
Predaj bytu 3+1 • 96 m² bez realitkyFraunberg Reichenkirchen Bayern 85447
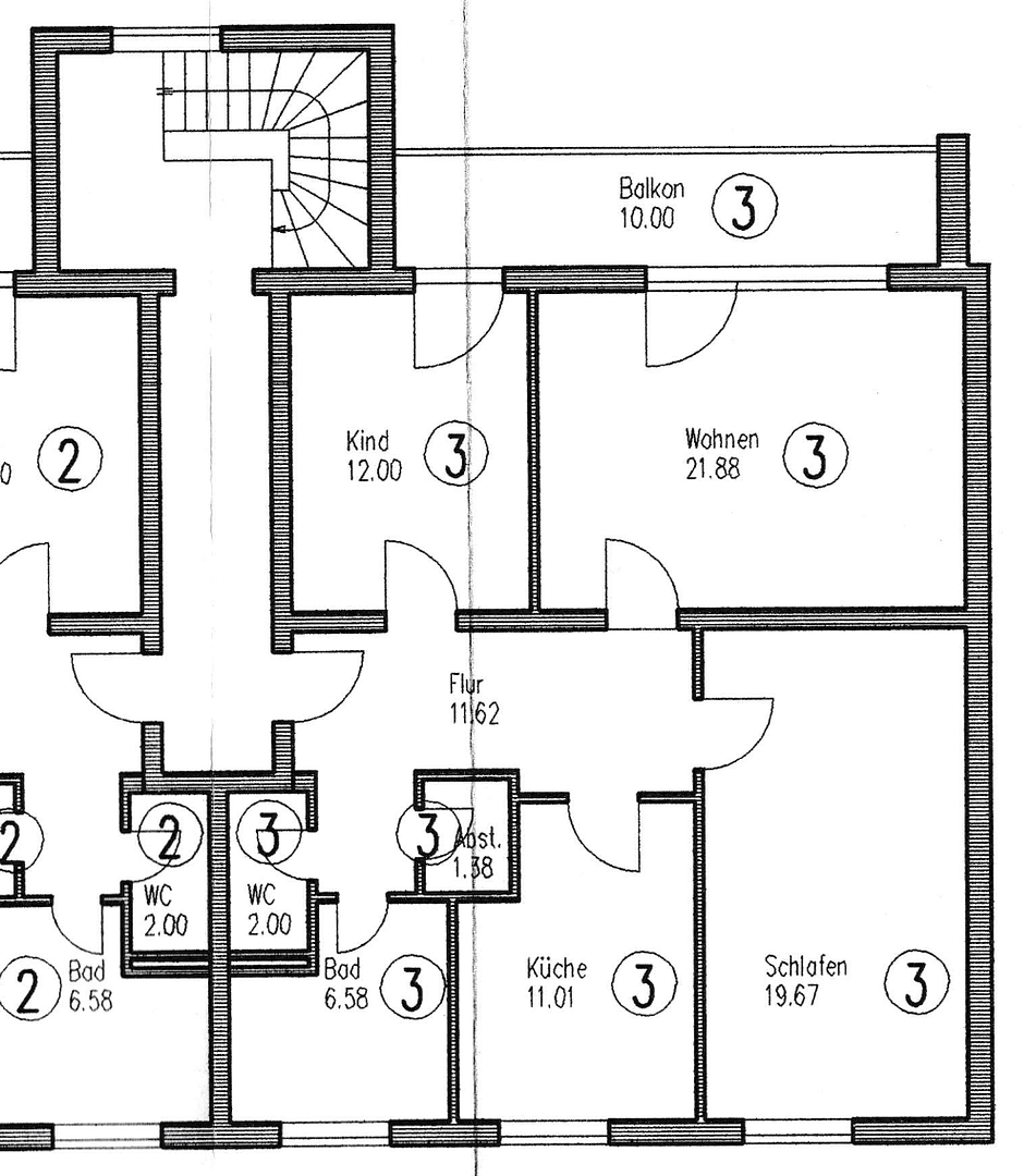
Fraunberg Reichenkirchen Bayern 85447MHD 2 minúty pešo • GarážKeď v 1. poschodí prejdete dverami bytu, najskôr vstúpite do priestrannej chodby. Odtiaľto sa smerom doprava nachádza svetlom naplnená kúpeľňa s vaňou, hostinská toaleta a spižírna. Na ľavej strane sa dostanete do 12 m² veľkej detskej izby. Ak budete chodbou pokračovať, vpravo je kuchyňa s priestrannou zabudovanou linkou a jedálenským kútom, priamo pred vami sa nachádza rodičovská spálňa s rozlohou takmer 20 m² a vľavo jasný, útulný obývací priestor s rozlohou takmer 22 m². Okrem toho, priľahlý k obývacej izbe, je západný balkón, na ktorom si môžete nádherne vychutnať večerné slnko.
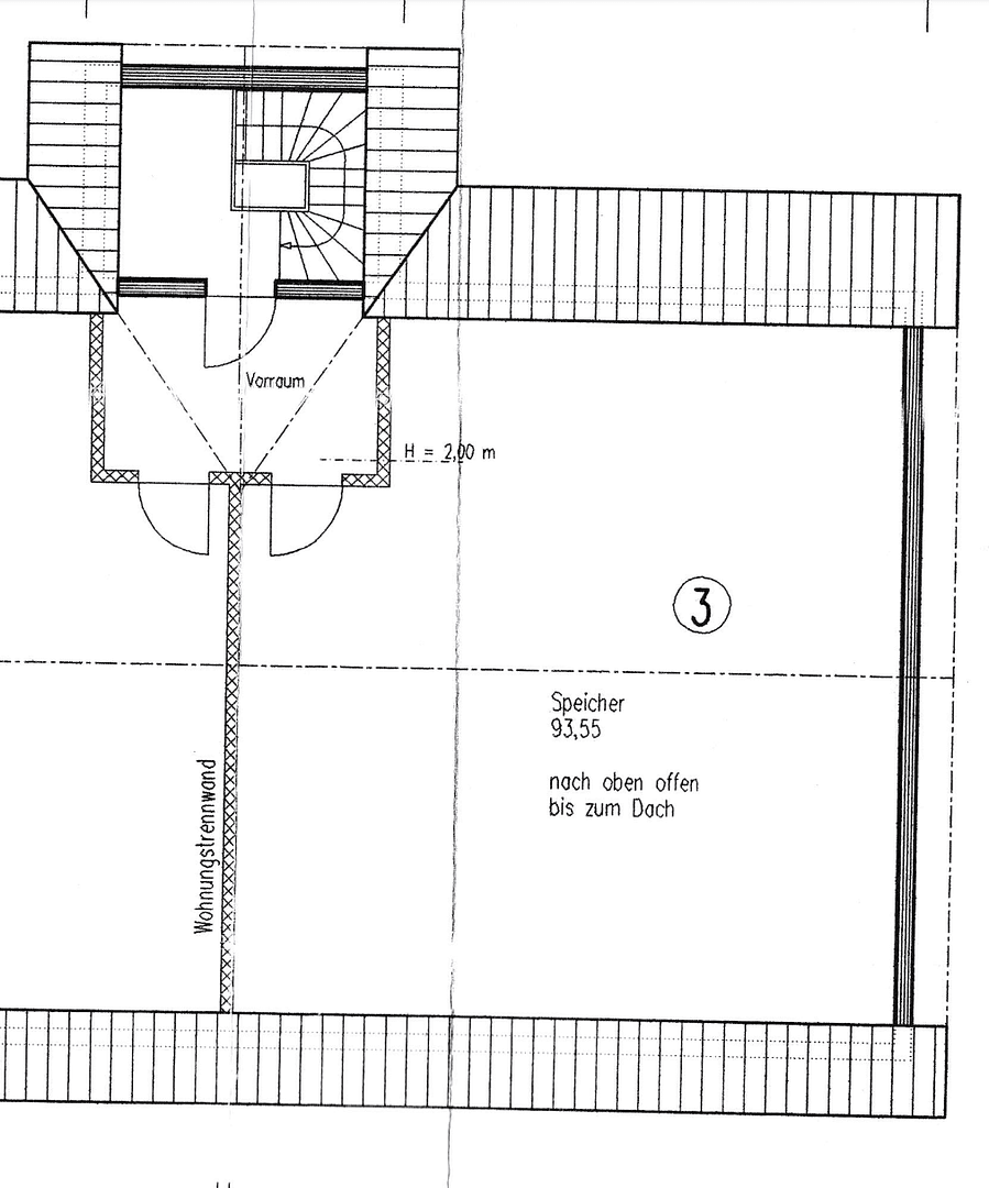
Na podkroví sa momentálne nachádza 93 m² veľký skladovací priestor, do ktorého sa zmestia všetky vaše veci. Tento priestor sa predáva spolu s bytom. Dom bol postavený v roku 1966 a suterén tvorí len jedna miestnosť, v ktorej sa nachádza olejové kúrenie.
Ďalšou vychytávkou je, že podkroví, kde sa momentálne nachádza skladovací priestor, môže byť prebudované na obytný priestor! Je možné prebudovať 1. poschodie aj podkroví do maisonetového bytu. Podľa okresného úradu neexistujú žiadne obmedzenia. (stav k 08/2025)
Nehnuteľnosť sa nachádza vo Fraunbergu. V blízkosti premáva niekoľko autobusových liniek. V pešej vzdialenosti sa nachádza pekáreň a aj fitness centrum je v bezprostrednej blízkosti. Ďalej v okolí nájdete niekoľko nákupných možností, školy a materské školy. V širšom okruhu sú tiež k dispozícii niektoré múzeá, kino, kvalitná zdravotná starostlivosť a rôzne možnosti na oddych a šport (vrátane zelene a parkov).
Parametre nehnuteľnosti
| Vek | Nad 50 rokov |
|---|---|
| Stav | Dobrý |
| Poschodie | Prízemie |
| Úžitková plocha | 96 m² |
| Dostupné od | 21. 1. 2026 |
|---|---|
| Dispozícia | 3+1 |
| Číslo inzerátu | 977250 |
| Cena za jednotku | 4 375 € / m2 |
Čo táto nehnuteľnosť ponúka?
| Balkón | |
| MHD 2 minúty pešo |
| Garáž |
V okolí nehnuteľnosti nájdete
Stále hľadáte to pravé?
Nastavte si strážneho psa. Ponuky vybrané na mieru dostanete súhrnne 1× denne e-mailom. S Premium profilom máte po ruke rovno 5 strážcov a keď sa niečo objaví, informujú vás obratom.



















