
Predaj domu 6+1 • 132 m² bez realitkyHauptstraße, 49, , Hesensko
Hauptstraße, 49, , HesenskoMHD 2 minúty pešo • ParkovanieTento samostatne stojaci rodinný dom z roku 1929 sa nachádza v centrálnom Rodgau a bol v priebehu rokov komplexne zmodernizovaný a neustále obnovovaný.
Pôvodný dom s vidieckou konštrukciou sa dnes prezentuje vo veľmi udržiavanom, modernom stave.
Nie je potrebná žiadna rekonštrukcia ani sanácia – dom je pripravený na nasťahovanie a je ideálny pre kupujúcich, ktorí nechcú riešiť stavbu.
Dom je aktuálne obývaný majiteľmi.
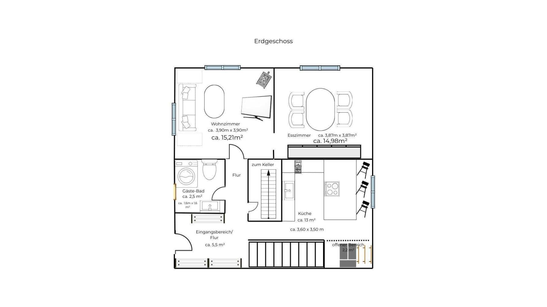
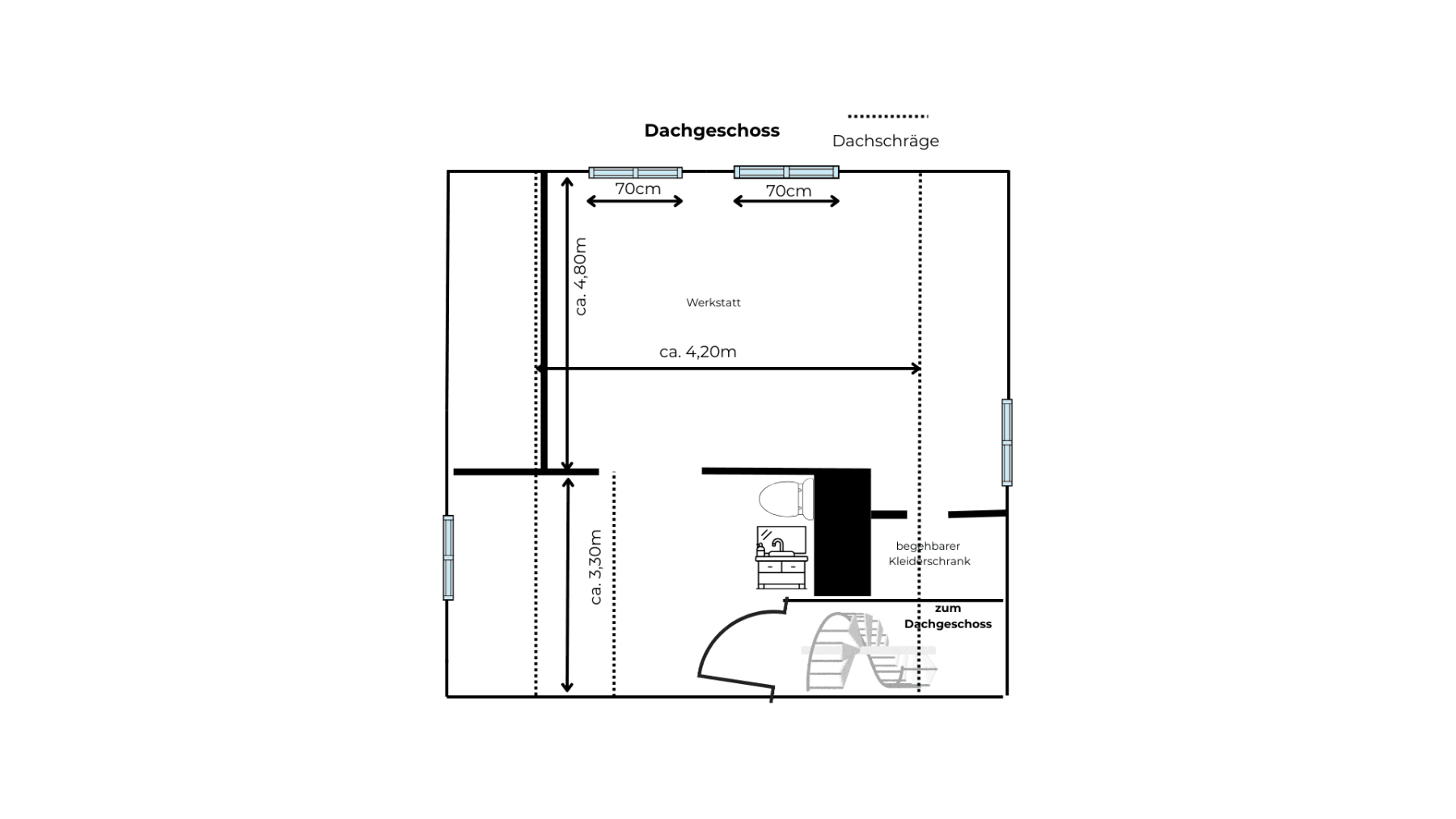
Obytná plocha & Rozloženie miestností
Obytná plocha približne 132 m² je rozložená na prízemie, poschodie a podkrovie.
Celkovo je k dispozícii 6 izieb, ktoré je možné flexibilne využívať ako obývacie, spálňové, pracovné alebo záujmové miestnosti.
Ďalej k dispozícii:
1 pivnica
Vybudované podkrovie
Sanitárne zariadenie
– Kúpeľňa
– Moderné hostinské WC v prízemí, úplne renovované približne pred rokom
– WC a umývadlový kút s dolnou a hornou skriňou na podkroví
Moderné energetické a domáce technológie:
Fotovoltaická elektráreň s úložiskom energie
Wallbox pre elektrické vozidlá
Dva parkovacie miesta
Kompletně klimatizovaný dom s piatimi vnútornými jednotkami a jednou vonkajšou jednotkou, využiteľný na chladenie aj kúrenie.
Toto vybavenie umožňuje vysokú úroveň komfortu bývania, energetickú efektívnosť a flexibilitu v každodennom živote.
Stav & Modernizácia
Dom bol priebežne udržiavaný a modernizovaný.
Obnovy a vylepšenia boli dôsledne a udržateľne realizované, takže dnes je nehnuteľnosť v veľmi udržiavanom, modernom celkovom stave.
– Súkromný predaj – žiadna provízia makléra
– Kompletně modernizovaný
– Moderné energetické a klimatizačné technológie
Rodgau je mesto v okrese Offenbach v Hesensku. Mesto ponúka dobrú infraštruktúru s množstvom obchodných príležitostí, lekárov a škôl. Dopravná dostupnosť je vďaka blízkosti diaľnic a verejnej dopravy veľmi dobrá. Niekoľko parkov a zelených plôch pozýva na oddych.
Parametre nehnuteľnosti
| Vek | Nad 50 rokov |
|---|---|
| Dispozícia | 6+1 |
| PENB | A - Mimoriadne úsporné |
| Plocha pozemku | 129 m² |
| Cena za jednotku | 4 091 € / m2 |
| Stav | Po rekonštrukcii |
|---|---|
| Číslo inzerátu | 976627 |
| Úžitková plocha | 132 m² |
| Celkové poschodia | 3 |
Čo táto nehnuteľnosť ponúka?
| Pivnica | |
| MHD 2 minúty pešo |
| Parkovanie | |
| Terasa |
V okolí nehnuteľnosti nájdete
Stále hľadáte to pravé?
Nastavte si strážneho psa. Ponuky vybrané na mieru dostanete súhrnne 1× denne e-mailom. S Premium profilom máte po ruke rovno 5 strážcov a keď sa niečo objaví, informujú vás obratom.



















































