
Predaj domu • 326 m² bez realitkyNellinger Straße 47 Stuttgart Heumaden Baden-Württemberg 70619
Samostatná 12-izbová vila (postavená v roku 1957 / prístavba 1993) s celkovou podlahovou plochou 326 m² (vyhrievaného obytného priestoru) resp. 405 m² podľa WoFlV (pozri obrázok) + 64 m² užitnej plochy.
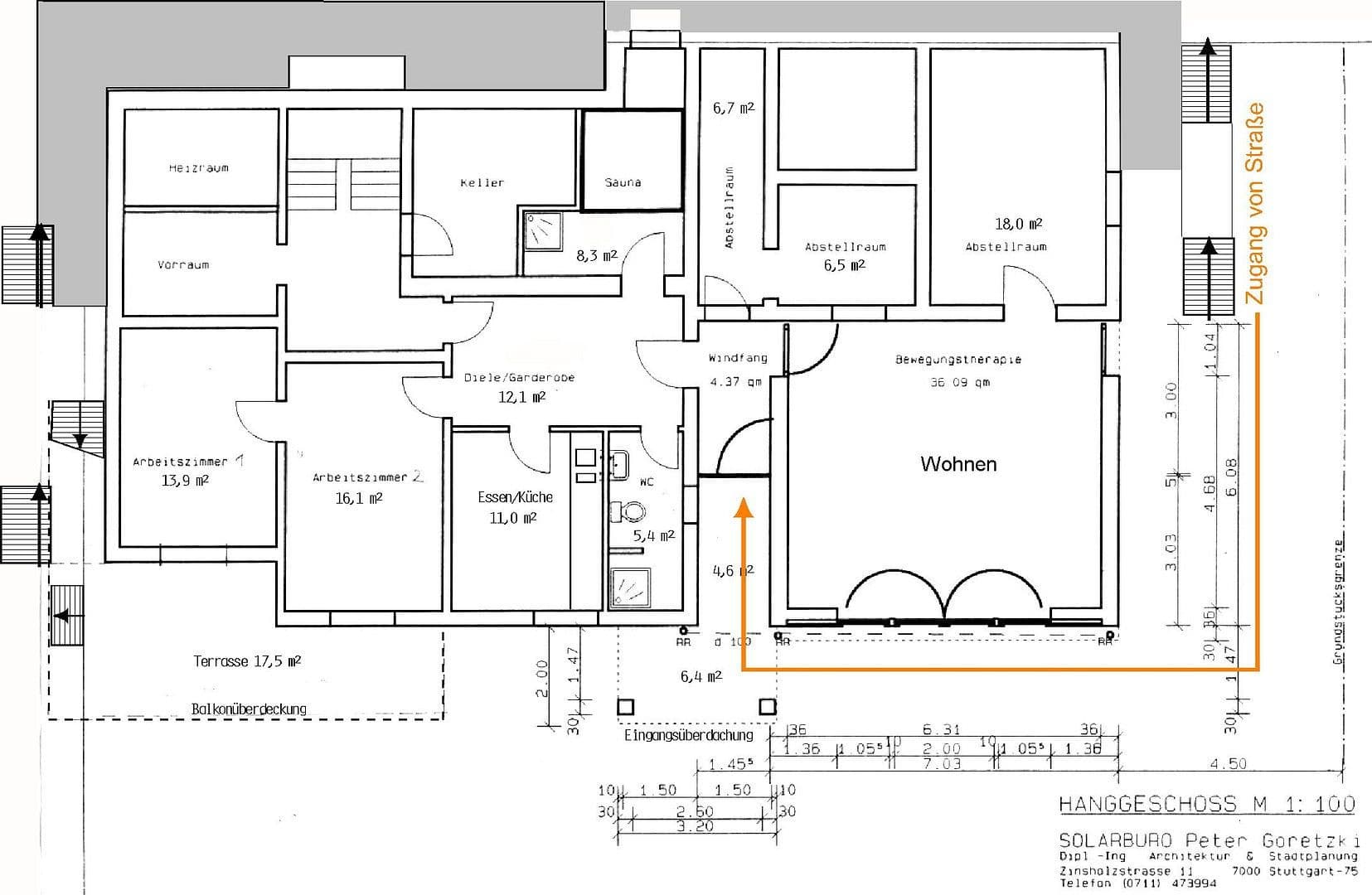
Záhradové nadzemie (115 m²) je možné samostatne využívať s vlastným vstupom, so saunou.
Hlavné byty (prízemie + 1. poschodie + 2. poschodie) nie sú vhodné na delenie na viacero samostatne uzatvorených obytných jednotiek (pozri pôdorysy).
Veľkosť pozemku: 1366 m², z toho
- 711 m² stavebného pozemku (WGFZ: cca 1,2–1,4, čo znamená, že cena pôdy je aspoň 1,1 milióna) plus
- 655 m² bezprostredne susedného záhradného pozemku s kvetinovou lúkou, ovocnými stromami a kríkovými plodmi. Nachádza sa tu záhradná chata, dažďový zásobník s 3 m³ na zavlažovanie.
- navyše 140 m² mestského "bonusového pozemku" bez nájomného
Preto je daňové priznanie na pozemok v roku 2025 priaznivé – len 1274 €/rok + 147 €/rok za dažďovú vodu.
Plánovacia legislatíva podľa §34 BauGB
Východný svah v pokojnej, nezastaviteľnej lokalite na okraji mesta s výhľadom.
MHD, autobus, škola, lekári a obchody sú pešo dostupné za pár minút.
Centrum Stuttgartu a hlavné nádražie sú dostupné metrom za približne 20 minút. Autobusom sa dostanete na letisko za približne pol hodiny a do Esslingenu za približne 25 minút. Diaľnica je dostupná za približne 10–15 minút.
Nehnuteľnosť síce leží na pokojných predmestských okrajoch, ale ponúka výhľad na Katharinenlinde a Schurwald.
Les nachádzajúci sa na východ od nehnuteľnosti a polia so sade s výhľadom na Schwäbische Alb, ktoré susedia na východ a juh, zvádzajú na príjemné prechádzky v každom ročnom období.
Skosené letecké snímky nájdete tu:
https://www.bing.com/maps?FORM=Z9LH2&cp=48.742518%7E9.235655&lvl=20.0&style=g&dir=-60
Priestranná, svetlá jedáleň s obývacím priestorom (47 m²) s vysokými stropmi cca 2,8 m a pripojenou knižnicou resp. pracovňou v prízemí disponuje parketovými podlahami, spálne na 1. a 2. poschodí majú koberce. V záhradovom nadzemí sa nachádzajú korkové či laminátové podlahy a dlaždice.
Celkový stav nehnuteľnosti je udržiavaný.
Okna v prízemí a na 1. poschodí boli väčšinou renovované v roku 2009 (Ug = 1,1 W/m²K).
Strecha: Izolácia medzi krokvami s U_d = 0,235 W/m²K
=> nie je potrebná dodatočná rekonštrukcia podľa GEG.
Vonku sú múry:
- prízemie a poschodia: betónové irkské tehly (Bimshohlblocksteine) s hrúbkou 24 cm, U = 1,14 W/m²K;
- podkrovie: betónové irkské tehly s hrúbkou 30 cm, U = 0,95 W/m²K;
- prístavba: porenové tehly, U = 0,21 W/m²K.
Energetická trieda: "E"
Plynové nízkoteplotné kúrenie bolo renovované v roku 2009 (momentálne môže byť prevádzané na neobmedzený čas).
Spotreba energie na kúrenie a teplú vodu je približne 55 000 kWh ročne
= Energetická trieda "D" podľa spotreby.
Prehľad plôch:
Záhradové nadzemie:
Izba 1:..........13,9 m²
Izba 2:.........16,1 m²
Jedáleň a kuchyňa:.......11,0 m²
Záhradná izba:..36,1 m²
Chodba:................12,1 m²
WC so sprchou:.......5,4 m²
Sauna so sprchou:..8,3 m²
Vstupná hala:...........4,2 m²
Skladová miestnosť:.....18,8 m²
Terasy:........49,5 m²
-----------------------
Pivnica 1:..............6,5 m²
Pivnica 2:..............6,7 m²
Pivnica 3:..............9,1 m²
Predpokoj:...........6,1 m²
Kúrenáreň:..........5,7 m²
Schodisko:..............11,4 m²
Prízemie:
Jedálenská izba: 19,5 m²
Obývacia izba:..27,4 m²
Izba 3:.........13,7 m²
Kuchyňa:...............12,6 m²
Práčovňa:..........7,5 m²
Chodba:................9,8 m²
Schodisko:..............6,6 m²
Vstupná hala:..........4,5 m²
Sprcha:............5,2 m²
WC:....................3,2 m²
Balkón:............24,0 m²
1. poschodie:
Izba 4:.........21,1 m²
Izba 5:.........10,3 m²
Izba 6:.........14,5 m²
Izba 7:.........14,2 m²
Chodba:................16,1 m²
Schodisko:..............6,6 m²
Kúpeľňa so sprchou:......9,9 m²
WC:.....................3,1 m²
Balkón:...............5,9 m²
2. poschodie (plne zariadené):
Izba 8:........18,4 m²
Izba 9:........11,2 m²
Chodba:................6,0 m²
Obhliadky sú možné krátkodobo podľa dohody.
Predaj od súkromného vlastníka, bez provízie, pre súkromné osoby – žiadny maklér.
Expozícia s pôdorysmi, energetickým preukazom, termografiou a videotúrou v cloude je k dispozícii na požiadanie.
Pri dopytoch prosíme uviesť meno, adresu a pevnú telefónnu linku!
Kúpna cena dohodou: 1 650 000 €
Parametre nehnuteľnosti
| Vek | Nad 50 rokov |
|---|---|
| Číslo inzerátu | 976506 |
| Úžitková plocha | 326 m² |
| Celkové poschodia | 4 |
| Stav | Dobrý |
|---|---|
| PENB | E - Nehospodárne |
| Plocha pozemku | 1 366 m² |
| Cena za jednotku | 5 061 € / m2 |
Čo táto nehnuteľnosť ponúka?
| Balkón | |
| Garáž | |
| MHD 6 minút pešo |
| Pivnica | |
| Parkovanie | |
| Terasa |
V okolí nehnuteľnosti nájdete
Stále hľadáte to pravé?
Nastavte si strážneho psa. Ponuky vybrané na mieru dostanete súhrnne 1× denne e-mailom. S Premium profilom máte po ruke rovno 5 strážcov a keď sa niečo objaví, informujú vás obratom.

























