
Predaj bytu 3+kk • 75 m² bez realitkySvornosti, Praha - Smíchov
Nabízím k prodeji kompletně vybavený byt v osobním vlastnictví o dispozici 3+kk a podlahové ploše 75,3 m², umístěný ve 2. nadzemním podlaží udržovaného bytového domu na pražském Smíchově. Výjimečná poloha – pouhých 5 minut chůze od oblíbených náplavek – činí tuto nemovitost ideální volbou pro rodinu i investora hledajícího byt s dlouhodobou hodnotou.
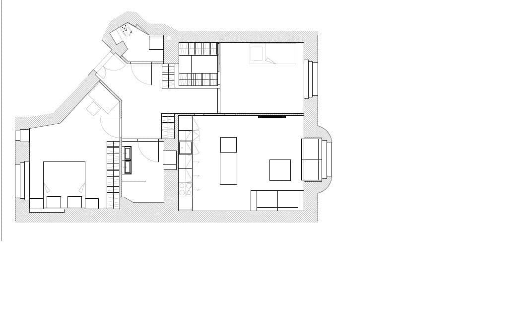
Dispozice
Byt prošel kompletní rekonstrukcí v roce 2017 a je ve výborně udržovaném stavu. V roce 2023 byl instalován nový elektrický bojler, v roce 2025 proběhla renovace walk-in sprchového koutu s velkoformátovými obklady.
Dispozice je řešena velmi prakticky s důrazem na množství úložného prostoru. Byt sestává z ložnice, prostorného obývacího pokoje s kuchyňským koutem a menšího pokoje, k němuž náleží i oddělený prostor, který lze využít jako šatnu nebo sklad. V chodbě se nachází dvě vestavěné skříně.
Ložnice orientovaná do klidného vnitrobloku zajišťuje maximální soukromí a klid. Ve všech obytných místnostech jsou dubové parkety (nové nebo repasované s historickou hodnotou), v chodbě, koupelně a na WC je položena velkoformátová dlažba. Koupelna je navíc vybavena podlahovým vytápěním.
Kuchyně a vybavení
Moderní kuchyňská linka je kompletně vybavena vestavnými spotřebiči včetně indukční varné desky a lednice na víno. Jídelní stůl je vysouvatelný a lze jej pohodlně rozšířit až pro 4 osoby, aniž by překážel v prostoru. Podle dohody s kupujícím lze většinu dalšího vybavení na fotografiích v bytě ponechat.
Topení a ohřev vody jsou v současnosti řešeny elektřinou. V domě je však přiveden plyn a v bytě jsou připravené rozvody topení, což umožňuje případnému zájemci přejít na vytápění a ohřev vody plynovým kotlem.
Další výhody
K bytu náleží prostorná sklepní kóje o velikosti přibližně 5 m².
V domě je zaveden optický internet se stabilním a rychlým připojením.
Energetická náročnost budovy dle PENB: třída F.
Smíchov je jednou z nejrychleji se rozvíjejících pražských čtvrtí v širším centru města. Kromě již probíhajícího projektu Smíchov City zde vznikají další významné urbanistické záměry – nový vlakový a autobusový terminál Smíchovského nádraží a plánovaná revitalizace a prodloužení náplavky v rámci projektu Šemíkův břeh. To předurčuje lokalitu k dlouhodobému růstu hodnoty nemovitostí.
Dopravní dostupnost a parkování
Vynikající dopravní dostupnost zajišťují stanice metra Smíchovské nádraží a Anděl, tramvajové zastávky Na Knížecí, Anděl a Výtoň či autobusový terminál Na Knížecí – vše ve vzdálenosti 5–10 minut chůze od domu. Parkování je možné přímo před domem nebo v přilehlých ulicích (modré a fialové zóny). Řidiči ocení rychlé napojení na vnitřní městský okruh (do 5 minut) a po Strakonické ulici pohodlný dojezd na Pražský okruh (do 10-15 minut).
Pokud hledáte kvalitní bydlení či investici v jedné z nejdynamičtěji se rozvíjejících pražských čtvrtí, neváhejte si domluvit osobní prohlídku.
Cena je konečná včetně právního servisu (příprava smluvní dokumentace, úschova kupní ceny).
Parametre nehnuteľnosti
| Dostupné od | 29. 12. 2025 |
|---|---|
| Výstavba budov | Tehla |
| Vybavené | Vybavené |
| Číslo inzerátu | 976276 |
| PENB | F - veľmi nehospodárne |
| Úžitková plocha | 75 m² |
| Stav | Veľmi dobrý |
|---|---|
| Dispozícia | 3+kk |
| Poschodie | 2. poschodie z 6 |
| Vlastníctvo | Osobné |
| Umiestnenie | Stredisko |
| Cena za jednotku | 189 200 CZK / m2 |
Vyberáte byt?
Majte istotu, že máte všetky dôležité informácie!
Čo táto nehnuteľnosť ponúka?
| Pivnica 5 m² | |
| Parkovanie |
| Výťah |
V okolí nehnuteľnosti nájdete
Stále hľadáte to pravé?
Nastavte si strážneho psa. Ponuky vybrané na mieru dostanete súhrnne 1× denne e-mailom. S Premium profilom máte po ruke rovno 5 strážcov a keď sa niečo objaví, informujú vás obratom.


















