Predaj bytu 4+1 • 130 m² bez realitky, Dolné Sasko
, Dolné SaskoMHD 1 minúta pešo • GarážPríchod. Pohoda. Domov.
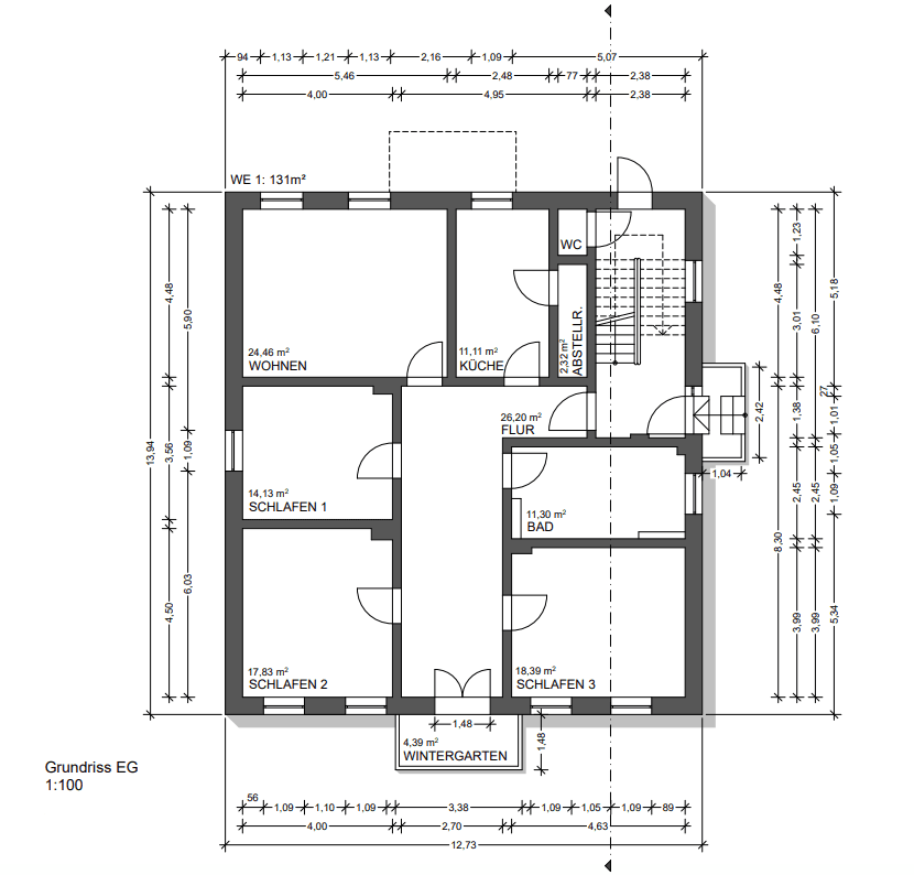
Tento mimoriadne priestranný 4-izbový prízemný byt sa nachádza v udržiavanom viacfamilijnom dome s iba štyrmi bytmi a spája moderný obytný komfort, kúzlo staršej doby a žiadanú polohu – ideálny pre vlastníkov, ktorí si cenia priestor, pokoj a kvalitu života.
Na 130 m² obytného priestoru na vás čakajú veľké, svetlé izby, ktoré svojím premysleným rozložením a priestrannými oknami vytvárajú príjemnú atmosféru bývania. Byt bol nedávno zrekonštruovaný a je okamžite k dispozícii.
Hlavné výhody na prvý pohľad:
- Nedávno zrekonštruovaný prízemný byt – okamžite k dispozícii
- 4 priestranné izby na 130 m² obytného priestoru
- Priestranná kuchyňa s veľa miesta na varenie a oddych, vrátane vstavaných spotrebičov (v cene zahrnuté)
- Svetlé izby vďaka veľkým oknám so šarmom starého bývania
- Kúpeľňa so svetlom, oknom a bezbariérovou sprchou
- Vlastná zimná záhrada, ktorá dodáva extra slnečné lúče
- Spoločná záhrada v tichej lokalite
- Vlastná pivnica, pričom je k dispozícii aj spoločná pivnica a práčovňa
- Dvojgaráž pre prízemný byt priamo na pozemku – doplatenie 20 000,00 EUR
- Pokojný, udržiavaný dom s iba 4 bytmi
- Atraktívna poloha v Hannover-Bemerode
Byt sa nachádza v obľúbenej časti Bemerode a spája pokojné, zelené bývanie s optimálnou dostupnosťou. Rodinne orientovaná štvrť, krátke vzdialenosti k MHD a rýchla dostupnosť hlavného nádražia (cca 15–20 minút) a diaľnic B3/A37 robia z tejto lokality mimoriadne atraktívne miesto. Obchody, školy a možnosti voľnočasových aktivít sa nachádzajú v bezprostrednej blízkosti.
Tento čerstvo zrekonštruovaný prízemný byt osloví svojím priestranným pôdorysom a svetlým, príjemným obytným prostredím. Veľké, slnečné okná so šarmom starého bývania zabezpečujú príjemnú atmosféru počas celého dňa a dodávajú bytu jeho výnimočný charakter.
Premyslený pôdorys ponúka množstvo možností využitia – ideálny pre rodiny, páry alebo ľudí, ktorí chcú harmonicky skombinovať bývanie a prácu z domu.
Osobitým lákadlom je zimná záhrada, ktorá predstavuje tiché útočisko na oddych. Či už si tu vychutnáte rannú kávu, čítate, alebo len relaxujete – tu si užijete svetlo, pokoj a relaxáciu v chránenom prostredí.
Moderná kúpeľňa so svetlom, oknom a bezbariérovou sprchou spája súčasný komfort s funkčnosťou a vytvára pravý raj pre pohodu.
Dokonalá kombinácia moderného obytného komfortu a útulného šarmu udržiavaného prízemného bytu robí z tohto miesta domov s charakterom. Ideálny pre vlastníkov, ktorí si cenia pokoj, štýl a priestor a hľadajú miesto, kde sa dlhodobo dajú usadiť.
Parametre nehnuteľnosti
| Dostupné od | 22. 1. 2026 |
|---|---|
| Dispozícia | 4+1 |
| Úžitková plocha | 130 m² |
| Stav | Po rekonštrukcii |
|---|---|
| Číslo inzerátu | 975798 |
| Cena za jednotku | 3 454 € / m2 |
Čo táto nehnuteľnosť ponúka?
| Pivnica | |
| MHD 1 minúta pešo |
| Garáž |
V okolí nehnuteľnosti nájdete
Stále hľadáte to pravé?
Nastavte si strážneho psa. Ponuky vybrané na mieru dostanete súhrnne 1× denne e-mailom. S Premium profilom máte po ruke rovno 5 strážcov a keď sa niečo objaví, informujú vás obratom.






