Predaj pozemku • 486 m² bez realitkyUntere Dorfstraße 2b Eisenhofen Eisenhofen Bayern 85253
Okamžite k výstavbe – Stavebné povolenie zo septembra 2025 je k dispozícii (uvolnený stavebný plán č. 71).
Optimálne využitie južne orientovanej parcely prostredníctvom individuálne navrhnutých dvojdomov pre 2 samostatné obytné jednotky ako energeticky efektívny dom 55.
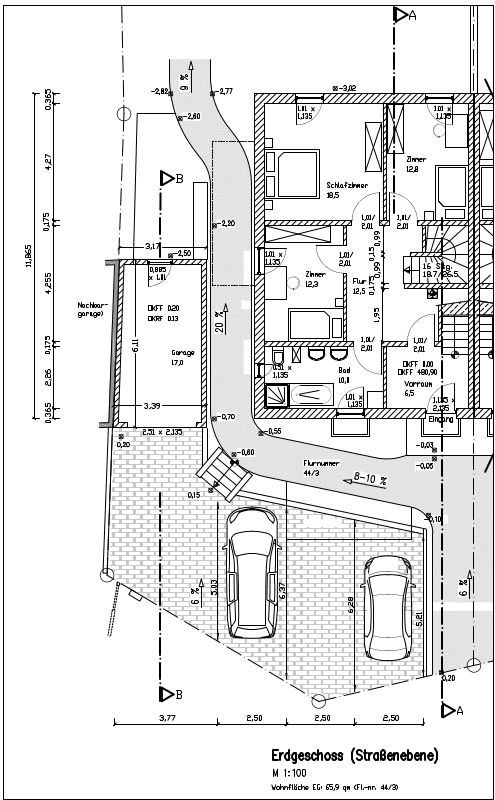
Garáž so sklepením.
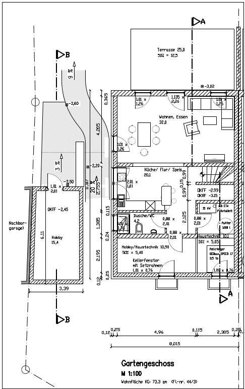
Obytná jednotka 1 (dve nižšie poschodia): 139 m² obytná plocha
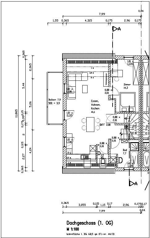
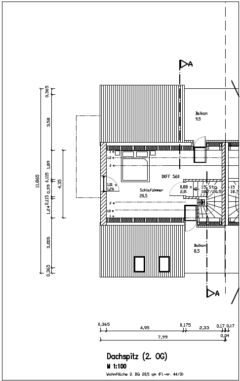
Obytná jednotka 2 (dve horné poschodia): 89 m² obytná plocha
Stavebný pozemok 486 m² – plne inžiniersky spracovaný, prístupný z verejnej cesty s pripojením na vodu, kanalizáciu, elektrinu a T-com
Stavebný posudok, projektová statika aj plán výstuže už sú k dispozícii
Povolenie podľa zákona o ochrane pamiatok je udelené
Plánovacie podklady pre stavebné povolenie, rozloha parcely, obytné plochy atď. sú dostupné v digitálnej podobe a môžu byť neskôr prezreté
Predávam výlučne súkromne a nechcem ponuky od realitných maklérov. Všetky obrázky v tomto expozé sú chránené autorským právom a nesmú byť používané ani ďalej šírené tretími stranami.
Eisenhofen s približne 900 obyvateľmi sa nachádza v krásnom údolia Glonntal, uprostred pokojnej kopcovitej krajiny medzi Dachau a Altomünster, severozápadne od Mníchova. Stanica S-Bahn Erdweg (S2) sa nachádza vo vzdialenosti 950 m a ponúka priame vlakové spojenie do Mníchova každých 30 minút. Prístupová cesta na diaľnicu A8 Sulzemoos je vzdialená približne 11 km.
Na oddych pozýva v Eisenhofene množstvo peších a cyklistických trás. Vďaka neustálemu prílivu obyvateľov do metropolitnej oblasti Mníchova sa infraštruktúra neustále rozvíja, napríklad v oblasti starostlivosti o deti, voľnočasových a športových aktivít, ako aj obchodných príležitostí.
Stredné školy ako Realschule, gymnázium a FOS sa nachádzajú v Markt Indersdorf, len 2 stanice S-Bahn odtiaľ. Základná a stredná škola, obchod EDEKA, lekáreň, radnica, reštaurácie, športový klub, fitness centrum atď. sú vzdialené len približne jeden kilometer, a to v hlavnej časti Erdweg.
Parametre nehnuteľnosti
| Číslo inzerátu | 975401 |
|---|---|
| Cena za jednotku | 926 € / m2 |
| Plocha pozemku | 486 m² |
|---|
Čo táto nehnuteľnosť ponúka?
| MHD 1 minúta pešo |
V okolí nehnuteľnosti nájdete
Stále hľadáte to pravé?
Nastavte si strážneho psa. Ponuky vybrané na mieru dostanete súhrnne 1× denne e-mailom. S Premium profilom máte po ruke rovno 5 strážcov a keď sa niečo objaví, informujú vás obratom.















