
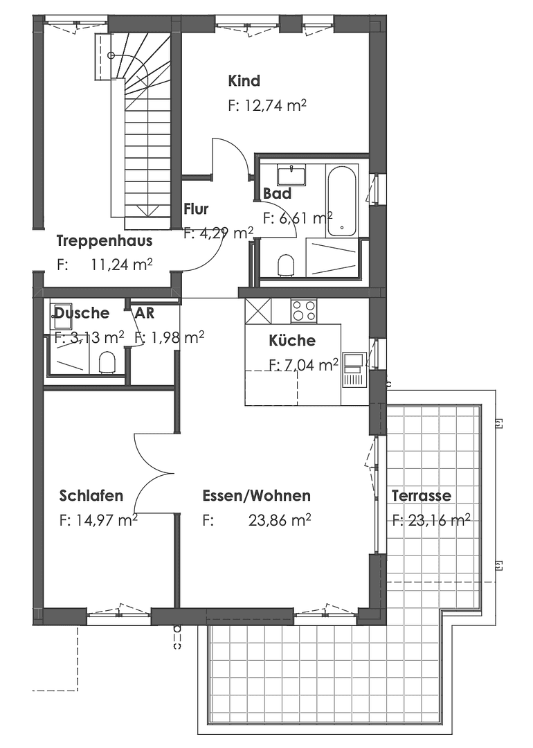
Prenájom bytu 3+1 • 87 m² bez realitkyDorfstraße 11b Germering Germering Bayern 82110
Dorfstraße 11b Germering Germering Bayern 82110MHD 1 minúta pešo • GarážTáto vysoko kvalitne vybavená bytosť disponuje modernou kúpeľňou aj sprchovacím kúpeľňou, dvoma peknými spálňami a priestranným, otvoreným obývacím priestorom. Balkón láka na oddych.
Byt je postavený podľa najnovších štandardov energetickej efektívnosti a je vybavený decentralizovaným vetraním obytných priestorov, aby sa zabezpečilo príjemné a zdravé bývanie.
Bytový dom sa nachádza v dedinskej ceste a ponúka dobré spojenie do centra mesta, do okolia a aj do Mníchova.
Medzi vybavenie patrí pivnica, úložný priestor a parkovacie miesto v podzemnej garáži.
- približne 20 km od Mníchova
- dobré napojenie na diaľnicu A99 a na štátne cesty B2 a B471
- masívna výstavba
- kvalitné okná s trojitým tepelným izolačným zasklením
- elektrické hliníkové rolety
- kúpeľne a chodby s kvalitnými obkladačnými dlaždicami
- obývací a spálňový priestor, ako aj kuchyňa s dizajnovými podlahami
- vstupné dvere bytu s protihlukovým tesnením a dverným zorníkom
- elektrický systém vstupu do podzemnej garáže s diaľkovým ovládačom
- prípojka pre práčku umiestnená v kúpeľni
- zemné teplo
- podlahové kúrenie v celej ploche vrátane izbových termostatov
- decentralizovaný vetrací systém
- zvončekový systém s obojsmerným hovorným systémom
Parametre nehnuteľnosti
| Vek | Nad 50 rokov |
|---|---|
| Stav | Veľmi dobrý |
| Poschodie | 1. poschodie z 2 |
| PENB | A - Mimoriadne úsporné |
| Cena za jednotku | 23 € / m2 |
| Dostupné od | 1. 2. 2025 |
|---|---|
| Dispozícia | 3+1 |
| Číslo inzerátu | 975350 |
| Úžitková plocha | 87 m² |
Čo táto nehnuteľnosť ponúka?
| Balkón | |
| Pivnica | |
| MHD 1 minúta pešo |
| Bezbariérový prístup | |
| Garáž |
V okolí nehnuteľnosti nájdete
Stále hľadáte to pravé?
Nastavte si strážneho psa. Ponuky vybrané na mieru dostanete súhrnne 1× denne e-mailom. S Premium profilom máte po ruke rovno 5 strážcov a keď sa niečo objaví, informujú vás obratom.








