Prenájom domu 6+1 • 180 m² bez realitky, Dolné Sasko
Tento kompletne zrekonštruovaný rodinný dom s približne 180 m² obytného priestoru, 6 izbami a 3 modernými kúpeľňami ponúka ideálne podmienky pre rodiny, ktoré chcú bývať dlhodobo, pokojne a energeticky efektívne. Nehnuteľnosť spája solídnu štruktúru domu z roku 1960 s modernou technikou a vysoko kvalitným vybavením – sťahujte sa a cíťte sa ako doma bez potreby renovácie.
Priestranná obývacia a jedálenská časť s parketovou podlahou tvorí srdce domu a ponúka veľa miesta pre spoločný rodinný život. Veľké okná zaisťujú svetlú a príjemnú atmosféru. Približne 800 m² veľká parcela so udržiavanou záhradou a veľkou, krytou terasou pozýva na oddych, hranie a relax.
⸻
Vybavenie a Prednosti
– Nové diaľkové kúrenie – efektívne a šetrné k životnému prostrediu
– Zateplená strecha (juhozápadná strana) s fotovoltaickou inštaláciou – vlastné využitie vyrobenej elektriny
– Elektrina a vodovodné potrubia úplne obnovené
– Dvojsklo s elektrickými vonkajšími rolety (ovládateľné cez aplikáciu)
– Optické pripojenie a Cat-7 sieť vo väčšine miestností
– 3 moderne zrekonštruované kúpeľne, medzi ktoré patrí:
Hlavná kúpeľňa s podlahovým kúrením, bezprístupová sprcha a vaňa
– Parketová podlaha v obývacej a jedálenskej časti
– Vysoko kvalitná laminátová podlaha v ďalších obytných miestnostiach
– Veľká krytá terasa s výhľadom do záhrady
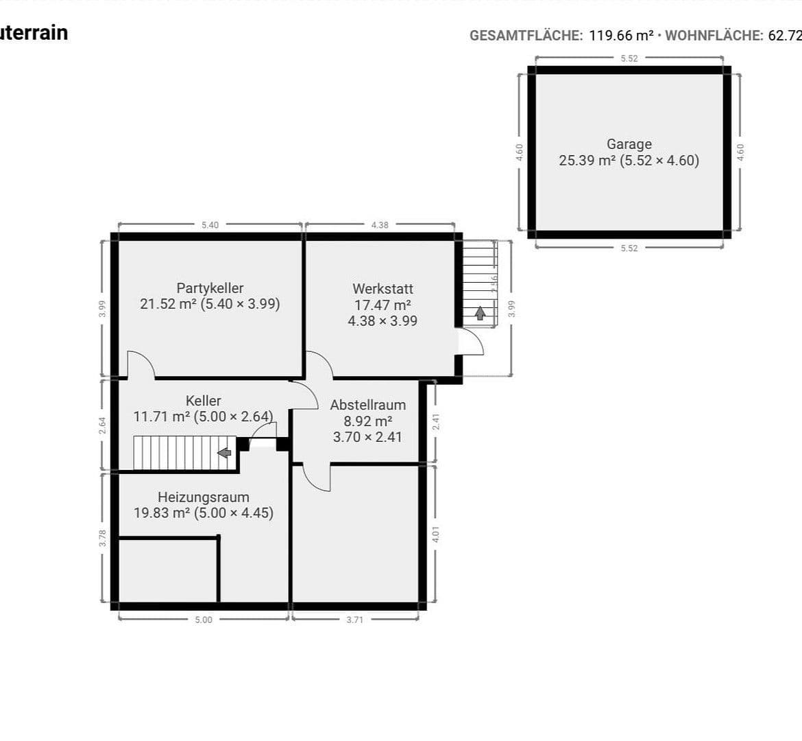
– Garáž s elektrickou bránou a tiež dodatočný prístrešok na auto
⸻
Podzemie / Užitkový priestor
Približne 70 m² veľké podzemie ponúka rôzne možnosti využitia:
• Miestnosť pre párty alebo koníčky s integrovaným barom
• dielňa
• Pracovňa pre domáce práce
• Dodatočné skladovacie priestory
Nehnuteľnosť sa nachádza v pokojnej, rodinne orientovanej lokalite v 31637 Rodewald:
• Predškolska a základná škola priamo v obci
• Obchodné možnosti a čerpacia stanica cca 800 metrov od domu
• Veľmi dobrá dopravná dostupnosť – diaľnica A7 je vzdialená približne 20 minút
Lokalita je ideálna pre rodiny aj pracovníkov do diaľky, ktorí chcú bývať blízko prírody a zároveň byť dobre prepojení s okolitými oblasťami.
Dom zaujme premyslenou rekonštrukciou, modernou technikou a priestranným dispozíciou.
Vďaka diaľkovému kúreniu, fotovoltaickej inštalácii a obnovenému zariadeniu infraštruktúry je nehnuteľnosť pripravená na budúcnosť.
Na požiadanie je možné prenajať aj garáž, ktorá nie je zahrnutá v nájomnom.
Prosíme, aby ste nám spolu s Vašou dopytovou správou poslali krátke predstavenie seba a informácie o Vašej pracovnej situácii. Ďakujeme.
Nehnuteľnosť sa momentálne dokončuje a bude pripravená na nasťahovanie začiatkom roka 2026.
Parametre nehnuteľnosti
| Vek | Nad 50 rokov |
|---|---|
| Stav | Po rekonštrukcii |
| Číslo inzerátu | 974827 |
| Plocha pozemku | 800 m² |
| Cena za jednotku | 9 € / m2 |
| Dostupné od | 1. 2. 2026 |
|---|---|
| Dispozícia | 6+1 |
| Úžitková plocha | 180 m² |
| Celkové poschodia | 2 |
Čo táto nehnuteľnosť ponúka?
| Pivnica | |
| Parkovanie | |
| Terasa |
| Garáž | |
| MHD 2 minúty pešo |
V okolí nehnuteľnosti nájdete
Stále hľadáte to pravé?
Nastavte si strážneho psa. Ponuky vybrané na mieru dostanete súhrnne 1× denne e-mailom. S Premium profilom máte po ruke rovno 5 strážcov a keď sa niečo objaví, informujú vás obratom.


















