
Predaj domu • 325 m² bez realitkyFriedhofstr. 2, , Hesensko
Už pri vstupe na nádvorie sa dá ohromujúco spoznať jedinečnosť tejto nehnuteľnosti. Udržiavané vnútorné nádvorie, starostlivo upravené, s terasou a peknými zelenými plochami, ponúka idylické miesto na oddych.
Hlavná budova bola postavená v roku 1784 a okolo roku 1900 bola doplnená o stajne a remis. V rokoch 1981–83 boli stajne kompletne prerobené, zrekonštruované a s veľkým úsilím premenené na obytný dom. V roku 2017 boli vykonané ďalšie obnovy a rekonštrukcie.
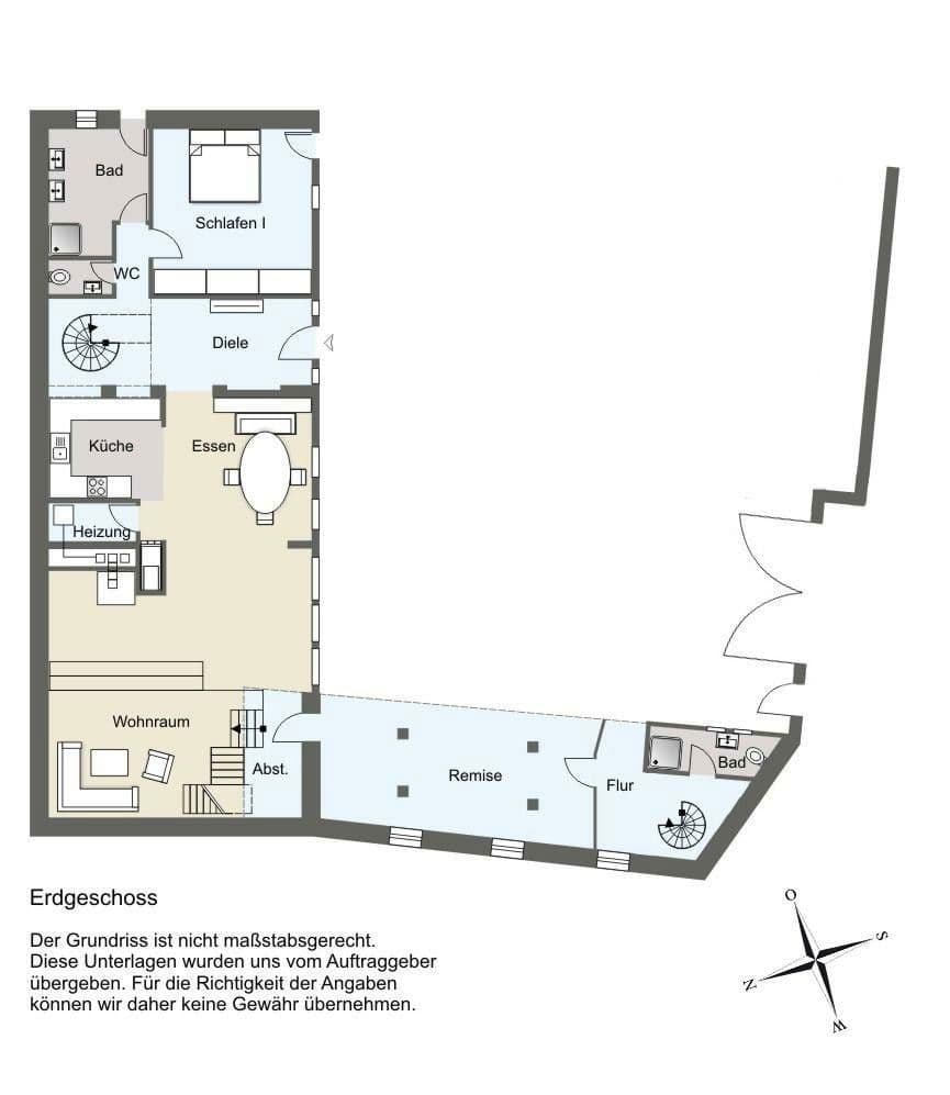
Na dvoch poschodiach sa rozprestierajú obytné, spálňové a pracovné priestory. Otvorená kuchyňa s priľahlou otvorenou jedálňou a útulný pecový krb sa stávajú stretnovacím bodom domu. Priľahlá obývacia izba zapôsobí pôsobivou sklenenou fasádou a výhľadom do vnútorného nádvoria, ako aj otvoreným krbom. Otvorený drevený schodisko vedie cez nízku verandu do zrekonštruovaného podkrovia, kde sa otvára ďalší svetlý, veľký obytný priestor alebo kancelária.
Dom uchvacuje príjemnými výhľadmi a mimoriadne peknou atmosférou. Spálňa s prístupom na nádvorie, kúpeľňa a samostatné WC sa nachádzajú tiež na tejto úrovni, čo ho robí ideálnym aj pre starších alebo postihnutých ľudí.
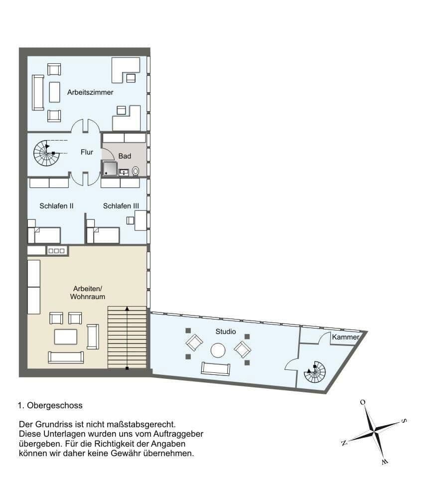
Ďalšou schodiskou – špirálovým – sa dostanete do horného poschodia. S dvoma veľkými priestrannými izbami, ktoré je možné flexibilne rozdeliť do štyroch izieb so samostatným vstupom a sprchovacím kúpeľňou, tento priestor dopĺňa hlavnú budovu.
Remis bol v roku 2024 premenený na úplne svetlý dvojizbový byt, ktorý môže byť využitý ako samostatný byt alebo ako malý komerčný priestor. Vďaka vlastnému vstupu je taktiež možná jeho rekonverzia na rekreačný byt.
Rámový dom, ktorý sa taktiež nachádza na pozemku, je chránenou pamiatkou (kultúrna pamiatka) a bol v roku 2022 zvonku zrekonštruovaný. Vnútri by sa dalo vybudovať ďalších približne 180 m² obytného priestoru. Momentálne sa dá výborne využiť ako dielňa alebo sklad. Budova má samostatný vstup do vnútorného nádvoria, respektíve vstup zo ulice.
Obec Lautertal sa nachádza uprostred UNESCO geoparku Bergstraße-Odenwald a má približne 7 100 obyvateľov.
Reichenbach leží na legendárnej Nibelungenstraße v pôvabnej doline prírodného parku Bergstraße/Odenwald. Reichenbach je ústrednou časťou veľkej obce Lautertal so sídlom obce v starom aj novom radnici.
Mesto má približne 2 700 obyvateľov a vynikajúcu infraštruktúru. Materské školy, základné školy v Reichenbach a Elmshausen, ako aj stredné školy v Gadernheim a Bensheime robia tento región atraktívnym najmä pre rodiny. Združenia, možnosti voľnočasových aktivít a športu ponúkajú vysokú hodnotu rekreácie a zábavy.
Bezprostredná blízkosť prírody zabezpečuje veľkú možnosť oddychu. Tento slnečný a všestranne využiteľný komplex sa nachádza v centrálnom Reichenbachu a má veľmi dobré dopravné spojenie. Reichenbach patrí oficiálne k obci Lautertal, hoci sa skôr vníma ako „časť“ Bensheimu. Všetky zariadenia dennej potreby, ako pekárne, mäsiarne alebo supermarkety, sú dostupné len v priebehu niekoľkých minút autobusom alebo autom v Reichenbachu či Bensheime. Reichenbach je napojený na autobusovú sieť mesta Bensheim a VRN. Najbližšia autobusová zastávka je veľmi dobre dostupná. Základná škola aj najbližšia materská škola sú pešo dostupné za pár minút. Vďaka dobrej ceste je Bensheim autom vzdialený približne 10 minút. Odtiaľ máte výborné a priame diaľničné spojenie do miest Frankfurt, Heidelberg a Mannheim, ktoré sú autom dostupné asi 20 až 30 minút.
Vďaka svojej polohe, veľkosti a dispozícii ponúka objekt mnohé možnosti využitia a čaká na nových majiteľov. Moderná kuchyňa bola obnovená pred štyrmi rokmi a pec v obývacej izbe, ktorá slúži ako dodatočné kúrenie, po svojej obnove v roku 2025 spĺňa aktuálne predpisy. Dom je vybavený plynovým podlahovým kúrením.
Objekt je pripojený na optické vlákno.
Parametre nehnuteľnosti
| Vek | Nad 50 rokov |
|---|---|
| Číslo inzerátu | 974726 |
| Plocha pozemku | 757 m² |
| Cena za jednotku | 2 431 € / m2 |
| Stav | Dobrý |
|---|---|
| Úžitková plocha | 325 m² |
| Celkové poschodia | 2 |
Čo táto nehnuteľnosť ponúka?
| Bezbariérový prístup | |
| MHD 1 minúta pešo |
| Parkovanie |
V okolí nehnuteľnosti nájdete
Stále hľadáte to pravé?
Nastavte si strážneho psa. Ponuky vybrané na mieru dostanete súhrnne 1× denne e-mailom. S Premium profilom máte po ruke rovno 5 strážcov a keď sa niečo objaví, informujú vás obratom.







































